Pronájem obchodního prostoru, Hradec Králové, třída Karla IV., 87 m2

třída Karla IV., Hradec Králové

14 609 Kč /za měsíc Získejte výhodnou HYPOTÉKU

(Minimální nabídková cena bez DPH.)

Prémioví partneři v Hradci Králové

Informace k nemovitosti

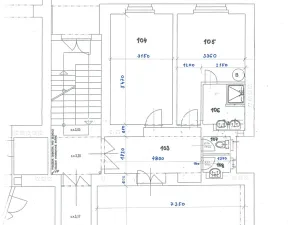
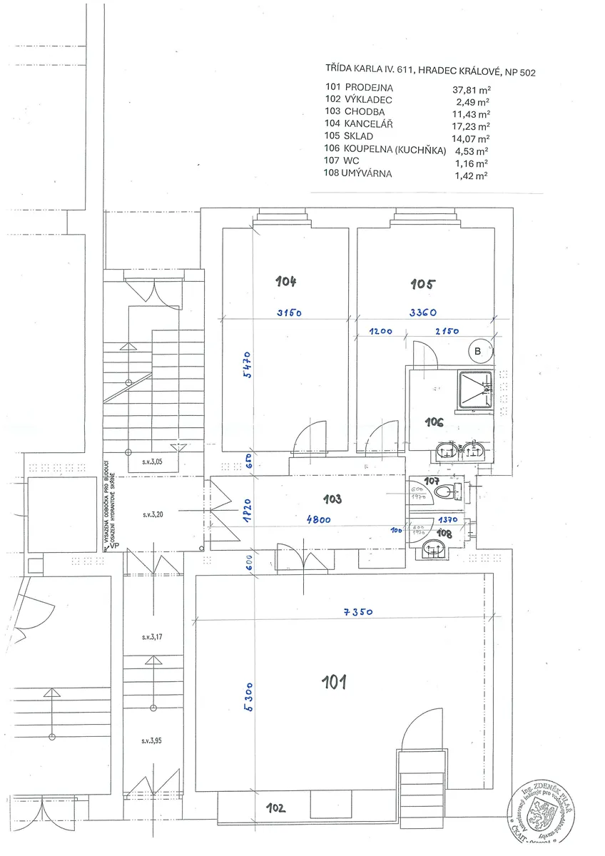
Pronájem nebytových prostor z majetku Statutárního města Hradec Králové - pronájem prostor s využitím pro prodejnu na třídě Karla IV. č.p. 611 o celkové ploše 87,65 m2. K dispozici prodejna s výkladcem, kancelář, sklad, soc. zázemí. Zavedeny inženýrské sítě, prostory jsou vytápěné z kotelny v domě. Pronájem formou výběrového řízení – nabídky nutno podat nejpozději do 1.12.2025. Bližší informace na https://edeska.mmhk.cz/eDeska/eDeskaDetail.jsp?detailId=118778.

Parametry nemovitosti

Cena
14 609 Kč /za měsíc
Poznámka k ceně
Minimální nabídková cena bez DPH.
Aktualizováno
30. 10. 2025
Adresa
třída Karla IV., Hradec Králové
ID
OM2/71/2025
Stavba
Cihlová
Stav objektu
Velmi dobrý
Patro
1.
Vybaveno
Ne
Lokalita objektu
Centrum obce
Užitná plocha
87 m2
Třída energetické náročnosti
G - Mimořádně nehospodárná
Elektřina
230V
Plyn
Plynovod
Odpad
Veřejná kanalizace
Komunikace
Asfaltová
Doprava
Silnice, MHD
Voda
Vodovod
Zdroj topení
Plynový kotel
Zdroj teplé vody
Průtokový ohřívač
Bezbarierový přístup

Kontaktovat makléře

Realitní kancelář

RIDO

Baarova 1380/15, Hradec Králové

Chystáte se prodat nemovitost?
Pomůžeme Vám!

Máte zájem o tuto nemovistost?

Tímto, v souladu s nařízením Evropského parlamentu a Rady (EU) 2016/679, v platném znění, prohlašuji, že mi je alespoň 16 let a uděluji tak svůj souhlas se zpracováním zadaných údajů (jméno, telefon, e-mail, ip adresa) společnosti B3 Technology, s.r.o., IČ: 07330600, se sídlem Novostavby 126/23, 435 11 Lom (správce dat), za účelem předání dotazu z tohoto formuláře Vámi vybranému inzerentovi a zpětného kontaktování mé osoby. Osobní údaje bude správce zpracovávat manuálně i automaticky přímo prostřednictvím svých zaměstnanců. Informace předané tímto formulářem budou uloženy v databázi správce maximálně po dobu 10 let. Odvolání souhlasu s uložením a zpracováním poskytnutých dat lze e-mailem na info@videobydleni.cz. V případě podezření na neoprávněné použití Vámi poskytnutých údajů máte právo předat podnět k šetření Úřadu pro ochranu osobních údajů. Více informací
Chystáte se prodat nemovitost?
Pomůžeme Vám!

Inzerát si prohlédlo 0 lidí

Prodejce

Radek Vohlídka

Radek Vohlídka

Hlídací pes

Chcete dostávat emailem podobné nabídky pronájmu obchodních prostor v Hradci Králové?

Podobné nemovitosti


Nevyhovuje Vám typ nemovitosti? Podívejte se na jiné kategorie komerčních.


Vybrané články z našeho blogu