Blahoslavova, Třebíč, Zámostí
V srdci Třebíče stojí dům, který pamatuje celé generace. Objekt, postavený v roce 1853, je víc než jen zděná stavba — je to kus historie, který přežil proměny města i doby a dodnes nabízí bezpečné útočiště i pevný investiční základ.
Historie a atmosféra
Za masivními zdmi a původními architektonickými prvky se ukrývá příběh poctivé řemeslné práce a sousedských vztahů, které tvořily město po více než 170 let.
Dům prošel zásadní rekonstrukcí v roce 2003, díky které si zachoval svůj historický ráz, ale získal nový, funkční život. 
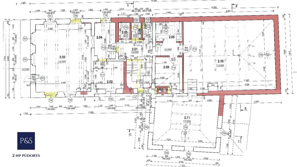
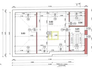
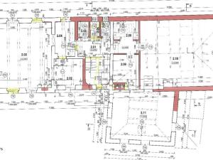
Vysoké stropy, velká okna a vzdušné prostory dnes tvoří ideální zázemí pro kanceláře, obchody i bydlení — s možností úprav podle potřeb nového majitele.
Strategická lokalita: město, které roste
Třebíč je okresní město s bohatou historií, památkami UNESCO a výbornou dopravní dostupností. Žije zde přes 35 000 obyvatel a město se stabilně rozvíjí — nejen v oblasti služeb, ale i průmyslu.
Velkou roli hraje i blízkost Jaderné elektrárny Dukovany, která je jedním z největších zaměstnavatelů v regionu. Navíc se připravuje stavba nového bloku elektrárny, která v příštích letech přinese tisíce pracovních míst pro projektanty, inženýry, řemeslníky a doprovodné služby.
Tato investice výrazně posiluje poptávku po kvalitním nájemním bydlení i komerčních prostorách.
Objekt tak těží z výjimečné polohy — klidná část města, ale pár kroků do centra, perfektní občanská vybavenost, školy, obchody, kavárny i zastávky MHD. To je kombinace, kterou nájemci ocení dnes i za deset let.
Ozvěte se a řekněte si o prezentaci na míru — včetně reálných fotografií, plánů a všech detailů, které potřebujete k rozhodnutí.
Jak na tomto domě vydělat?
Krátkodobě:
Převeďte dům na SVJ, rozdělte na samostatné byty, udělejte kvalitní rekonstrukci interiérů a prodejte jednotlivé jednotky. Historická atmosféra a nedostatek krásných staroměstských bytů vám umožní cílit na náročnější klientelu.
Dlouhodobě:
Zachovejte stávající nájemní mix — kanceláře, obchody, sklady. Optimalizujte dispozice a rozvíjejte sklepní a půdní prostory. Díky Dukovanům a silné místní ekonomice bude o nájem stabilně zájem. Již nyní mám jistého nájemce, který podepíše nájemní smlouvu okamžitě po zapsání do katastru nemovitostí Vás jako nového vlastníka.
Odhad ročního příjmu: 1,3–1,5 mil. CZK s možností dalšího růstu.
Proč právě tento objekt?
- Tradice & historie — dům s duší, který bude mít vždy svou hodnotu.
- Strategická poloha — stabilní město s růstem díky Dukovanům, UNESCO a službám.
- Okamžitý výnos — nájemce zajištěn, nulové riziko prázdných prostor.
- Flexibilita využití — byty, kanceláře, obchody, rozvoj půd a sklepů.
- Bezpečné uložiště kapitálu — investice chránící před inflací.
Chcete vědět víc?
Ať už uvažujete o strategické investici, nebo hledáte jedinečný objekt pro vlastní sídlo firmy, kanceláře nebo stylové bydlení, jsme vám zcela otevření a rádi s vámi vše probereme.
Připravíme pro vás:
- Podrobný finanční model (výnos, ROI, scénáře)
- Osobní prohlídku objektu s majitelem
- Doporučení, jak z domu vytěžit maximum — ať už z krátkodobého flipu, dlouhodobého nájmu, nebo vlastního užívání
V případě spolupráci s naši RK, kromě kouzelné nemovitosti, vždy dostanete zdarma:
• konzultační servis
• jazyková vybavenost (mluvíme česky, anglicky, francouzsky, italsky)
• právnický servis od AK Hafner & Partneři
• servis daňové amortizace
• analýzy trhu
V případě zájmu mě prosím kontaktujte pro bližší informace nebo k domluvení osobní prohlídky. Ráda Vám nemovitost představím a budu se těšit na setkání.
Pod Havránkou 7/10, Praha
Máte zájem o tuto nemovistost?
Inzerát si prohlédlo 1 lidí
 
                                Tina Nesibová
Chcete dostávat emailem podobné nabídky prodeje obchodních prostor v Třebíči?