Švermova, Buštěhrad
Nabízíme k prodeji mezonetové byty 4+1 (B2 a B3) respektive 5+1 (B1) v rodinném domě se třemi byty, s vlastní zahradou a parkovacím stáním na Buštěhradě. Jedná se již o třetí realizaci tohoto objektu naší firmou a první realizaci v lokalitě, kde máme mnohaleté zkušenosti s výstavbou bytů a rodinných domů. 
Přidejte se k desítkám spokojených zákazníků firmy Meritum Kladno s.r.o. ve vyhledávané lokalitě Buštěhrad a zažijte moderní rodinné bydlení v blízkosti Prahy, Kladna a letiště se základní občanskou vybaveností přímo u místa bydliště. 
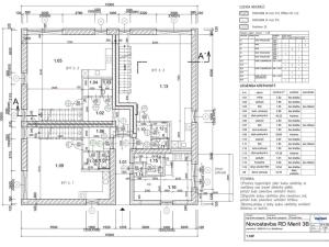
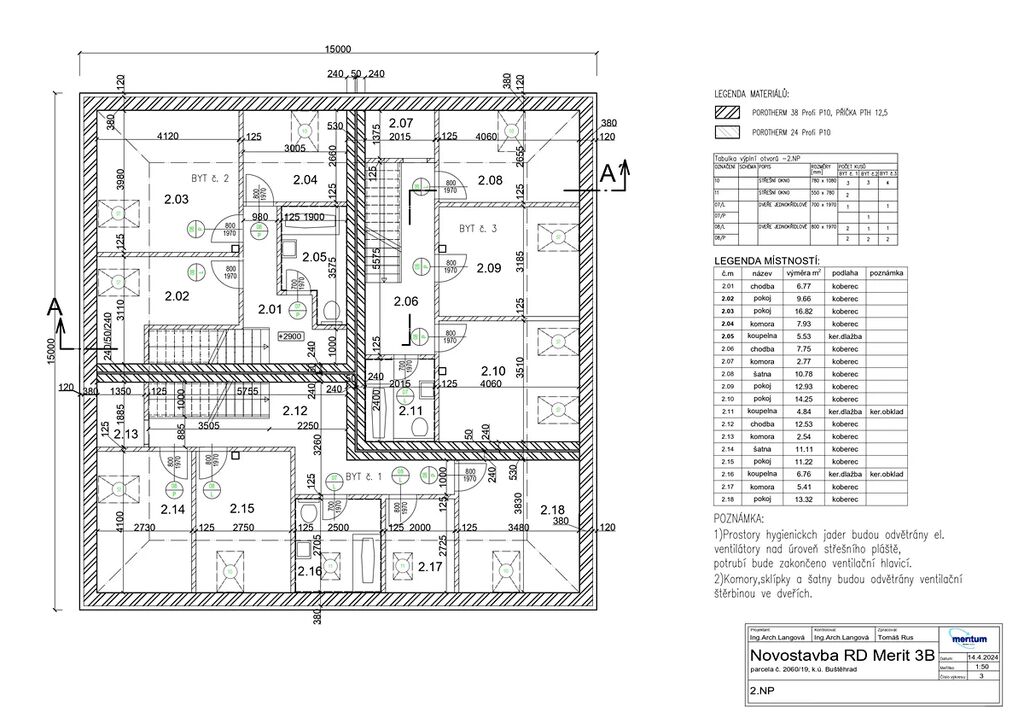
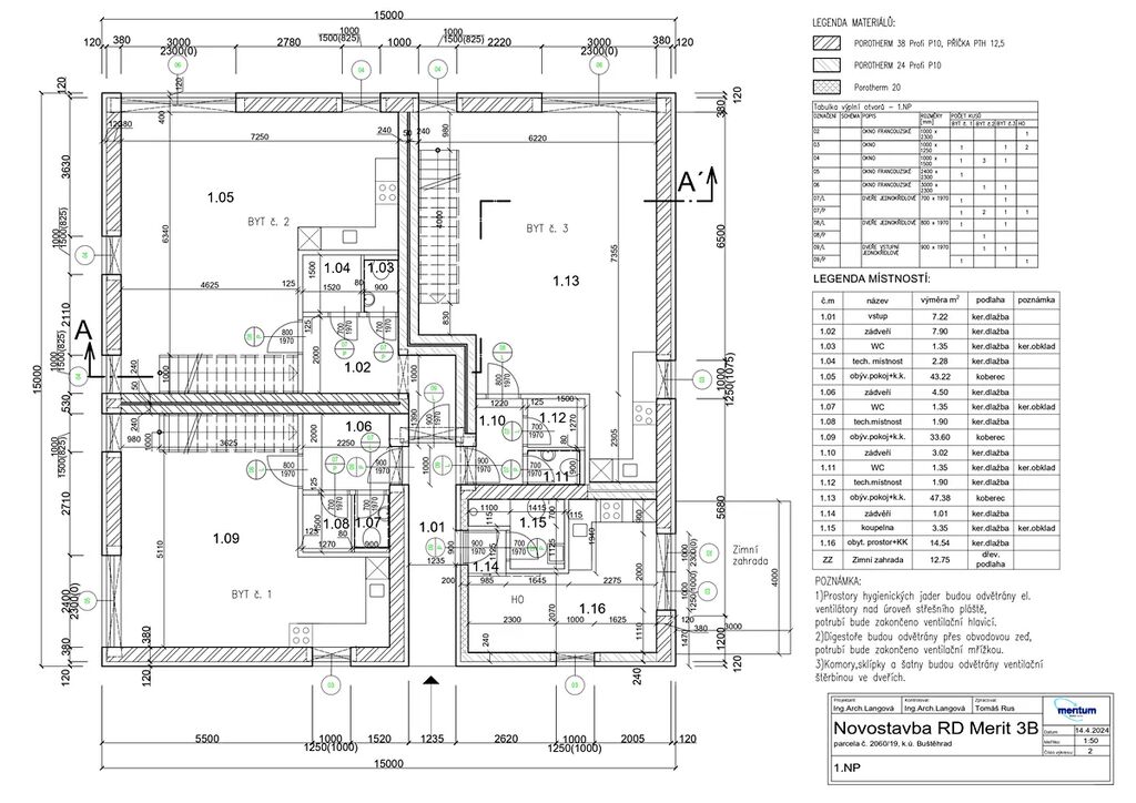
Byty B2 a B3  (4+1) jsou dispozičně řešeny následovně: 
První patro	– Obývací pokoj, kuchyně, zádveří, prostor pod schody, toaleta s umyvadlem a technickým prostorem.
Podkroví	– Tři pokoje, prostorná koupelna s toaletou a chodba.
Byt B1 (5+1) má o pokoj v podkroví více. 
Byt lze rozšířit o půdní prostor (montáž podlahy a schodů na půdu), případně lze udělat lehké úpravy vnitřní dispozice.
Vytápění je řešeno podlahovým topením s tepelným čerpadlem. Bytová jednotka je vybavena vlastním elektroměrem a podružným vodoměrem.
Součástí bytu je výhradní právo na užívání adekvátní části pozemku – zahrady, která je přístupná z obývacího pokoje a parkovacího stání.
Mezi jednotkami je dvojitá zeď s izolací a strop je přerušen – díky tomu jsou jednotky výborně akusticky oddělené.
Momentálně volné jednotky: B1, B2 a B3.
B1 - 109,70 m2, zahrada 233,50 m2
B2 - 106,12 m2, zahrada 207,84 m2
B3 - 111,24 m2, zahrada 130,65 m2
Cena jedné jednotky včetně zahrady: 10.900.000,- Kč vč. DPH.
Doplatku podléhá: zámková dlažba parkování, oplocení, instalace půdních prostor a další vybavení navíc. 
Kolaudace proběhne ZIMA 2026. Foto z dříve realizovaného projektu. 
Momentální stav: hrubá stavba dokončena, probíhající omítky.
Neváhejte nás kontaktovat pro další informace a případně domluvení prohlídky.
Ctiborova 3091, Kladno
Máte zájem o tento dům?
Inzerát si prohlédlo 1 lidí
 
                                Tom Rus
Chcete dostávat emailem podobné nabídky prodeje rodinných domů v Buštěhradu?