J. Hanáka, Bzenec
Nabízíme k pronájmu moderně zrekonstruovaný byt o dispozici 3 + 1 s balkonem  nacházející se v centru Bzence. Tento byt se pyšní skvělou dispozicí a přináší vysoký standard bydlení.
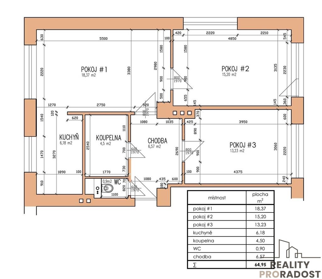
Bytová jednotka má užitnou plochu 65 m², celkový podíl je 83 m2 ( včetně dvou sklepů) a je umístěna v I. NP dvoupodlažního cihlového domu, který byl revitalizován v roce 2025. Vytápění a ohřev vody je zajištěno  plynovým kondenzačním kotlem, což zaručuje nízké náklady na provoz.
Součástí bytu je balkon o ploše 5,25 m², ideální pro relaxaci s výhledem na okolní zeleň a park.  V bytě se dále nachází nové předokenní žaluzie.  Lokalita je ideálně dostupná  v blízkosti se nachází vlaková a autobusová zastávka, a také rychlé napojení na dálnici.
Tento pronájem bytu 3 + 1 představuje ideální volbu pro ty, kteří hledají kombinaci moderního bydlení v centru města s veškerou dostupnou infrastrukturou.
Měsíční nájem činí 15.000,- Kč, zálohy na služby 5.000,- Kč, kauce 30.000,- Kč + provize RK.
V případě zájmu o prohlídku mě  neváhejte kontaktovat.
 
                                        Vídeňská 1014/18b, Brno
Máte zájem o tento byt?
Inzerát si prohlédlo 2 lidí
 
                                Irena Pavlíková
Chcete dostávat emailem podobné nabídky pronájmu bytů 3+1 v Bzenci?