Lipno nad Vltavou
Výkup a prodej starého nábytku
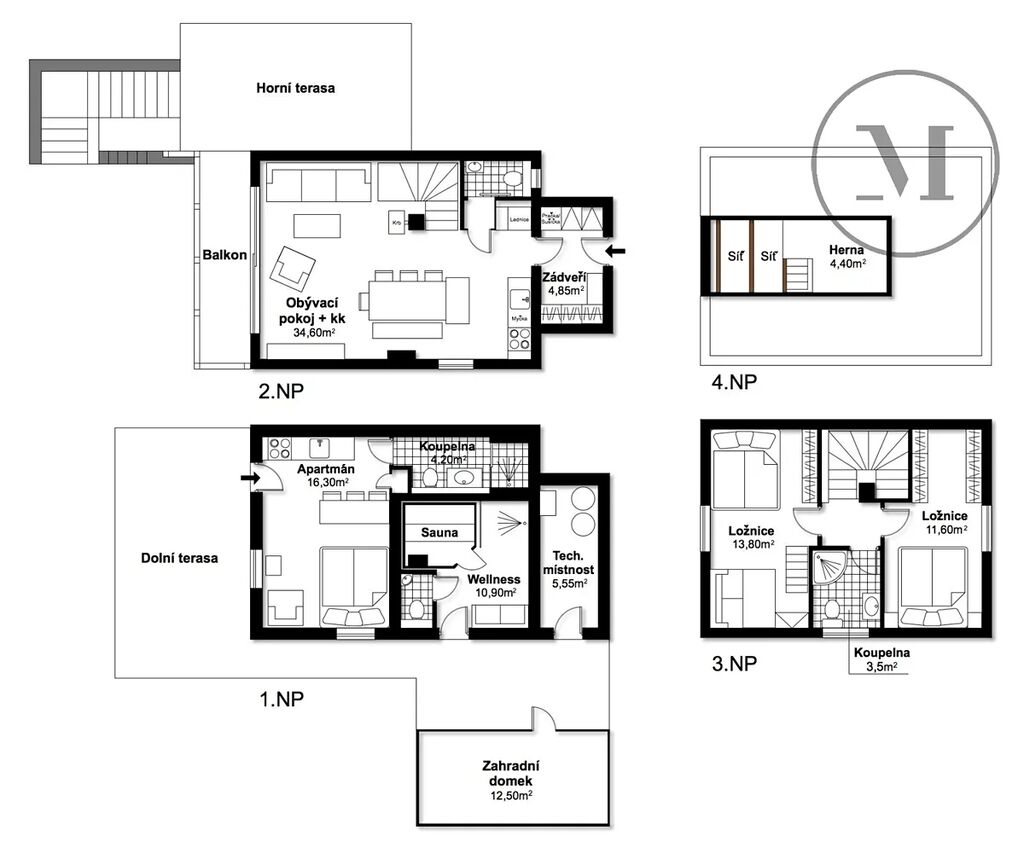
Nabízíme k prodeji luxusní chatu v Lipně nad Vltavou se 2 apartmány a saunou. Chata prošla kompletní rekonstrukcí. Při rekonstrukci byl kladen důraz na maximální využití užitné plochy, což se majitelům skutečně povedlo. Chata disponuje dvěma samostatnými apartmány. 
	
Menší a velmi útulný apartmán je v 1. NP o dispozici 1+kk s terasou a úžasným výhledem na lipenské jezero.
	
Větší apartmán je v 1. - 3. patře o dispozici 3+kk a v nejvyšším patře je multifunkční prostor využívaný jako herna.
Ta pohoda, kterou zažijete v obýváku je neopakovatelná. Obývák disponuje velikými prosklenými posuvnými dveřmi (bezprahový HS portál) s úchvatným výhledem na lipenské jezero a v zádech máte krbová kamna. U vstupu je prostorná předsíň, vedle předsíně samostatná toaleta. Ve 2. patře jsou 2 samostatné ložnice, koupelna se sprchovým koutem a toaletou.
	
Sauna je přístupná zvenku, stejně tak i technická místnost, kde je umístěný elektrokotel a bojler.
Vedle chaty je prostorný zahradní domek, jakožto zázemí pro zahradní techniku, úschovna kol a sportovního vybavení.
	
Celá chata je prošpikována moderní technikou. Chata je vytápěna elektrokotlem s podlahovým topením. V chatě je instalován Jablotron inteligentní systém, kterým se ovládá kamerový a zabezpečovací systém, lze případně propojit i na ovládání topení.
	
Chatová oblast Kobylnice je velmi lukrativní poloha obklopena nádhernou přírodou. Jen 380 m od pláže u lipenského jezera a cyklostezky podél něj. I v hlavní sezoně zde je skvělý klid a při tom na dosah všem aktivitám, které Lipno nad Vltavou nabízí. Skiareál Lipno je vzdálen 2,5 km, přímo pod chatou jezdí v zimní sezoně skibus.
	
Neváhejte mne kontaktovat. Udělejte si alespoň půl dne čas, abyste stačili načerpat všechnu energii, kterou toto místo působí.
	
	
Novela zákona č. 406/2000 Sb., o hospodaření energií, vyžaduje od 1.7.2015 zveřejnění hodnoty energetické náročnosti nemovitosti. V případě, že prodávající nemá k dispozici průkaz energetické náročnosti (PENB), je zprostředkovatel povinen uvést hodnotu G, která nemusí odpovídat skutečnému stavu nemovitosti.
Vodní 561/8a, České Budějovice
Máte zájem o tento dům?
Inzerát si prohlédlo 1 lidí
 
                                Martin Mynář
Chcete dostávat emailem podobné nabídky prodeje chat v Lipně nad Vltavou?