Prodej bytu 4+1, Plzeň, Břeclavská, 90 m2

Břeclavská, Plzeň, Severní Předměstí

5 990 000 Kč /za nemovitost HYPOTÉKA od 26 772 Kč /za měsíc
Prémioví partneři v Plzni

Podlahy

Stěhovací služby

Informace k bytu

Ojedinělá nabídka!!
Pokud hledáte v Plzni k bydlení velký byt a s možností vlastní kryté garáže, mám nabídku právě pro Vás!

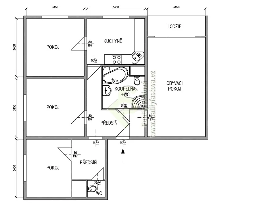
V Plzni na Vinicích, Vám nabízím ke koupi velký dvougenerační byt 4+1, s lodžií přístupnou z bytu, 2 x WC a sklepem.
Jedná se o tvz. dvougenerační byt, protože má druhou předsíň, samostatný pokoj a u něho druhou samostatnou toaletu s umyvadlem.

Byt o celkové výměře 89,6 m2 (z toho lodžie 5 m2 a sklepní koje 2 m2) se nachází v 7.patře (8.NP) panelového domu s výtahem. Dům prošel kompletní revitalizací, vč. zateplení, fasády, střechy, společných částí, výtah dle EU, atd.

Byt byl v r. 2007 kompletně a precizně zrekonstruován, má plastová okna vč. lodžiových, vnitřních a venkovních parapetů, rozvody vody a odpady jsou v plastu, nová elektřina vč. navýšených jističů. Na podlahách dlažba nebo plovoucí podlahy, nové interiérové dveře. Celý byt byl sladěn do stejného dekoru dřeva, vč. dveří a obložek.
Byt má zděné jádro s prostornou koupelnou, ve které je osazena vana i sprchový kout, umyvadlo, toaleta, pračka a koupelnový nábytek. I druhé WC je komplet po rekonstrukci.
V kuchyni je kuch.linka na míru do tvaru L, vč.dřezu, plyn.sporáku s el.troubou, digestoří a myčkou.
Byt má všechny pokoje samostatné, neprůchozí. Z velkého obývacího pokoje je výstup na lodžii.

Všichni víme, že parkování na Vinících není snadná věc, ale tím se nemusíte stresovat. K tomuto bytu nabízí majitelé i vlastní krytou garáž v kruhovitém parkovacím domě přímo naproti domu. Zaparkujete a jdete pár kroků přímo do vchodu domu. No není to skvělé!!!
Tato garáž je prostorná, lichoběžníkového tvaru, o celkové výměře 19,6 m2. Vejde se do ní velký vůz, 2 motorky, pneumatiky, pracovní ponk, atd. Do parkovacího domu mají přístup pouze vlastníci garážových stání a otvírá se na dálkové ovládání přes mobil.
Cena této garáže je 850.000,-Kč. Zatím není prodejná samostatně, je nabízena jako bonus k bytu.

Neváhejte, jedinečná nabídka!!

Parametry bytu

Cena
5 990 000 Kč /za nemovitost Spočítat hypotéku
Aktualizováno
31. 10. 2025
Adresa
Břeclavská, Plzeň, Severní Předměstí
ID
3663
Stavba
Panelová
Stav objektu
Velmi dobrý
Patro
8.
Vlastnictví
Osobní
Užitná plocha
90 m2
Sklep
Lodžie

Kontaktovat makléře

Máte zájem o tento byt?

Tímto, v souladu s nařízením Evropského parlamentu a Rady (EU) 2016/679, v platném znění, prohlašuji, že mi je alespoň 16 let a uděluji tak svůj souhlas se zpracováním zadaných údajů (jméno, telefon, e-mail, ip adresa) společnosti B3 Technology, s.r.o., IČ: 07330600, se sídlem Novostavby 126/23, 435 11 Lom (správce dat), za účelem předání dotazu z tohoto formuláře Vámi vybranému inzerentovi a zpětného kontaktování mé osoby. Osobní údaje bude správce zpracovávat manuálně i automaticky přímo prostřednictvím svých zaměstnanců. Informace předané tímto formulářem budou uloženy v databázi správce maximálně po dobu 10 let. Odvolání souhlasu s uložením a zpracováním poskytnutých dat lze e-mailem na info@videobydleni.cz. V případě podezření na neoprávněné použití Vámi poskytnutých údajů máte právo předat podnět k šetření Úřadu pro ochranu osobních údajů. Více informací
Chystáte se prodat nemovitost?
Pomůžeme Vám!

Inzerát si prohlédlo 1 lidí

Prodejce

Simona Fastová

Simona Fastová

Hlídací pes

Chcete dostávat emailem podobné nabídky prodeje bytů 4+1 v Plzni?

Podobné nemovitosti


Nevyhovuje Vám typ bytu? Podívejte se na jiné kategorie bytů.


Vybrané články z našeho blogu