Prodej bytu 1+kk, Pafos, Kypr, 34 m2 (ID: 4096082)

Pafos

171 000 € /za nemovitost
Prémioví partneři

Informace k bytu

Golf view — oficiální start prodeje
Život u moře v Pafosu přímo u golfového hřiště – prémiový komfort, klid a středomořský styl s rychlou dostupností do centra i na pláže.

O projektu
moderní uzavřené rezidenční community

apartmány se širokými balkony a výhledy

bazény, fitness, spa, dětské hřiště

zelené plochy a reprezentativní lobby

Lokalita – Pafos, Geroskipou
3 minuty k nové škole Lumio

5 minut k písečné pláži Rikkos

5 minut do centra Pafosu

10 minut na letiště

snadný přístup na dálnici a ke golfovým klubům

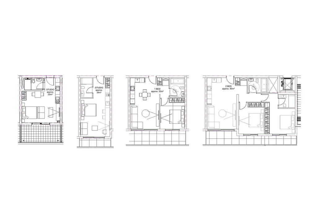
Ceny od
studio (53 m²) od 191.000 € + DPH

1 ložnice (79 m²) od 259.000 € + DPH

2 ložnice (130 m²) od 350.000 € + DPH

3 ložnice (182 m²) od 473.000 € + DPH

Speciální nabídka 10/10/10
prvních 10 apartmánů

sleva 10 %

platí do 10.10.2025

v ceně: nábytek, klimatizace a spotřebiče BOSCH

Bonus pro kupující
1 rok členství v Eléa Golf Club (sleva 20 % na jídlo a nápoje, 4 hry zdarma, dětská golfová akademie, zvýhodněné prodloužení členství).

Ideální pro život, investici i pronájem.

Dnes Kypr, se svou evropskou kulturou a civilizací sahající až do starověku, nabízí mnohem více než jen celoroční slunečné počasí, lákavé pláže, vinice, historická místa a rodinně orientovanou kulturu otevřených a komunikativních obyvatel.

Kombinace mírného klimatu, širokého využití angličtiny a dalších světových jazyků, nízké kriminality, nízkých životních nákladů a daňových výhod činí z ostrova nejatraktivnější destinaci pro život i podnikání.

Parametry bytu

Cena
171 000 € /za nemovitost
Aktualizováno
5. 12. 2025
Adresa
Pafos
ID
F19113
Stavba
Smíšená
Stav objektu
Projekt
Patro
2. z 3
Vlastnictví
Osobní
Užitná plocha
34 m2
Podlahová plocha
46 m2
Telekomunikace
Telefon, Internet
Doprava
Dálnice, Silnice, MHD, Autobus
Sklep
Terasa
Parkování

Kontaktovat makléře

Máte zájem o tento byt?

Tímto, v souladu s nařízením Evropského parlamentu a Rady (EU) 2016/679, v platném znění, prohlašuji, že mi je alespoň 16 let a uděluji tak svůj souhlas se zpracováním zadaných údajů (jméno, telefon, e-mail, ip adresa) společnosti B3 Technology, s.r.o., IČ: 07330600, se sídlem Novostavby 126/23, 435 11 Lom (správce dat), za účelem předání dotazu z tohoto formuláře Vámi vybranému inzerentovi a zpětného kontaktování mé osoby. Osobní údaje bude správce zpracovávat manuálně i automaticky přímo prostřednictvím svých zaměstnanců. Informace předané tímto formulářem budou uloženy v databázi správce maximálně po dobu 10 let. Odvolání souhlasu s uložením a zpracováním poskytnutých dat lze e-mailem na info@videobydleni.cz. V případě podezření na neoprávněné použití Vámi poskytnutých údajů máte právo předat podnět k šetření Úřadu pro ochranu osobních údajů. Více informací
Chystáte se prodat nemovitost?
Pomůžeme Vám!

Inzerát si prohlédlo 2 lidí

Prodejce

Bc.  Stoyan Stoyanov DiS.

Bc. Stoyan Stoyanov DiS.

Hlídací pes

Chcete dostávat emailem podobné nabídky prodeje bytů 1+kk?

Podobné nemovitosti


Nevyhovuje Vám typ bytu? Podívejte se na jiné kategorie bytů.


Vybrané články z našeho blogu