Prodej pozemku pro bydlení, Praha, Jeřická, 3309 m2

Jeřická, Praha 20

Cena na vyžádání /za nemovitost Získejte výhodnou HYPOTÉKU

(Cena je konečná bez dalších poplatků.)

Prémioví partneři v Praze

Stěhovací služby

Výkup a prodej starého nábytku

Informace k pozemku

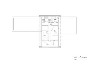
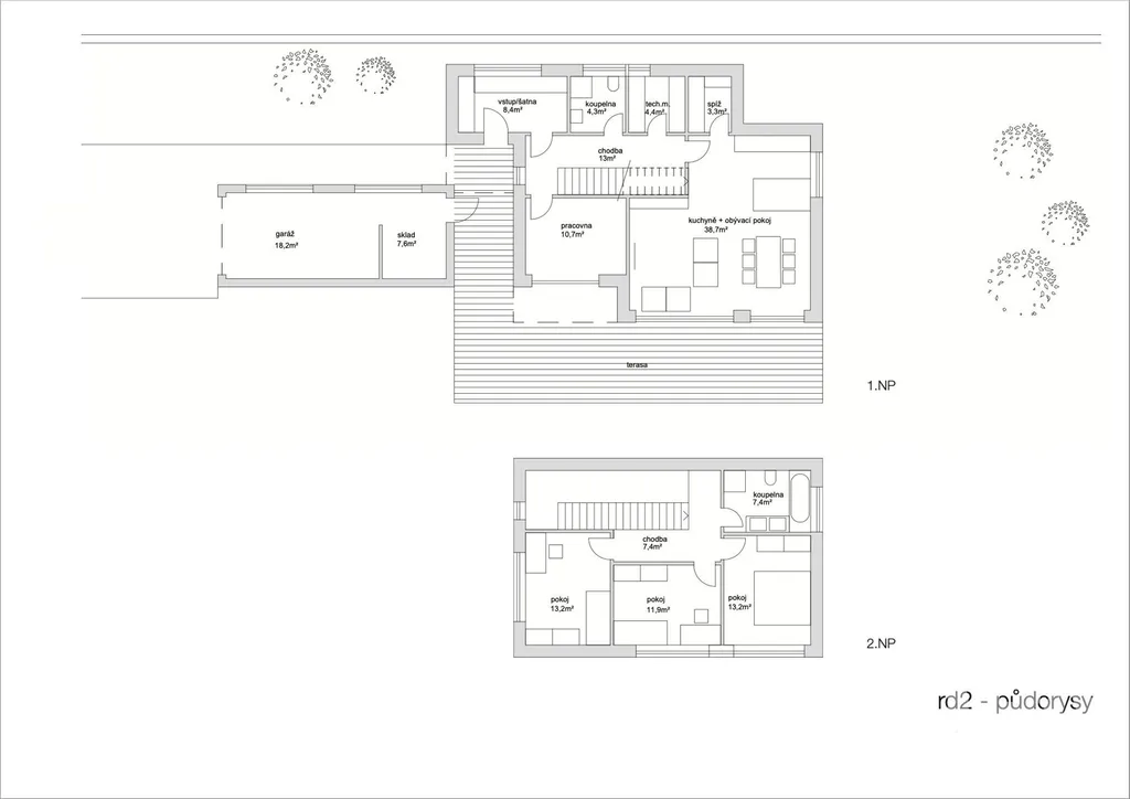
Exkluzivně nabízíme stavební pozemek s platným stavebním povolením na dvě luxusní vily. První o výměře 377 m2, druhá 225 m2. Rozmístění je znázorněno v situaci v grafické části inzerátu.

Komplex nabízí unikátní příležitost pro multigenerační bydlení v nejvyšší možné míře komfortu a soukromí. Větší vila nabízí vlastní příjezdovou cestu, dvě garážová stání a venkovní parkování. Dále terasu s bazénem a rozlehlou zahradu. Menší vila nabízí jedno garážové stání a další venkovní parkování. Půdorysy obou vil jsou pouze orientační, dispozice lze pozměnit.

Pozemek lze rozdělit a prodat zvlášť odpovídající část pro stavbu jedné z vil. Pro více informací kontaktujte makléře.

Horní Počernice jsou velmi prestižní lokalitou pro svoji dostupnost do centra Prahy, přestože jsou na dosah přírodě. Chlubí se veškerou občanskou vybaveností včetně mateřské školy, základní školy a gymnázia. Nemovitost se navíc nachází jen pár minut autem od nákupních center na Černém Mostě. V okolí jsou různá sportoviště, cyklostezky i například golfové hřiště.

V případě zájmu, nebo dalších dotazů, neváhejte kontaktovat makléře.

Parametry pozemku

Cena
Cena na vyžádání Spočítat hypotéku
Poznámka k ceně
Cena je konečná bez dalších poplatků.
Aktualizováno
23. 2. 2026
Adresa
Jeřická, Praha 20
ID
965982
Vlastnictví
Osobní
Plocha pozemku
3309 m2
Plyn
Plynovod
Odpad
Veřejná kanalizace
Doprava
Silnice, MHD, Autobus
Bazén

Kontaktovat makléře

Realitní kancelář

Logo EVROPA realitní kancelář

EVROPA realitní kancelář

Václavské náměstí 806/62, Praha

Chystáte se prodat nemovitost?
Pomůžeme Vám!

Máte zájem o tento pozemek?

Tímto, v souladu s nařízením Evropského parlamentu a Rady (EU) 2016/679, v platném znění, prohlašuji, že mi je alespoň 16 let a uděluji tak svůj souhlas se zpracováním zadaných údajů (jméno, telefon, e-mail, ip adresa) společnosti B3 Technology, s.r.o., IČ: 07330600, se sídlem Novostavby 126/23, 435 11 Lom (správce dat), za účelem předání dotazu z tohoto formuláře Vámi vybranému inzerentovi a zpětného kontaktování mé osoby. Osobní údaje bude správce zpracovávat manuálně i automaticky přímo prostřednictvím svých zaměstnanců. Informace předané tímto formulářem budou uloženy v databázi správce maximálně po dobu 10 let. Odvolání souhlasu s uložením a zpracováním poskytnutých dat lze e-mailem na info@videobydleni.cz. V případě podezření na neoprávněné použití Vámi poskytnutých údajů máte právo předat podnět k šetření Úřadu pro ochranu osobních údajů. Více informací
Chystáte se prodat nemovitost?
Pomůžeme Vám!

Inzerát si prohlédlo 6 lidí

Prodejce

William Seifert

William Seifert

Hlídací pes

Chcete dostávat emailem podobné nabídky prodeje pozemků pro bydlení v Praze?

Podobné nemovitosti


Nevyhovuje Vám typ pozemku? Podívejte se na jiné kategorie pozemků.


Vybrané články z našeho blogu