Prodej rodinného domu, Soběslav, Husova, 215 m2

Husova, Soběslav II

6 900 000 Kč /za nemovitost HYPOTÉKA od 30 839 Kč /za měsíc
Prémioví partneři v Soběslavi

Výkup a prodej starého nábytku

Informace k domu

Nabízíme k prodeji dvougenerační dům (horní patro aktuálně po kompletní rekonstrukci) o celkové výměře 250 m2 sestávající se ze dvou BJ 4kk 112 m2 + 4kk 103 m2, a to přímo v srdci Soběslavi, ul. Husova.

Některé domy mají duši. Tento ji má navíc po kompletním faceliftu z roku 2025 – takže nejen že má charakter, ale i novou fazónu.
Rodinný dům v Husově ulici, doslova pár kroků od centra Soběslavi, nabízí 215 m² užitné plochy rozdělené do dvou samostatných bytových jednotek. Každá z nich má vlastní dispozici na podlaží, což z domu dělá ideální místo pro dvougenerační bydlení nebo kombinaci vlastního bydlení a pronájmu.

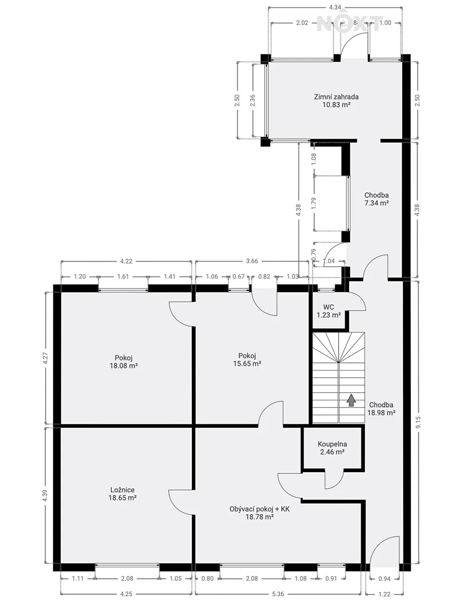
Už při vstupu vás přivítá dlouhá chodba, ze které se dostanete do obou jednotek i sklepa. V 1.NP vkročíme do menší chodby a odtud do světlého obývacího pokoje s kuchyňským koutem, tří samostatných ložnic, koupelny, odděleného WC a útulné zimní zahrady, ideální pro ranní kávu i večerní klid. Z přízemí vede schodiště do patra i do sklepa.

Horní bytová jednotka je stylová a moderní. Najdete tu kuchyň s ostrůvkem a velkou jídelnu (cca 30 m²), kde se pohodlně sejde celá rodina. Dále obývací pokoj, dvě ložnice, koupelnu, komoru a chodbu.
Díky promyšlenému uspořádání si tu každý najde svůj prostor – děti, rodiče, i ten, kdo občas prostě rád zavře dveře a chvíli si jen tak nerušeně přemítá.

Sklep (35 m²) – technické zázemí
Zde se ukrývá kotel na pelety i jejich sklad – praktické, úsporné a čisté řešení. Dům je napojen na městský vodovod i kanalizaci, o teplou vodu se stará bojler a o teplo radiátory v celém domě.
Podlahy kombinují plovoucí dřevo, PVC a dlažbu, takže se tu příjemně bydlí i uklízí. Dům se prodává částečně zařízený – což znamená, že stačí přivézt kufry, zapnout kávovar a bydlet.

Za domem najdete menší dvorek, ideální pro posezení, gril nebo sušení prádla na čerstvém vzduchu. Parkování je pohodlně na ulici přímo před domem.

Lokalita – Soběslav, kde všechno máte po ruce
Soběslav je přesně to město, které má všechno, co člověk ke spokojenému životu potřebuje – a nic zbytečně navíc.
Z domu to máte jen pár minut pěšky do centra města, parku, kina, na vlakové nádraží, fotbalové hřiště, zimní stadion, do školy, školky i obchodu. Prostě ideální poloha – centrum, ale bez ruchu velkoměsta. A pokud by vám to nestačilo, tak je u řeky 800 m ovál na kola a kolečkové brusle.
Soběslav je oblíbené jihočeské město s atmosférou, kde se dobře bydlí, vychovávají děti a kde sousedi ještě zdraví přes plot.
Dopravní spojení: vlak, dálnice D3, MHD.
Tento dům má všechno – prostor, styl, praktičnost i polohu, kterou mu budou ostatní tiše závidět. Ať už hledáte domov pro velkou rodinu, nebo dům, který vám část splátky vydělá pronájmem, v Husově ulici najdete obojí.
Pouze u nás vám zajistíme moderní financování až na 30 let, bez ohledu na věk a prokazování příjmů, či nutnosti předkládat daňové přiznání (u podnikatelů). Pro komunikaci uvádějte evidenční číslo zakázky N114313.

Parametry domu

Cena
6 900 000 Kč /za nemovitost Spočítat hypotéku
Aktualizováno
22. 12. 2025
Adresa
Husova, Soběslav II
ID
N114313
Stavba
Cihlová
Stav objektu
Po rekonstrukci
Vybaveno
Ne
Druh objektu
V bloku
Lokalita objektu
Centrum obce
Užitná plocha
215 m2
Podlahová plocha
250 m2
Plocha pozemku
261 m2
Třída energetické náročnosti
D - Méně úsporná
Elektřina
230V
Odpad
Veřejná kanalizace
Topení
Lokální tuhá paliva
Komunikace
Asfaltová
Doprava
Vlak, Dálnice, Silnice, Autobus
Voda
Vodovod
Topné těleso
Radiátory
Zdroj topení
Kotel na tuhá paliva
Zdroj teplé vody
Bojler - elektro
Sklep
Bezbarierový přístup

Kontaktovat makléře

Máte zájem o tento dům?

Tímto, v souladu s nařízením Evropského parlamentu a Rady (EU) 2016/679, v platném znění, prohlašuji, že mi je alespoň 16 let a uděluji tak svůj souhlas se zpracováním zadaných údajů (jméno, telefon, e-mail, ip adresa) společnosti B3 Technology, s.r.o., IČ: 07330600, se sídlem Novostavby 126/23, 435 11 Lom (správce dat), za účelem předání dotazu z tohoto formuláře Vámi vybranému inzerentovi a zpětného kontaktování mé osoby. Osobní údaje bude správce zpracovávat manuálně i automaticky přímo prostřednictvím svých zaměstnanců. Informace předané tímto formulářem budou uloženy v databázi správce maximálně po dobu 10 let. Odvolání souhlasu s uložením a zpracováním poskytnutých dat lze e-mailem na info@videobydleni.cz. V případě podezření na neoprávněné použití Vámi poskytnutých údajů máte právo předat podnět k šetření Úřadu pro ochranu osobních údajů. Více informací
Chystáte se prodat nemovitost?
Pomůžeme Vám!

Inzerát si prohlédlo 15 lidí

Prodejce

Mgr. Olga Procházková

Mgr. Olga Procházková

Hlídací pes

Chcete dostávat emailem podobné nabídky prodeje rodinných domů v Soběslavi?

Podobné nemovitosti


Nevyhovuje Vám typ domu? Podívejte se na jiné kategorie domů.


Vybrané články z našeho blogu