Pronájem bytu 3+1, Praha - Horní Měcholupy, Parmská, 72 m2 (ID: 4097869)

Parmská, Horní Měcholupy - Praha 15

24 900 Kč /za měsíc Získejte výhodnou HYPOTÉKU

(vratná jistota, náklady na bydlení 4 862 Kč, poplatek za podnájem)

Prémioví partneři v Praze 10

Stěhovací služby

Výkup a prodej starého nábytku

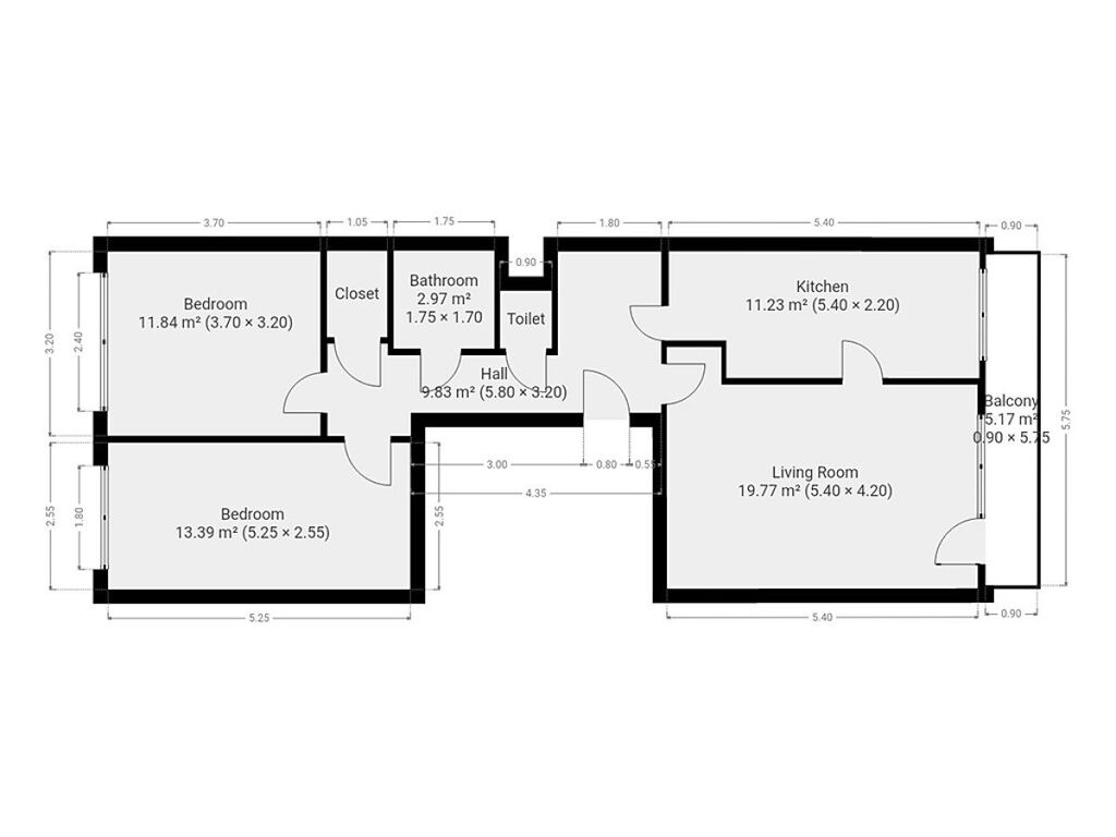
Informace k bytu

K dlouhodobému podnájmu nabízíme světlý byt o dispozici 3+1 v klidné lokalitě Praha 15 - Horní Měcholupy. Byt o celkové výměře 72 m² se nachází ve 4. patře panelového domu s výtahem. K bytu přísluší zasklená lodžie a sklep.

Byt se nabízí plně vybavený. Kuchyně disponuje lednicí s mrazákem, myčkou, elektrickou troubou, plynovou varnou deskou a digestoří. Obývací pokoj je zařízený pohovkou, pracovním stolem a dalším drobným nábytkem. Součástí ložnice je postel s matrací, komoda, noční stolky a skříň. V druhém pokoji najdeme postel s matrací, pracovní stůl a skříň. V koupelně je vana, umyvadlo, zrcadlo a pračka. Toaleta je umístěna samostatně.

V okolí domu najdeme restaurace a kavárny, hypermarket Kaufland, drogerii, polikliniku s lékárnou, poštu, základní a mateřskou školu, dětská hřiště, golfový areál, Lesopark Hostivař a vodní nádrž Hostivař atd. Pár minut chůze od domu je vzdálena autobusová zastávka Janovská (7 minut jízdy na stanici metra Háje) a v docházkové vzdálenosti je vlaková stanice Praha-Horní Měcholupy (17 minut jízdy na stanici Praha hlavní nádraží).

Byt je volný k nastěhování ihned.

Energetická třída: C (úsporná).

Parametry bytu

Cena
24 900 Kč /za měsíc
Poznámka k ceně
vratná jistota, náklady na bydlení 4 862 Kč, poplatek za podnájem
Aktualizováno
3. 11. 2025
Adresa
Parmská, Horní Měcholupy - Praha 15
ID
N6912
Stavba
Panelová
Stav objektu
Velmi dobrý
Patro
5. z 8
Vybaveno
Ano
Typ objektu
Patrový
Lokalita objektu
Klidná část obce
Vlastnictví
Osobní
Užitná plocha
72 m2
Podlahová plocha
72 m2
Třída energetické náročnosti
C - Úsporná
Elektřina
230V
Plyn
Plynovod
Topení
Ústřední dálkové
Doprava
Vlak, Dálnice, Silnice, MHD, Autobus
Voda
Vodovod
Balkon
Sklep
Lodžie
Výtah

Kontaktovat makléře

Máte zájem o tento byt?

Tímto, v souladu s nařízením Evropského parlamentu a Rady (EU) 2016/679, v platném znění, prohlašuji, že mi je alespoň 16 let a uděluji tak svůj souhlas se zpracováním zadaných údajů (jméno, telefon, e-mail, ip adresa) společnosti B3 Technology, s.r.o., IČ: 07330600, se sídlem Novostavby 126/23, 435 11 Lom (správce dat), za účelem předání dotazu z tohoto formuláře Vámi vybranému inzerentovi a zpětného kontaktování mé osoby. Osobní údaje bude správce zpracovávat manuálně i automaticky přímo prostřednictvím svých zaměstnanců. Informace předané tímto formulářem budou uloženy v databázi správce maximálně po dobu 10 let. Odvolání souhlasu s uložením a zpracováním poskytnutých dat lze e-mailem na info@videobydleni.cz. V případě podezření na neoprávněné použití Vámi poskytnutých údajů máte právo předat podnět k šetření Úřadu pro ochranu osobních údajů. Více informací
Chystáte se prodat nemovitost?
Pomůžeme Vám!

Inzerát si prohlédlo 5 lidí

Prodejce

Miloslava Kačerová

Miloslava Kačerová

Hlídací pes

Chcete dostávat emailem podobné nabídky pronájmu bytů 3+1 v Praze 10?

Podobné nemovitosti


Nevyhovuje Vám typ bytu? Podívejte se na jiné kategorie bytů.


Vybrané články z našeho blogu