Pronájem kanceláře, Praha, Revoluční, 125 m2

Revoluční, Praha 1

43 000 Kč /za měsíc Získejte výhodnou HYPOTÉKU
Prémioví partneři v Praze 1

Stěhovací služby

Výkup a prodej starého nábytku

Informace k nemovitosti

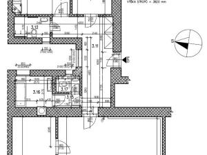
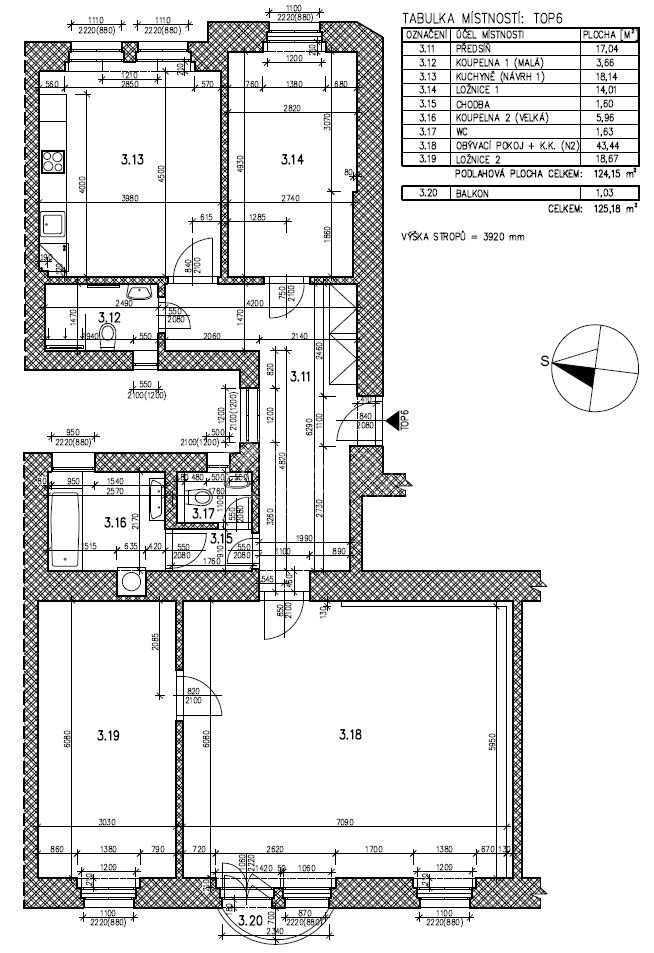
Nabízíme vám k dlouhodobému pronájmu pronájem kancelářských prostor s podlahovou plochou 125 m² v ulici Revoluční, Nové Město, Praha 1.

Jednotka s dispozicí 3+1 se nachází ve 2. patře udržované budovy s balkonem a parkovacím stáním ve vnitrobloku. Vybavení nemovitosti je částečné, včetně moderní kuchyně s veškerým vybavením (myčka na nádobí, lednice s mrazákem, indukce, digestoř). Prostory mají 2 koupelny, jednu s vanou a druhou se sprchovým koutem, obě s umyvadlem a jedna s připojením na pračku. Druhé WC je samostatné. Vytápění a ohřev vody je zajištěn centrální kotelnou.

Skvělá lokalita v centru města s veškerou občanskou vybaveností. Obchody, restaurace, lékárna, kavárny, školy, školky.

Nájemné 43 000,- Kč/měsíčně
Zálohy na služby již včetně topení 6.500,-Kč/měsíčně, elektřina se převádí na nájemce
Kauce/ provize

K nastěhování po domluvě.

V případě zájmu mě neváhejte kontaktovat.

Parametry nemovitosti

Cena
43 000 Kč /za měsíc
Aktualizováno
4. 11. 2025
Adresa
Revoluční, Praha 1
ID
Revoluční6
Stavba
Cihlová
Stav objektu
Velmi dobrý
Patro
2. z 5
Vybaveno
Částečně
Typ objektu
Patrový
Lokalita objektu
Centrum obce
Užitná plocha
125 m2
Podlahová plocha
125 m2
Třída energetické náročnosti
C - Úsporná
Elektřina
230V
Plyn
Plynovod
Odpad
Veřejná kanalizace
Doprava
Vlak, Dálnice, Silnice, MHD, Autobus
Výtah
Převod do OV
Parkování

Kontaktovat makléře

Realitní kancelář

Logo QARA, s.r.o.

QARA, s.r.o.

Šafaříkova 201/17, Praha

Chystáte se prodat nemovitost?
Pomůžeme Vám!

Máte zájem o tuto nemovistost?

Tímto, v souladu s nařízením Evropského parlamentu a Rady (EU) 2016/679, v platném znění, prohlašuji, že mi je alespoň 16 let a uděluji tak svůj souhlas se zpracováním zadaných údajů (jméno, telefon, e-mail, ip adresa) společnosti B3 Technology, s.r.o., IČ: 07330600, se sídlem Novostavby 126/23, 435 11 Lom (správce dat), za účelem předání dotazu z tohoto formuláře Vámi vybranému inzerentovi a zpětného kontaktování mé osoby. Osobní údaje bude správce zpracovávat manuálně i automaticky přímo prostřednictvím svých zaměstnanců. Informace předané tímto formulářem budou uloženy v databázi správce maximálně po dobu 10 let. Odvolání souhlasu s uložením a zpracováním poskytnutých dat lze e-mailem na info@videobydleni.cz. V případě podezření na neoprávněné použití Vámi poskytnutých údajů máte právo předat podnět k šetření Úřadu pro ochranu osobních údajů. Více informací
Chystáte se prodat nemovitost?
Pomůžeme Vám!

Inzerát si prohlédlo 1 lidí

Prodejce

Kristýna Eichler

Kristýna Eichler

Hlídací pes

Chcete dostávat emailem podobné nabídky pronájmu kanceláří v Praze 1?

Podobné nemovitosti


Nevyhovuje Vám typ nemovitosti? Podívejte se na jiné kategorie komerčních.


Vybrané články z našeho blogu