Prodej pozemku pro bydlení, Nesvačilka, 965 m2

Nesvačilka

2 946 500 Kč /za nemovitost HYPOTÉKA od 13 169 Kč /za měsíc

(včetně poplatků, včetně provize, včetně právního servisu)

Prémioví partneři v Nesvačilce

Informace k pozemku

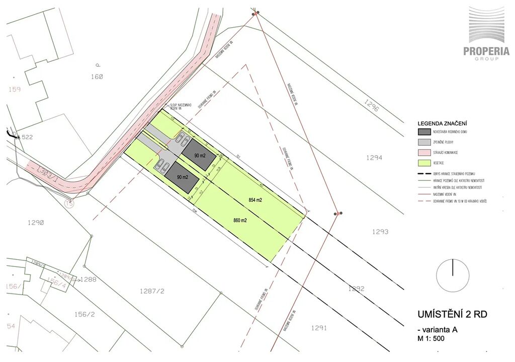
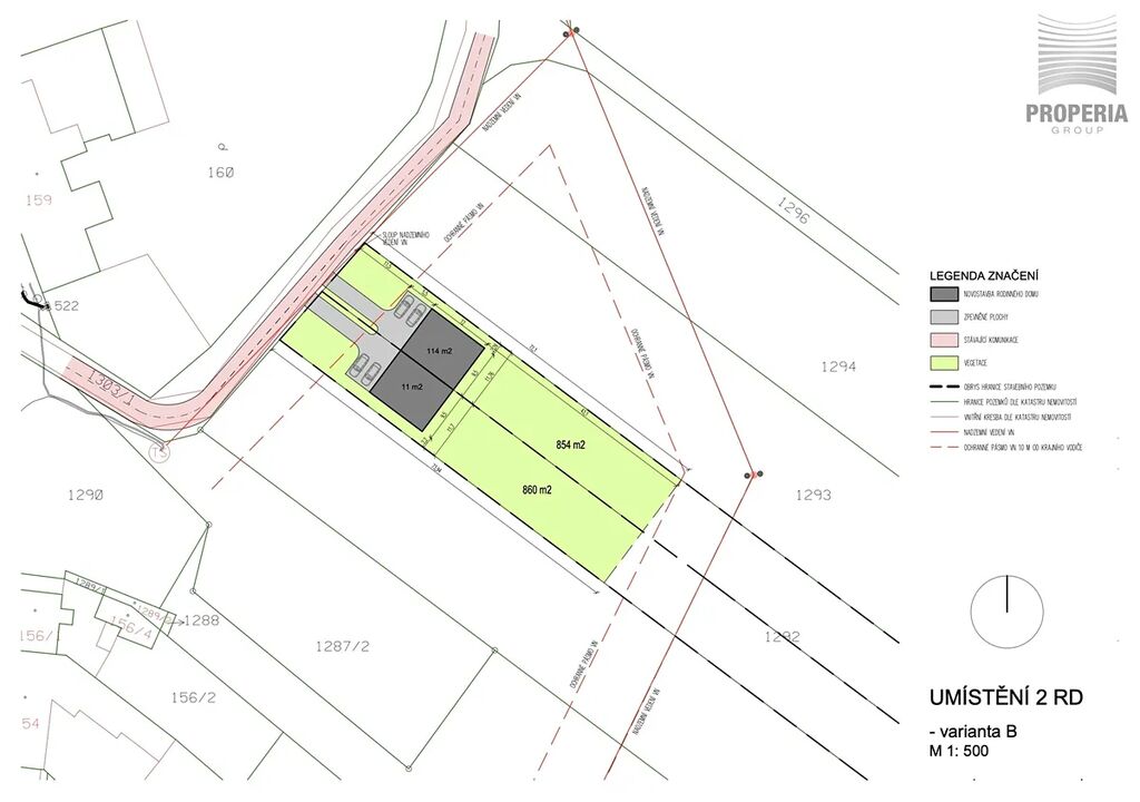
Nabízíme k prodeji atraktivní stavební parcelu o výměře cca 965 m² obdélníkového tvaru v klidné boční ulici obce Nesvačilka. Pozemek je lehce svažitý s orientací na západ směrem ke komunikaci a nachází se na kraji obce, což zaručuje dostatek soukromí i hezký výhled do okolí. Inženýrské sítě – voda, kanalizace, elektřina a plyn – se nacházejí v blízkosti pozemku.

Nesvačilka je malebná jihomoravská obec s přátelskou atmosférou vzdálená asi 20 minut jízdy jižně od Brna. Nabízí ideální kombinaci klidného venkovského prostředí a komfortní dostupnosti města. V okolí leží vinice a pole, krajinu protkávají cyklostezky lákající k procházkám i odpočinku.

Do Brna se pohodlně dostanete autem nebo autobusem IDS JMK, který zajišťuje přímé spojení přes Sokolnice. Zde lze využít železniční stanici se spojením do Brna. V obci naleznete obchod s potravinami a restauraci, mateřská a základní škola i lékař sídlí v nedalekých Těšanech.

Nesvačilka je zkrátka příjemné, klidné místo obklopené přírodou, a přesto v dosahu města.

Parametry pozemku

Cena
2 946 500 Kč /za nemovitost Spočítat hypotéku
Poznámka k ceně
včetně poplatků, včetně provize, včetně právního servisu
Aktualizováno
21. 12. 2025
Adresa
Nesvačilka
ID
03671
Plocha pozemku
965 m2
Elektřina
230V, 400V
Odpad
Veřejná kanalizace
Voda
Vodovod

Kontaktovat makléře

Realitní kancelář

PROPERIA GROUP, s.r.o.

Máchova 1301/2, Brno, Královo Pole

Chystáte se prodat nemovitost?
Pomůžeme Vám!

Máte zájem o tento pozemek?

Tímto, v souladu s nařízením Evropského parlamentu a Rady (EU) 2016/679, v platném znění, prohlašuji, že mi je alespoň 16 let a uděluji tak svůj souhlas se zpracováním zadaných údajů (jméno, telefon, e-mail, ip adresa) společnosti B3 Technology, s.r.o., IČ: 07330600, se sídlem Novostavby 126/23, 435 11 Lom (správce dat), za účelem předání dotazu z tohoto formuláře Vámi vybranému inzerentovi a zpětného kontaktování mé osoby. Osobní údaje bude správce zpracovávat manuálně i automaticky přímo prostřednictvím svých zaměstnanců. Informace předané tímto formulářem budou uloženy v databázi správce maximálně po dobu 10 let. Odvolání souhlasu s uložením a zpracováním poskytnutých dat lze e-mailem na info@videobydleni.cz. V případě podezření na neoprávněné použití Vámi poskytnutých údajů máte právo předat podnět k šetření Úřadu pro ochranu osobních údajů. Více informací
Chystáte se prodat nemovitost?
Pomůžeme Vám!

Inzerát si prohlédlo 8 lidí

Prodejce

Mgr. Jan Roztočil

Mgr. Jan Roztočil

Hlídací pes

Chcete dostávat emailem podobné nabídky prodeje pozemků pro bydlení v Nesvačilce?

Podobné nemovitosti


Nevyhovuje Vám typ pozemku? Podívejte se na jiné kategorie pozemků.


Vybrané články z našeho blogu