Prodej bytu 2+1, Šumperk, Revoluční, 55 m2

Revoluční, Šumperk

3 190 000 Kč /za nemovitost HYPOTÉKA od 14 257 Kč /za měsíc
Prémioví partneři v Šumperku

Informace k bytu

Cihlový byt s výbornou polohou a jistým investičním potenciálem? Tato 2+1 spojuje klidné bydlení s blízkostí centra města.

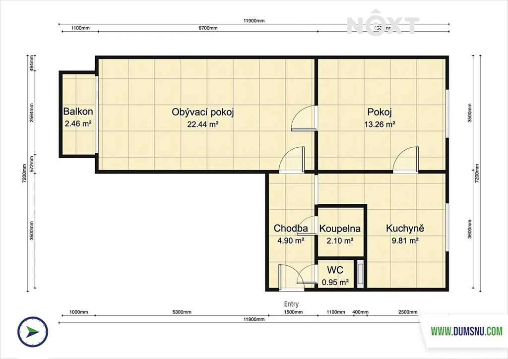
Byt s celkovou výměrou 55 m² se nachází ve 4. nadzemním podlaží udržovaného cihlového domu bez výtahu. Prošel rekonstrukcí a je připraven k okamžitému užívání nebo k pronájmu. Z vstupní chodby se dostanete do kuchyně, koupelny a samostatného WC, dále do obývacího pokoje s balkonem. Další pokoj je průchozí z obývacího pokoje i kuchyně.

K bytu náleží také sklepní kóje.

Vytápění i ohřev vody jsou řešeny centrálně z teplárny, což zaručuje pohodlný a úsporný provoz.

Lokalita je skvělá - v docházkové vzdálenosti najdete obchody, služby i centrum města. Parkování je možné přímo před domem.

Díky své poloze, dispozici a nízkým provozním nákladům je byt ideální jak pro vlastní bydlení, tak jako zajímavá investiční příležitost.

Neváhejte a domluvte si prohlídku – ráda Vám byt osobně představím! V rámci našeho realitního a finančního servisu Vám rádi pomůžeme i s nejvýhodnějším financováním nákupu. Pro komunikaci uvádějte evidenční číslo zakázky N114822.

Parametry bytu

Cena
3 190 000 Kč /za nemovitost Spočítat hypotéku
Aktualizováno
8. 11. 2025
Adresa
Revoluční, Šumperk
ID
N114822
Stavba
Cihlová
Stav objektu
Dobrý
Patro
4. z 5
Vybaveno
Ne
Vlastnictví
Osobní
Užitná plocha
55 m2
Třída energetické náročnosti
D - Méně úsporná
Elektřina
230V
Plyn
Plynovod
Odpad
Veřejná kanalizace
Topení
Ústřední dálkové
Komunikace
Asfaltová
Voda
Vodovod
Zdroj teplé vody
Centrální dálkový ohřev
Balkon
Sklep
Výtah
Bezbarierový přístup

Kontaktovat makléře

Máte zájem o tento byt?

Tímto, v souladu s nařízením Evropského parlamentu a Rady (EU) 2016/679, v platném znění, prohlašuji, že mi je alespoň 16 let a uděluji tak svůj souhlas se zpracováním zadaných údajů (jméno, telefon, e-mail, ip adresa) společnosti B3 Technology, s.r.o., IČ: 07330600, se sídlem Novostavby 126/23, 435 11 Lom (správce dat), za účelem předání dotazu z tohoto formuláře Vámi vybranému inzerentovi a zpětného kontaktování mé osoby. Osobní údaje bude správce zpracovávat manuálně i automaticky přímo prostřednictvím svých zaměstnanců. Informace předané tímto formulářem budou uloženy v databázi správce maximálně po dobu 10 let. Odvolání souhlasu s uložením a zpracováním poskytnutých dat lze e-mailem na info@videobydleni.cz. V případě podezření na neoprávněné použití Vámi poskytnutých údajů máte právo předat podnět k šetření Úřadu pro ochranu osobních údajů. Více informací
Chystáte se prodat nemovitost?
Pomůžeme Vám!

Inzerát si prohlédlo 2 lidí

Prodejce

Mgr. Ivana Uhlířová

Mgr. Ivana Uhlířová

Hlídací pes

Chcete dostávat emailem podobné nabídky prodeje bytů 2+1 v Šumperku?

Podobné nemovitosti


Nevyhovuje Vám typ bytu? Podívejte se na jiné kategorie bytů.


Vybrané články z našeho blogu