Soccer reality

Prodej bytu 4+kk, Nehvizdy, Pražská, 107 m2 (ID: 4099668)

Pražská, Nehvizdy

8 200 000 Kč /za nemovitost HYPOTÉKA od 36 649 Kč /za měsíc

(včetně provize, včetně právního servisu)

Prémioví partneři v Nehvizdech

Informace k bytu

Prostorný mezonet 4+kk, 107 m², Nehvizdy – skvělá dostupnost do Prahy

Hledáte velký, světlý byt s výborným spojením do Prahy?

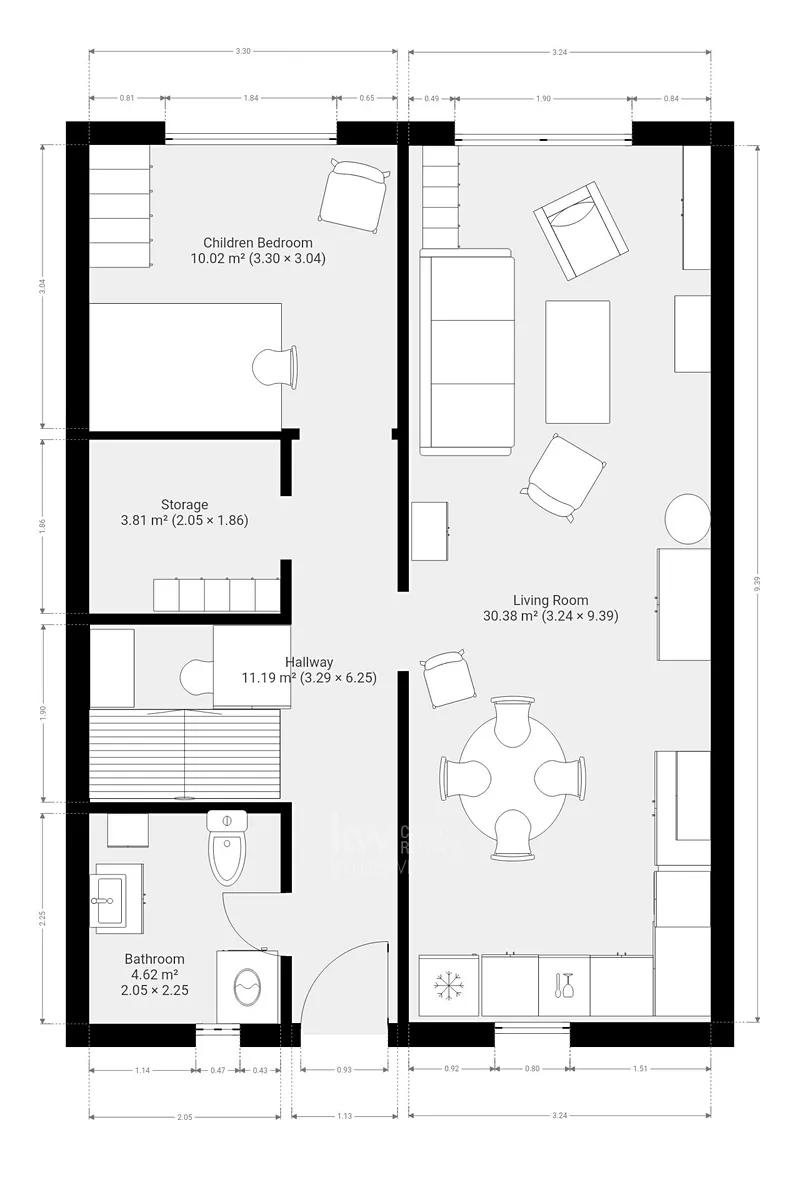
V oblíbeném městysu Nehvizdy, pouhých 8 km od Horních Počernic, nabízíme k prodeji prostorný mezonet 4+kk v osobním vlastnictví o podlahové ploše 107 m². Nachází se ve 2. a 3. nadzemním podlaží cihlového domu z roku 2001 v ulici Pražská.

Dispozice

Do bytu vstupujete samostatným vstupem z pavlače ve 2. patře.

Spodní patro: obývací pokoj s kuchyní (30,4 m²), ložnice (10 m²), Komora předsíň (4 m²) , koupelna s WC (4,25 m²), chodba a schodiště (11,2m²).

Horní patro: chodba (2,84 m²), pokoj (14,92 m²), ložnice (23 m²), koupelna s wc (7,14 m²).

Vybavení a technické údaje

- Vlastní plynový kotel s průtokovým ohřevem TUV
- Samostatný elektroměr, plynoměr a podružný vodoměr
- Koupelna s vanou, umyvadlem a WC
- Cihlový dům rozdělený na 12 bytových jednotek
- Parkování na ulici

Výhody lokality

Nehvizdy jsou vyhledávaným místem pro rodiny – nabízejí kompletní občanskou vybavenost:
ZŠ, MŠ, obchody, restaurace, lékař, sportoviště, sokolovna, cyklostezky, zoopark.

Autobus 30 min na metro B – Černý Most, autem cca 15 min do Prahy

Plánovaný terminál vysokorychlostní trati Praha–Brno pro ještě rychlejší spojení

Pro koho je byt vhodný:

Rodinné bydlení s dostatkem prostoru
Investice k dlouhodobému pronájmu

Ihned k nastěhování

Jiří Koucký – realitní makléř

​​Uvedené výměry jsou orientační. V případě více zájemců bude nemovitost prodána nejlepší nabídce a majitel si vyhrazuje právo vybrat kupujícího na základě jim zvolených kritérií. Veškeré zveřejněné údaje obsažené v tomto inzerátu mají pouze informativní charakter a nejsou nabídkou ve smyslu § 1731 nebo § 1732 občanského zákoníku, ani se nejedná o veřejný příslib dle § 1733 občanského zákoníku.

Parametry bytu

Cena
8 200 000 Kč /za nemovitost Spočítat hypotéku
Poznámka k ceně
včetně provize, včetně právního servisu
Aktualizováno
4. 2. 2026
Adresa
Pražská, Nehvizdy
ID
28318
Stavba
Cihlová
Stav objektu
Dobrý
Patro
2. z 3
Vybaveno
Částečně
Lokalita objektu
Klidná část obce
Vlastnictví
Osobní
Užitná plocha
107 m2
Třída energetické náročnosti
G - Mimořádně nehospodárná
Elektřina
230V
Plyn
Plynovod
Odpad
Veřejná kanalizace
Telekomunikace
Telefon, Internet
Voda
Vodovod
Zdroj topení
Plynový kondenzační kotel
Zdroj teplé vody
Plynový kotel
Parkování

Kontaktovat makléře

Máte zájem o tento byt?

Tímto, v souladu s nařízením Evropského parlamentu a Rady (EU) 2016/679, v platném znění, prohlašuji, že mi je alespoň 16 let a uděluji tak svůj souhlas se zpracováním zadaných údajů (jméno, telefon, e-mail, ip adresa) společnosti B3 Technology, s.r.o., IČ: 07330600, se sídlem Novostavby 126/23, 435 11 Lom (správce dat), za účelem předání dotazu z tohoto formuláře Vámi vybranému inzerentovi a zpětného kontaktování mé osoby. Osobní údaje bude správce zpracovávat manuálně i automaticky přímo prostřednictvím svých zaměstnanců. Informace předané tímto formulářem budou uloženy v databázi správce maximálně po dobu 10 let. Odvolání souhlasu s uložením a zpracováním poskytnutých dat lze e-mailem na info@videobydleni.cz. V případě podezření na neoprávněné použití Vámi poskytnutých údajů máte právo předat podnět k šetření Úřadu pro ochranu osobních údajů. Více informací
Chystáte se prodat nemovitost?
Pomůžeme Vám!

Inzerát si prohlédlo 14 lidí

Prodejce

Jiří Koucký

Jiří Koucký

Hlídací pes

Chcete dostávat emailem podobné nabídky prodeje bytů 4+kk v Nehvizdech?

Podobné nemovitosti


Nevyhovuje Vám typ bytu? Podívejte se na jiné kategorie bytů.


Vybrané články z našeho blogu