Prodej rodinného domu, Liberec, K Mojžíšovu prameni, 200 m2 (ID: 4099682)

K Mojžíšovu prameni, Liberec XXX-Vratislavice nad Nisou

12 580 000 Kč /za nemovitost HYPOTÉKA od 56 225 Kč /za měsíc

(včetně provize, včetně právního servisu)

Prémioví partneři v Liberci

Rekonstrukce

Úklidové služby

Informace k domu

Přáli byste si rodinný dům v romantické přírodě kousek od Liberce? Nebo jste milovník zimních sportů a líbilo by se Vám horské útočiště? Nebo hledáte investiční nemovitost s několika bytovými jednotkami? Nebo by se Vám líbila kombinace něčeho zmíněného?

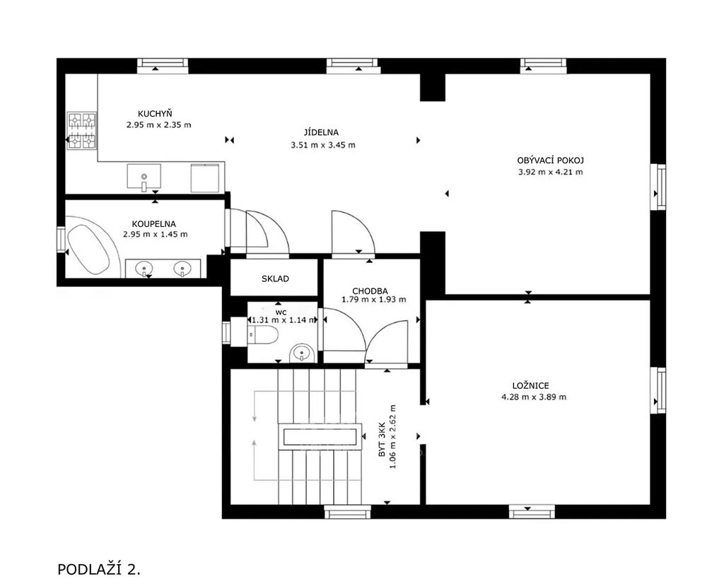
Tak jste tu tedy správně. Dnes pro Vás mám rustikální vilu z roku 1938 nacházející se u Mojžíšova pramene. Vila byla postavena česko-německou rodinnou, dle návrhů německých architektů a je vystavěna z cihel. Dům byl kompletně a citlivě zrekonstruován a k dokončení rekonstrukce došlo před dvěma lety. Dům se nachází téměř na samotě přesto pouhých 10min. do centra Liberce. Pozemek je na velmi žádaném a oblíbeném místě, v populární lokalitě Vratislavic nad Nisou s vyhlídkami na Liberec a Ještěd, vstupem do okolních lesů směrem na vyhlídku Císařský kámen a kousek nad domem jsou dokonce vidět i Krkonoše. Romantické prostředí s přilehlými loukami a lesy nabízí velmi klidné bydlení, bez přímých sousedů avšak s velmi dobrou dostupností do centra Liberce, Jablonce nebo s pohodlným napojením na Prahu (ta je cca 55 min autem). Koupat se můžete například ve Veseckém rybníku (1km na kole). Jedná se o velmi unikátní prostor, vzhledem k jeho poloze a okolí.

Rekonstrukce obsahovala rozvody elektřiny, vody, topení, podlahové topení v přízemí, výměna oken, podlahy, koupelny, kuchyně, vyvložkovaný komín s dvěma průduchy a novou čistírnu odpadních vod dimenzovanou pro 8 osob. Je zde i příprava rozvodů a nádrže na dešťovou vodu na splachování a zalévání. Použity kvalitní materiály, italská dlažba a keramika, dřevěné podlahy z masivu, francouzské kuchyně. Vše designováno s ohledem na unikátnost domu a jeho přirozenou polohu v rámci prostoru kde se nachází. Celý dům je podsklepen (cca. 70m2), sklepní prostory se využívají jako kotelna, prádelna a sklad. Nyní se v domě nachází tři byty o dispozicích 1kk, 2kk a 3kk. Předěl mezi přízemím a horním patrem lze vyřešit elektrickou roletou.

Na pozemku 1080m2 je připravená voda a elektřina na saunu, bazén, či letní kuchyň. Dále se zde nachází samostatná garáž (20m2) a hrací prvky pro děti. Na domě je bezpečnostní kamera a elektrické rozvody na další kamery v každém rohu domu.

Pro virtuální prohlídku domu mě kontaktujte a na následnou prohlídku se budu těšit.

Parametry domu

Cena
12 580 000 Kč /za nemovitost Spočítat hypotéku
Poznámka k ceně
včetně provize, včetně právního servisu
Aktualizováno
5. 11. 2025
Adresa
K Mojžíšovu prameni, Liberec XXX-Vratislavice nad Nisou
ID
27129
Stavba
Cihlová
Stav objektu
Dobrý
Vybaveno
Částečně
Druh objektu
Samostatný
Lokalita objektu
Polosamota
Užitná plocha
200 m2
Plocha pozemku
1080 m2
Třída energetické náročnosti
G - Mimořádně nehospodárná
Elektřina
230V
Odpad
ČOV pro celý objekt
Komunikace
Asfaltová
Telekomunikace
Telefon, Internet, Kabelová televize
Voda
Studna
Topné těleso
Podlahové vytápění, Radiátory, Krbová kamna
Zdroj topení
Elektrokotel
Zdroj teplé vody
Elektrokotel
Garáž
Sklep
Výtah

Kontaktovat makléře

Máte zájem o tento dům?

Tímto, v souladu s nařízením Evropského parlamentu a Rady (EU) 2016/679, v platném znění, prohlašuji, že mi je alespoň 16 let a uděluji tak svůj souhlas se zpracováním zadaných údajů (jméno, telefon, e-mail, ip adresa) společnosti B3 Technology, s.r.o., IČ: 07330600, se sídlem Novostavby 126/23, 435 11 Lom (správce dat), za účelem předání dotazu z tohoto formuláře Vámi vybranému inzerentovi a zpětného kontaktování mé osoby. Osobní údaje bude správce zpracovávat manuálně i automaticky přímo prostřednictvím svých zaměstnanců. Informace předané tímto formulářem budou uloženy v databázi správce maximálně po dobu 10 let. Odvolání souhlasu s uložením a zpracováním poskytnutých dat lze e-mailem na info@videobydleni.cz. V případě podezření na neoprávněné použití Vámi poskytnutých údajů máte právo předat podnět k šetření Úřadu pro ochranu osobních údajů. Více informací
Chystáte se prodat nemovitost?
Pomůžeme Vám!

Inzerát si prohlédlo 1 lidí

Prodejce

Bc. Annelie Herz

Bc. Annelie Herz

Hlídací pes

Chcete dostávat emailem podobné nabídky prodeje rodinných domů v Liberci?

Podobné nemovitosti


Nevyhovuje Vám typ domu? Podívejte se na jiné kategorie domů.


Vybrané články z našeho blogu