Prodej rodinného domu, Neratovice, V Polích, 129 m2 (ID: 4099758)

V Polích, Neratovice, Lobkovice

8 900 000 Kč /za nemovitost HYPOTÉKA od 39 778 Kč /za měsíc

(Jednotka č. 2)

Prémioví partneři v Neratovicích

Informace k domu

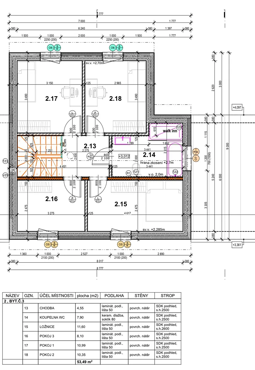
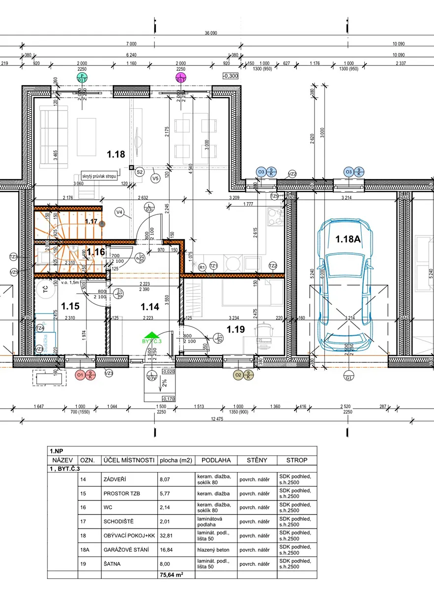
Rodinná realitní kancelář Tři bratři si Vám dovoluje nabídnout koupi nízkoenergetické novostavby 6+kk s garáží v Lobkovicích - Neratovice. Tento moderní patrový dům vedený díky společné základové desce s ostatními dvěma domy jako bytová jednotka č. 2 je ideální volbou pro rodiny, které hledají pohodlné a útulné bydlení. Dřevostavba byla navržena s ohledem na kvalitní bydlení a splňuje nároky na moderní životní styl. Dům disponuje pěti pokoji, což zajišťuje dostatek prostoru pro všechny členy rodiny. Vytápění nízkoenergetického domu zajištuje tepelné čerpadlo výhřevem podlah v obou patrech. Kanalizace i vodovod je obecní.

Nemovitost s garáží se nachází uprostřed, mezi dvěma domy s přístupem na zahradu za domem: Celková rozloha pozemku činní 280 m2.

Domluvte si prohlídku po 15. listopadu 2025, kdy už budou domy přístupné, abyste si mohli osobně prohlédnout všechny výhody této nemovitosti a zjistit, zda by se mohla stát vaším novým domovem.

Rodinné bydlení v Lobkovicích má několik výhod:

1. Klidná lokalita – Lobkovice jsou menší, tichá obecní část s vesnickým charakterem, ale s výhodami městské infrastruktury Neratovic.

2. Blízkost Prahy – výborná dostupnost do Prahy autem (cca 30–40 min), nebo vlakem a autobusem, což je ideální pro dojíždění za prací.

3. Občanská vybavenost – v blízkých Neratovicích je plná občanská vybavenost (školy, školky, lékaři, obchodní centra, sportoviště).

4. Příroda a volný čas – okolí nabízí mnoho zeleně, cyklostezky, Labe, koupání, rybaření, procházky a klidné prostředí vhodné pro rodiny s dětmi.

5. Historický charakter – Lobkovice mají historickou hodnotu, včetně zámku, což dodává lokalitě jedinečnou atmosféru.

6. Růst hodnoty nemovitostí – díky dobré dostupnosti do Prahy a rozvoji oblasti je lokalita i zajímavá z pohledu investice.

Ideální volba pro ty, kdo chtějí spojit klid venkova s výhodami městského života.

Pokud Vás dům zaujal, neváhejte nám napsat nebo zavolat a rádi Vám vše ukážeme osobně.

Parametry domu

Cena
8 900 000 Kč /za nemovitost Spočítat hypotéku
Poznámka k ceně
Jednotka č. 2
Aktualizováno
5. 11. 2025
Adresa
V Polích, Neratovice, Lobkovice
Stavba
Dřevěná
Stav objektu
Novostavba
Druh objektu
Řadový
Lokalita objektu
Klidná část obce
Užitná plocha
129 m2
Plocha pozemku
280 m2
Třída energetické náročnosti
A - Mimořádně úsporná
Odpad
Veřejná kanalizace
Komunikace
Dlážděná
Voda
Vodovod
Topné těleso
Podlahové vytápění
Zdroj topení
Tepelné čerpadlo
Zdroj teplé vody
Tepelné čerpadlo
Garáž
Parkování

Kontaktovat makléře

Realitní kancelář

Martin Svoboda

K Žižkovu 640/9, Praha, Vysočany

Chystáte se prodat nemovitost?
Pomůžeme Vám!

Máte zájem o tento dům?

Tímto, v souladu s nařízením Evropského parlamentu a Rady (EU) 2016/679, v platném znění, prohlašuji, že mi je alespoň 16 let a uděluji tak svůj souhlas se zpracováním zadaných údajů (jméno, telefon, e-mail, ip adresa) společnosti B3 Technology, s.r.o., IČ: 07330600, se sídlem Novostavby 126/23, 435 11 Lom (správce dat), za účelem předání dotazu z tohoto formuláře Vámi vybranému inzerentovi a zpětného kontaktování mé osoby. Osobní údaje bude správce zpracovávat manuálně i automaticky přímo prostřednictvím svých zaměstnanců. Informace předané tímto formulářem budou uloženy v databázi správce maximálně po dobu 10 let. Odvolání souhlasu s uložením a zpracováním poskytnutých dat lze e-mailem na info@videobydleni.cz. V případě podezření na neoprávněné použití Vámi poskytnutých údajů máte právo předat podnět k šetření Úřadu pro ochranu osobních údajů. Více informací
Chystáte se prodat nemovitost?
Pomůžeme Vám!

Inzerát si prohlédlo 1 lidí

Prodejce

Martin Svoboda

Martin Svoboda

Hlídací pes

Chcete dostávat emailem podobné nabídky prodeje rodinných domů v Neratovicích?

Podobné nemovitosti


Nevyhovuje Vám typ domu? Podívejte se na jiné kategorie domů.


Vybrané články z našeho blogu