Prodej bytu 2+kk, Praha - Strašnice, Za poštou, 38 m2 (ID: 4100330)

Za poštou, Praha, Strašnice

6 750 000 Kč /za nemovitost HYPOTÉKA od 30 168 Kč /za měsíc

(Cena včetně provize a právních služeb.)

Prémioví partneři v Praze 10

Stěhovací služby

Výkup a prodej starého nábytku

Informace k bytu

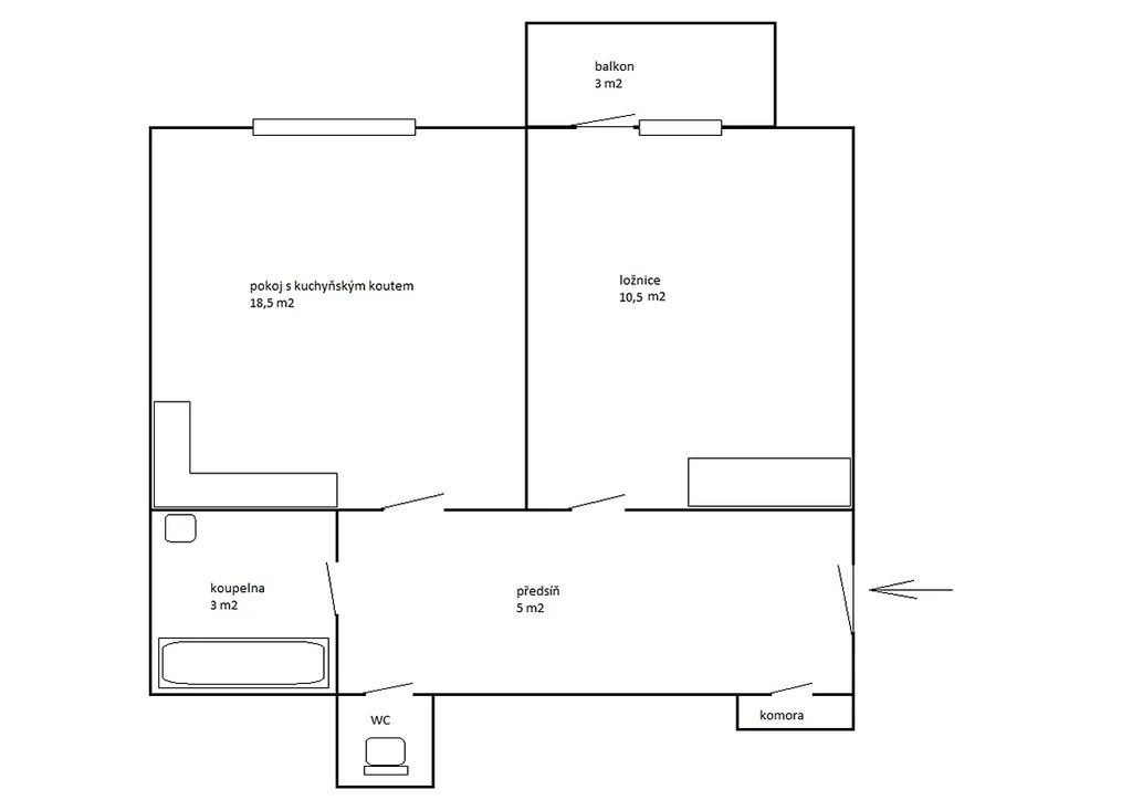
Nabízíme k prodeji pěkný byt 2+kk s balkonem ve třetím patře cihlového domu v Praze 10 Strašnicích. Byt byl v roce 2019 zrekonstruován, jsou zde nové rozvody vody a elektřiny, plastová okna, rohová kuchyňská linka se spotřebiči, koupelna s vanou, WC je samostatně, na podlahách je vinyl a dlažba. Okna a balkon jsou orientovány do klidného vnitrobloku. Topení a ohřev vody je zajištěn elektro kotlem. K bytu patří také sklep. Poplatky včetně fondu oprav jsou ve výši 2.070,- Kč pro dvě osoby. Metro Strašnická je cca 8 minut chůze, stanice tramvaje cca 2 minuty chůze. V okolí je veškerá občanská vybavenost. Ihned volný.

Parametry bytu

Cena
6 750 000 Kč /za nemovitost Spočítat hypotéku
Poznámka k ceně
Cena včetně provize a právních služeb.
Náklady na bydlení
FO 792 Kč/měsíc
Aktualizováno
29. 12. 2025
Adresa
Za poštou, Praha, Strašnice
Stavba
Cihlová
Stav objektu
Velmi dobrý
Patro
3.
Vlastnictví
Osobní
Užitná plocha
38 m2
Balkon

Kontaktovat makléře

Realitní kancelář

PROFI-TEN

Vodičkova 682/20, Praha

Chystáte se prodat nemovitost?
Pomůžeme Vám!

Máte zájem o tento byt?

Tímto, v souladu s nařízením Evropského parlamentu a Rady (EU) 2016/679, v platném znění, prohlašuji, že mi je alespoň 16 let a uděluji tak svůj souhlas se zpracováním zadaných údajů (jméno, telefon, e-mail, ip adresa) společnosti B3 Technology, s.r.o., IČ: 07330600, se sídlem Novostavby 126/23, 435 11 Lom (správce dat), za účelem předání dotazu z tohoto formuláře Vámi vybranému inzerentovi a zpětného kontaktování mé osoby. Osobní údaje bude správce zpracovávat manuálně i automaticky přímo prostřednictvím svých zaměstnanců. Informace předané tímto formulářem budou uloženy v databázi správce maximálně po dobu 10 let. Odvolání souhlasu s uložením a zpracováním poskytnutých dat lze e-mailem na info@videobydleni.cz. V případě podezření na neoprávněné použití Vámi poskytnutých údajů máte právo předat podnět k šetření Úřadu pro ochranu osobních údajů. Více informací
Chystáte se prodat nemovitost?
Pomůžeme Vám!

Inzerát si prohlédlo 31 lidí

Prodejce

František Cakl

František Cakl

Hlídací pes

Chcete dostávat emailem podobné nabídky prodeje bytů 2+kk v Praze 10?

Podobné nemovitosti


Nevyhovuje Vám typ bytu? Podívejte se na jiné kategorie bytů.


Vybrané články z našeho blogu