Pronájem obchodního prostoru, Praha - Vinohrady, Chrudimská, 360 m2 (ID: 4100548)

Chrudimská, Praha 3, Vinohrady

350 Kč /za metr čtvereční / měsíc Získejte výhodnou HYPOTÉKU

(+ záloha na služby a energie 145 Kč /m2 + 2x kauce)

Prémioví partneři v Praze 3

Stěhovací služby

Výkup a prodej starého nábytku

Informace k nemovitosti

Neplatíte provizi RK!

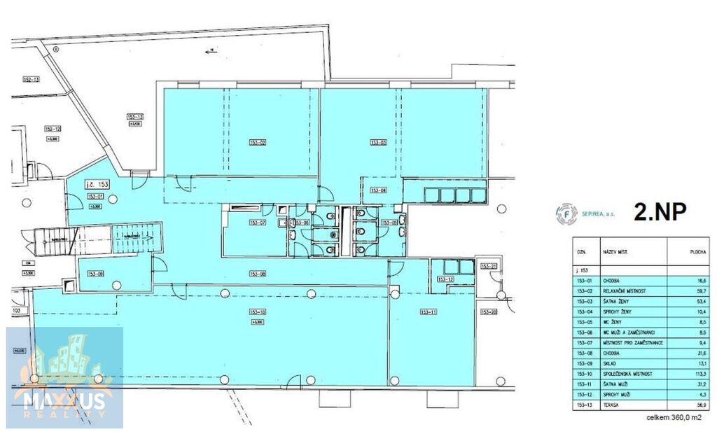
Nabízíme k dlouhodobému pronájmu nebytové prostory o ploše 360 m2 ve 2. nadzemním podlaží objektu AGORA FLORA se vstupem z pasáže, která spojuje ulici Hradeckou a Chrudimskou.

Aktuálně jsou prostory provozovány jako studio HOT YOGA. Prostory jsou zkolaudovány jako „centrum volného času“, takže jsou vhodné pro aktivity podobného zaměření (yoga, pilates, pohybové aktivity, taneční studio, masáže apod.). Případně lze prostory po úpravě a změně užívání využít i jako kanceláře či zdravotnické zařízení. Termín počátku nájemního vztahu dle dohody. Po dohodě se stávajícím nájemcem lze za odstupné převzít zařízení a vybavení studia.

Nájemné bude každoročně indexováno dle aktuálních údajů ČSÚ o průměrném
růstu indexu spotřebitelských cen za předchozí kalendářní rok. Pronajímatel preferuje nájemní smlouvu na dobu určitou, min. 3 roky. Jistota ve výši 2 měsíčních nájmů včetně DPH a 2 záloh na služby.

Technická specifikace nebytového prostoru:
o elektrická energie, přívod teplé a studené vody, centrální vytápění
o vlastní sociální zázemí
o klimatizační systém – topení a chlazení
o vstup do společných prostor na čipy
o světlá výška 2,9 m

Vybavení budovy:
o ostraha 24/7
o EPS, CCTV
o vstup na čipy
o podzemní garáže

Pronajímatel je připraven:
o konzultovat technické požadavky nájemce na úpravu prostor
o realizovat stavební úpravy prostor
o zajistit projednávání požadovaných změn s dotčenými orgány

Parametry nemovitosti

Cena
350 Kč /za metr čtvereční / měsíc
Poznámka k ceně
+ záloha na služby a energie 145 Kč /m2 + 2x kauce
Aktualizováno
7. 11. 2025
Adresa
Chrudimská, Praha 3, Vinohrady
ID
7968
Stavba
Cihlová
Stav objektu
Velmi dobrý
Typ objektu
Patrový
Lokalita objektu
Centrum obce
Užitná plocha
360 m2
Zastavěná plocha
360 m2
Podlahová plocha
360 m2
Třída energetické náročnosti
G - Mimořádně nehospodárná
Doprava
MHD
Garáž

Kontaktovat makléře

Realitní kancelář

Logo MAXXUS REALITY

MAXXUS REALITY

Ječná 529/29, Praha, Nové Město

Chystáte se prodat nemovitost?
Pomůžeme Vám!

Máte zájem o tuto nemovistost?

Tímto, v souladu s nařízením Evropského parlamentu a Rady (EU) 2016/679, v platném znění, prohlašuji, že mi je alespoň 16 let a uděluji tak svůj souhlas se zpracováním zadaných údajů (jméno, telefon, e-mail, ip adresa) společnosti B3 Technology, s.r.o., IČ: 07330600, se sídlem Novostavby 126/23, 435 11 Lom (správce dat), za účelem předání dotazu z tohoto formuláře Vámi vybranému inzerentovi a zpětného kontaktování mé osoby. Osobní údaje bude správce zpracovávat manuálně i automaticky přímo prostřednictvím svých zaměstnanců. Informace předané tímto formulářem budou uloženy v databázi správce maximálně po dobu 10 let. Odvolání souhlasu s uložením a zpracováním poskytnutých dat lze e-mailem na info@videobydleni.cz. V případě podezření na neoprávněné použití Vámi poskytnutých údajů máte právo předat podnět k šetření Úřadu pro ochranu osobních údajů. Více informací
Chystáte se prodat nemovitost?
Pomůžeme Vám!

Inzerát si prohlédlo 2 lidí

Prodejce

Eva Musilová

Eva Musilová

Hlídací pes

Chcete dostávat emailem podobné nabídky pronájmu obchodních prostor v Praze 3?

Podobné nemovitosti


Nevyhovuje Vám typ nemovitosti? Podívejte se na jiné kategorie komerčních.


Vybrané články z našeho blogu