Prodej rodinného domu, Praha - Kbely, Troskovická, 120 m2 (ID: 4101780)

Troskovická, Praha 9 - Kbely

Prémioví partneři v Praze 9

Stěhovací služby

Výkup a prodej starého nábytku

Informace k domu

Prodej rodinného domu Troskovická, Praha 9 Kbely

Ve výhradním zastoupení majitelů exkluzivně nabízíme k prodeji hezký řadový rodinný dům v ulici Troskovická, Praha 9 Kbely.

Dům o základní dispozici 3+1 prošel kompletní rekonstrukcí v roce 2016.

Nemovitost se nachází v dobře dostupné lokalitě v klidném okraji hlavního města Prahy s kompletní občanskou vybaveností v okolí školy, školky, obchody, restaurace i zdravotní zařízení. Samozřejmostí je výborné dopravní spojení do centra Prahy, a to jak autem, tak městskou hromadnou dopravou nebo vlakem (cca 20 minut).
Je to ideální volba pro ty, kteří chtějí být blízko města, ale zároveň vyhledávají klidné prostředí s rychlým přístupem do přírody. V pěší dostupnosti najdete Kbelský lesopark s rybníky, cyklostezkami a hřišti, na dosah je také Letňanský lesopark a zámecký areál Ctěnice s krásným parkem.
Milovníci sportu ocení široké možnosti vyžití kromě běžných sportovišť a cyklostezek je v okolí také golfový areál Vinoř, které dodává lokalitě jedinečný charakter a nabízí příležitost pro relax i společenská setkání.

Zastavěná plocha domu je 116 m², celková plocha všech pozemků je 172 m².
Podlahová plocha domu je pak 168 m².

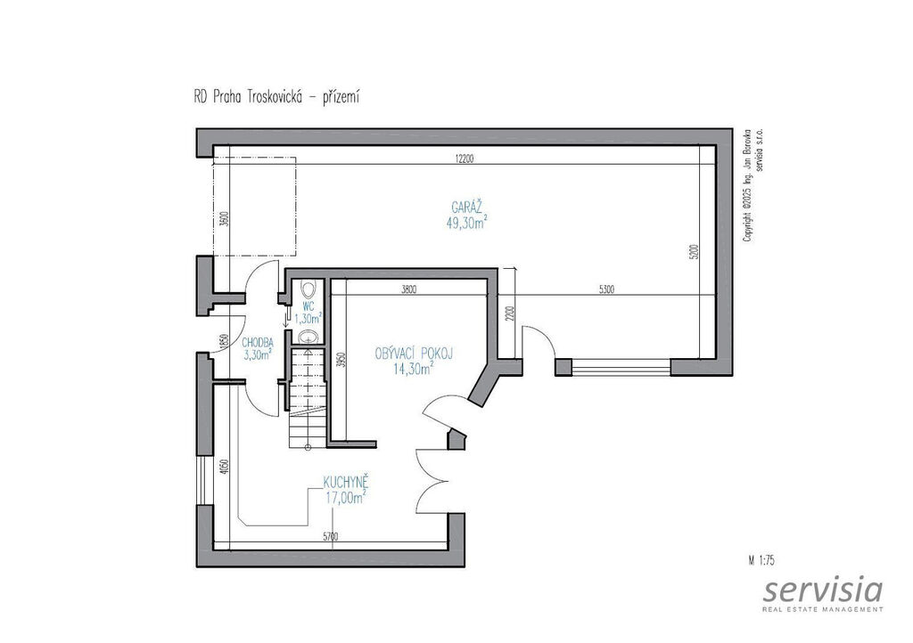
Při vstupu do domu je vpravo kuchyně spojená s obývacím pokojem, ze kterého je výstup na malou zahrádku o výměře cca 30 m², kde je možné nerušeně odpočívat.
Na chodbě je pak WC místnost, ve které je umístěna i sprcha. Dominantou přízemí domu je prostorná garáž o výměře 50 m², kde z části tohoto prostoru je možné vybudovat další obytnou místnost.
V horní části domu jsou umístěny 2 ložnice, šatna a prostorná koupelna o výměře 35 m², kde je umístěna vana i sprchový kout. Zároveň se zde nachází bojler a elektrokotel. Dům je vybaven centrálním vysavačem, který zajišťuje pohodlný a efektivní úklid.

Skladba jednotlivých místností je znázorněna na půdorysu.

Dům je napojen na obecní vodovod a kanalizaci. Vytápění zajišťuje ústřední topení s elektrokotlem, ale díky krbu s teplovodní vložkou je možné celý dům efektivně vytápět dřevem, což velmi pozitivně přispívá k úsporám na nákladech na provoz domu.
Krb je navržen jako oboustranný s možností přikládání z garáže, což umožňuje udržet v interiéru domu čistotu a pohodlí.

Parkování je zajištěno v garáži nebo na vlastním pozemku před domem, kde je možné pohodlně zaparkovat 2 auta.

Energetická třída G je uvedena dočasně, vzhledem k novele zákona č. 406/2000 Sb. o hospodaření s energií. Po dodání energetického štítku bude uvedena skutečná energetická třída této nemovitosti.

Prohlídku prodávané nemovitosti je možné domluvit na uvedeném telefonním čísle nebo e-mailu.

V případě více zájemců bude upřednostněn zájemce s nejvyšší nabídnutou kupní cenou.

Financování nemovitosti Vám rádi zajistíme.

Parametry domu

Cena
14 999 000 Kč Spočítat hypotéku
Aktualizováno
7. 11. 2025
Adresa
Troskovická, Praha 9 - Kbely
ID
85
Stavba
Cihlová
Stav objektu
Dobrý
Vybaveno
Ne
Druh objektu
Řadový
Vlastnictví
Osobní
Užitná plocha
120 m2
Zastavěná plocha
140 m2
Plocha pozemku
172 m2
Třída energetické náročnosti
G - Mimořádně nehospodárná

Kontaktovat makléře

Realitní kancelář

servisia s.r.o.

Nad hradním vodojemem 13/33, Praha 6

Chystáte se prodat nemovitost?
Pomůžeme Vám!

Máte zájem o tento dům?

Tímto, v souladu s nařízením Evropského parlamentu a Rady (EU) 2016/679, v platném znění, prohlašuji, že mi je alespoň 16 let a uděluji tak svůj souhlas se zpracováním zadaných údajů (jméno, telefon, e-mail, ip adresa) společnosti B3 Technology, s.r.o., IČ: 07330600, se sídlem Novostavby 126/23, 435 11 Lom (správce dat), za účelem předání dotazu z tohoto formuláře Vámi vybranému inzerentovi a zpětného kontaktování mé osoby. Osobní údaje bude správce zpracovávat manuálně i automaticky přímo prostřednictvím svých zaměstnanců. Informace předané tímto formulářem budou uloženy v databázi správce maximálně po dobu 10 let. Odvolání souhlasu s uložením a zpracováním poskytnutých dat lze e-mailem na info@videobydleni.cz. V případě podezření na neoprávněné použití Vámi poskytnutých údajů máte právo předat podnět k šetření Úřadu pro ochranu osobních údajů. Více informací
Chystáte se prodat nemovitost?
Pomůžeme Vám!

Inzerát si prohlédlo 1 lidí

Prodejce

Ing. Martin ŠVANDA

Ing. Martin ŠVANDA

Hlídací pes

Chcete dostávat emailem podobné nabídky prodeje rodinných domů v Praze 9?

Podobné nemovitosti


Nevyhovuje Vám typ domu? Podívejte se na jiné kategorie domů.


Vybrané články z našeho blogu