Prodej bytu 3+kk, Chlumec nad Cidlinou, Komenského, 92 m2 (ID: 4102625)

Komenského, Chlumec nad Cidlinou

8 549 000 Kč /za nemovitost HYPOTÉKA od 38 209 Kč /za měsíc

(Cena družstevního podílu 2 137 250 Kč. Po nastěhování se hradí měsíční splátka bytu ve výši 32 335 Kč po dobu 30 let. Celková cena bytu: 8 549 000 Kč)

Prémioví partneři v Chlumci nad Cidlinou

Informace k bytu

Nabízíme k prodeji byt v novostavbě v projektu Rezidence Chlumec.
Bytový dům se nachází v klidné části Chlumce nad Cidlinou ul. Komenského.
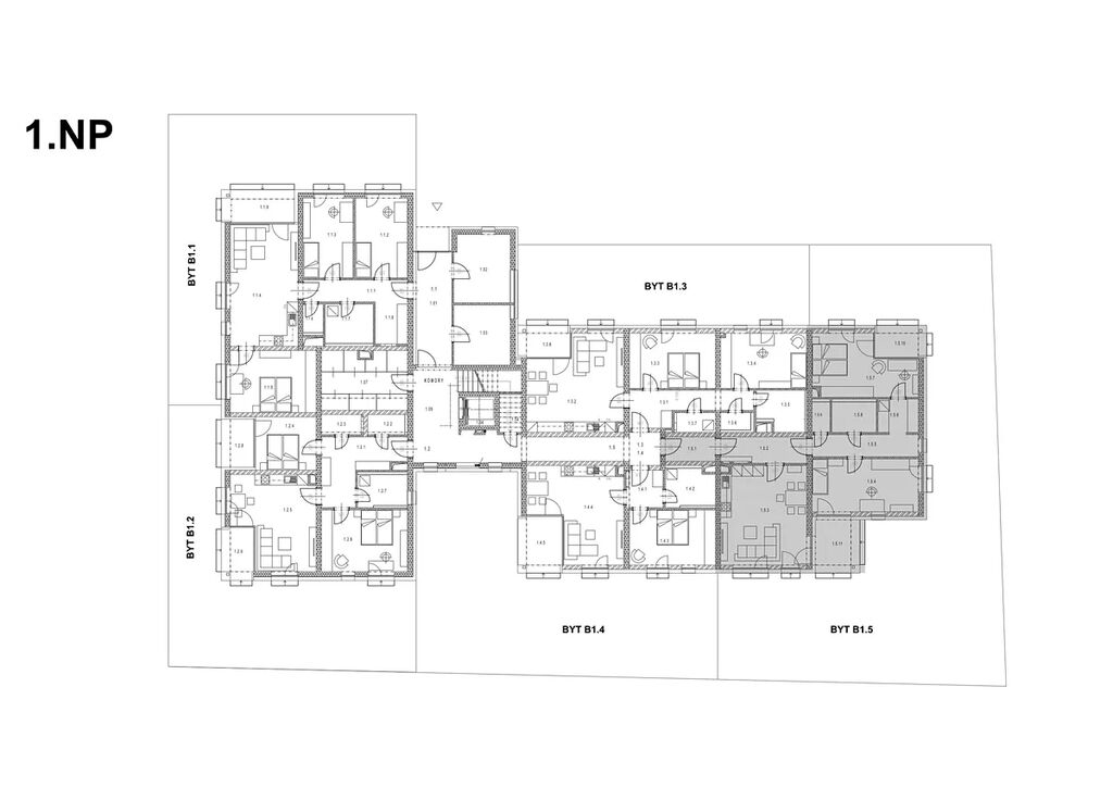
Nabízíme k prodeji byt č. 1.5 o velikosti 3+kk, 92,1 m2 + 2x lodžie o celkové velikosti 12,4 m2 a soukromou předzahrádkou o výměře 215,8 m2.
Jedná se o byt v prvním patře čtyř patrového bytového domu s výtahem.
Byt je vybaven vinylovou podlahou, dlažbou a obklady v koupelně a WC, obložkové interiérové dveře, bezpečnostní vstupní dveře, kompletní elektroinstalace, omítky.
Cena družstevního podílu 2 137 250 Kč.
Po nastěhování do bytu se hradí měsíční splátka bytu ve výši 32 335 Kč po dobu 30 let.
Celková cena bytu: 8 549 000 Kč.
Druhou možností je byt uhradit ve vyšší částce až do výše hodnoty bytu (v tomto případě 8 549 000 Kč) a po pěti letech je možné byt převést do osobního vlastnictví.
V případě složení výši částky než 25% hodnoty bytu se samozřejmě měsíční splátka sníží.
Možnost po 5 letech byt převést do osobního vlastnictví.
Předpokládaný termín stěhování leden 2026.
Tyto byty jsou i výborným investičním záměrem.
Vytápění a ohřev vody je v domě zajišťován tepelným čerpadle, což zajišťuje nízké provozní náklady.
V okolí veškerá občanská vybavenost, centrum města je v docházkové vzdálenosti, základní škola, mateřská škola, zámek, sportovní hřiště, vlakové a autobusové nádraží.
V případě zájmu, dotazů kontaktujte p. Marka Frka.

Parametry bytu

Cena
8 549 000 Kč /za nemovitost Spočítat hypotéku
Poznámka k ceně
Cena družstevního podílu 2 137 250 Kč. Po nastěhování se hradí měsíční splátka bytu ve výši 32 335 Kč po dobu 30 let. Celková cena bytu: 8 549 000 Kč
Aktualizováno
22. 12. 2025
Adresa
Komenského, Chlumec nad Cidlinou
ID
Chlumec 1.5
Stavba
Skeletová
Stav objektu
Novostavba
Patro
1. z 4
Vybaveno
Ne
Lokalita objektu
Klidná část obce
Vlastnictví
Družstevní
Užitná plocha
92 m2
Lodžie
Terasa
Výtah
Bezbarierový přístup
Převod do OV

Kontaktovat makléře

Realitní kancelář

Logo Stavební bytové družstvo SEVER

Stavební bytové družstvo SEVER

Bažantí 1415/3, Liberec I-Staré Město

Chystáte se prodat nemovitost?
Pomůžeme Vám!

Máte zájem o tento byt?

Tímto, v souladu s nařízením Evropského parlamentu a Rady (EU) 2016/679, v platném znění, prohlašuji, že mi je alespoň 16 let a uděluji tak svůj souhlas se zpracováním zadaných údajů (jméno, telefon, e-mail, ip adresa) společnosti B3 Technology, s.r.o., IČ: 07330600, se sídlem Novostavby 126/23, 435 11 Lom (správce dat), za účelem předání dotazu z tohoto formuláře Vámi vybranému inzerentovi a zpětného kontaktování mé osoby. Osobní údaje bude správce zpracovávat manuálně i automaticky přímo prostřednictvím svých zaměstnanců. Informace předané tímto formulářem budou uloženy v databázi správce maximálně po dobu 10 let. Odvolání souhlasu s uložením a zpracováním poskytnutých dat lze e-mailem na info@videobydleni.cz. V případě podezření na neoprávněné použití Vámi poskytnutých údajů máte právo předat podnět k šetření Úřadu pro ochranu osobních údajů. Více informací
Chystáte se prodat nemovitost?
Pomůžeme Vám!

Inzerát si prohlédlo 8 lidí

Prodejce

Marek Frk

Marek Frk

Hlídací pes

Chcete dostávat emailem podobné nabídky prodeje bytů 3+kk v Chlumci nad Cidlinou?

Podobné nemovitosti


Nevyhovuje Vám typ bytu? Podívejte se na jiné kategorie bytů.


Vybrané články z našeho blogu