Prodej bytu 2+kk, Mladé Buky, 44 m2

Mladé Buky

4 390 000 Kč /za nemovitost HYPOTÉKA od 19 621 Kč /za měsíc

(včetně poplatků, včetně provize, včetně právního servisu)

Prémioví partneři v Mladých Bukách

Informace k bytu

Nabízím vám k prodeji kompletně zrekonstruovaný apartmán 2+kk v malebné horské obci Mladé Buky. Nemovitost se nachází v klidné části obce s výbornou dostupností do Trutnova i do Pece pod Sněžkou. V bezprostřední blízkosti cca 200 metrů najdete ski areál, golfové hřiště, bobovou dráhu nebo třeba dětský park Hříčky Buky, dříve Baldův Svět. Vzhledem k typu nemovitosti i ke svému umístění je ideální jak pro vlastní bydlení, tak jako investiční nemovitost pro krátkodobé pronájmy s předpokládaným výnosem až 0,5 mil. ročně.

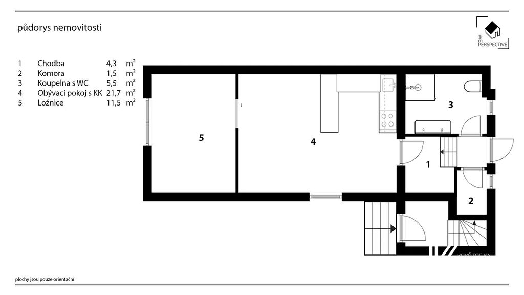
Apartmán o výměře 44,5 m2 se nachází v domě se dvěma jednotkami a je zcela samostatný, má vlastní přímý vchod ze zadní části budovy. Náleží k němu navíc dvě parkovací stání na zadním dvoře a úložná kóje, vhodná jako lyžárna či kolárna.

Dispozičně se jedná o 2+kk umístěné v 1. NP domu. Za vstupem se nachází technická místnost a koupelna. Hlavní obytný prostor je situovaný o pár schodů výše, kde se nachází kuchyňský kout spojený s jídelní a obývací částí. Zadní část místnosti je opět oddělena designovými posuvnými dveřmi a poslouží tak jako útulná ložnice.

Vytápění a ohřev vody je zajišťované vlastním elektrickým kotlem. V apartmánu je topení rozvedeno podlahově, v koupelně je navíc topný žebřík. Vodu i odpadní hospodářství zajišťují veřejné sítě. Jedná se o původní cihlovou budovu, která prošla kompletní náročnou rekonstrukcí. Dům je navíc připraven na moderní způsob správy a zabezpečení – majitel při rekonstrukci myslel na budoucí pohodlí. Všechny rozvody a technické přípravy jsou hotové pro instalaci kamerového systému, alarmu, chytré domácnosti i bezkontaktního vydávání klíčů přes kódový zámek. Tato infrastruktura umožňuje pohodlné a bezpečné ovládání domu na dálku, což ocení nejen majitelé využívající nemovitost jako víkendové bydlení, ale především investoři plánující krátkodobé pronájmy. Díky těmto řešením je provoz domu snadný, přehledný a bez nutnosti neustálé osobní přítomnosti.

Tato nemovitost v Mladých Bukách nabízí promyšlené dispoziční řešení, kvalitní rekonstrukci, soukromí, investiční potenciál a výjimečnou polohu v těsné blízkosti přírody, sportovního i rodinného vyžití. Ať už sníte o vlastním bydlení v podhůří Krkonoš, hledáte víkendový únik z města nebo plánujete výnosnou investici, právě jste ji našli.

Přijeďte se sami přesvědčit, co všechno může tento apartmán nabídnout – rád vás nemovitostí osobně provedu.

Parametry bytu

Cena
4 390 000 Kč /za nemovitost Spočítat hypotéku
Poznámka k ceně
včetně poplatků, včetně provize, včetně právního servisu
Aktualizováno
7. 11. 2025
Adresa
Mladé Buky
ID
00232-1
Stavba
Cihlová
Stav objektu
Velmi dobrý
Patro
1. z 3
Vybaveno
Ne
Lokalita objektu
Klidná část obce
Vlastnictví
Osobní
Užitná plocha
44 m2
Třída energetické náročnosti
F - Velmi nehospodárná
Ukazatel energetické náročnosti
211 kWh/m2 za rok
Elektřina
230V
Odpad
Veřejná kanalizace
Telekomunikace
Internet
Doprava
Dálnice, Silnice, Autobus
Voda
Vodovod
Topné těleso
Podlahové vytápění
Zdroj topení
Elektrokotel
Zdroj teplé vody
Elektrokotel
Sklep
Výtah
Parkování

Kontaktovat makléře

Realitní kancelář

FIRST HOLD INVEST s.r.o.

Za Pasáží 1429, Pardubice, Zelené Předměstí

Chystáte se prodat nemovitost?
Pomůžeme Vám!

Máte zájem o tento byt?

Tímto, v souladu s nařízením Evropského parlamentu a Rady (EU) 2016/679, v platném znění, prohlašuji, že mi je alespoň 16 let a uděluji tak svůj souhlas se zpracováním zadaných údajů (jméno, telefon, e-mail, ip adresa) společnosti B3 Technology, s.r.o., IČ: 07330600, se sídlem Novostavby 126/23, 435 11 Lom (správce dat), za účelem předání dotazu z tohoto formuláře Vámi vybranému inzerentovi a zpětného kontaktování mé osoby. Osobní údaje bude správce zpracovávat manuálně i automaticky přímo prostřednictvím svých zaměstnanců. Informace předané tímto formulářem budou uloženy v databázi správce maximálně po dobu 10 let. Odvolání souhlasu s uložením a zpracováním poskytnutých dat lze e-mailem na info@videobydleni.cz. V případě podezření na neoprávněné použití Vámi poskytnutých údajů máte právo předat podnět k šetření Úřadu pro ochranu osobních údajů. Více informací
Chystáte se prodat nemovitost?
Pomůžeme Vám!

Inzerát si prohlédlo 1 lidí

Prodejce

Kryštof Kalhous

Kryštof Kalhous

Hlídací pes

Chcete dostávat emailem podobné nabídky prodeje bytů 2+kk v Mladých Bukách?

Podobné nemovitosti


Nevyhovuje Vám typ bytu? Podívejte se na jiné kategorie bytů.


Vybrané články z našeho blogu