Pronájem bytu 2+1, Liběchov, nám. V. Levého, 53 m2 (ID: 4103730)

nám. V. Levého, Liběchov

12 500 Kč /za měsíc Získejte výhodnou HYPOTÉKU
Prémioví partneři v Liběchově

Informace k bytu

*** Postup pro získání nájmu: ***
1) Vyplňte formulář u nabídky. Prosím nevolejte, ve většině případů nejsme schopni přímo domluvit termín prohlídky.
2) Jakmile si Vaší poptávku z formuláře přečteme, zašleme Vám dotazník pro zájemce o pronájem, který je třeba vyplnit.
3) Po vyplnění bude formulář předložen majiteli a následně Vás budeme kontaktovat s dalšími informacemi a možnými termíny prohlídek.

Preferováni budou zájemci o dlouhodobý pronájem s prokazatelnou bezdlužností.

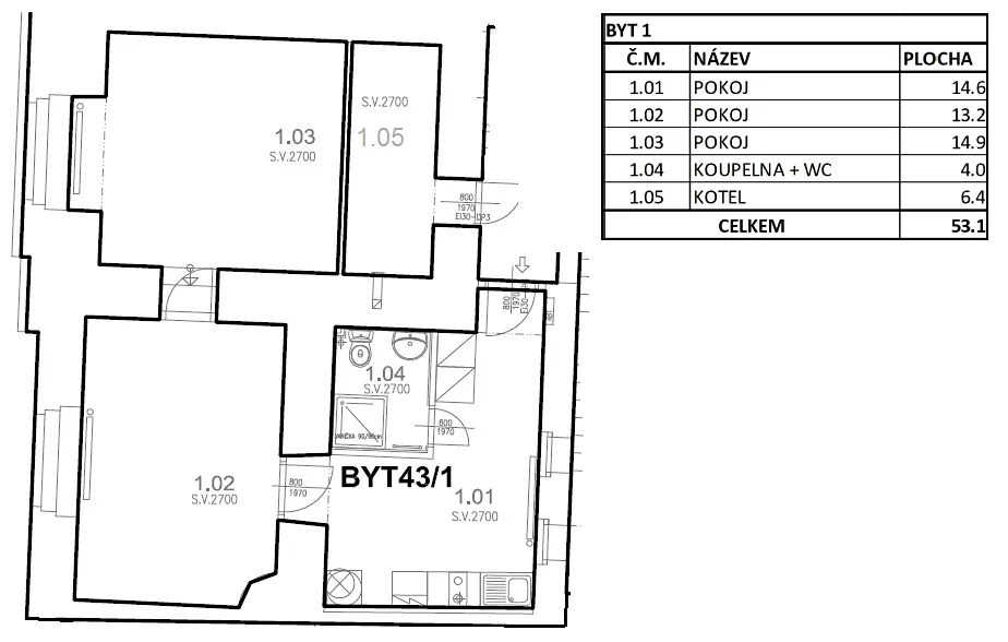
Byt má 2 pokoje, kuchyň, předsíň, koupelnu se sprchovým koutem a WC. Byt se nachází ve 2. NP a jeho celková plocha činí 53,1 m².

Byt se nachází v ideální dojezdové vzdálenosti mezi městy Mělník a Štětí, přímo u zastávky autobusu. Jednoduché parkování v okolí domu. Byt je součástí budovy Besedy Liběchov, v těsné blízkosti liběchovského zámku.

Měsíční nájemné činí 12.500,-Kč, poplatky 5.000,-Kč (poplatky obsahují náklady na vytápění, elektřinu a vodné a stočné).
Kauce činí 2 měsíční nájmy, tj. 25.000,- Kč.
Zájemce nehradí provizi RK.

V případě zájmu o prohlídku, prosím vyplňte kontaktní formulář.

Parametry bytu

Cena
12 500 Kč /za měsíc
Náklady na bydlení
5000
Aktualizováno
8. 11. 2025
Adresa
nám. V. Levého, Liběchov
Stavba
Cihlová
Stav objektu
Dobrý
Patro
2.
Vlastnictví
Osobní
Užitná plocha
53 m2

Kontaktovat makléře

Realitní kancelář

CEE Real Estate a.s.

Vojtěšská 211/6, Praha, Nové Město

Chystáte se prodat nemovitost?
Pomůžeme Vám!

Máte zájem o tento byt?

Tímto, v souladu s nařízením Evropského parlamentu a Rady (EU) 2016/679, v platném znění, prohlašuji, že mi je alespoň 16 let a uděluji tak svůj souhlas se zpracováním zadaných údajů (jméno, telefon, e-mail, ip adresa) společnosti B3 Technology, s.r.o., IČ: 07330600, se sídlem Novostavby 126/23, 435 11 Lom (správce dat), za účelem předání dotazu z tohoto formuláře Vámi vybranému inzerentovi a zpětného kontaktování mé osoby. Osobní údaje bude správce zpracovávat manuálně i automaticky přímo prostřednictvím svých zaměstnanců. Informace předané tímto formulářem budou uloženy v databázi správce maximálně po dobu 10 let. Odvolání souhlasu s uložením a zpracováním poskytnutých dat lze e-mailem na info@videobydleni.cz. V případě podezření na neoprávněné použití Vámi poskytnutých údajů máte právo předat podnět k šetření Úřadu pro ochranu osobních údajů. Více informací
Chystáte se prodat nemovitost?
Pomůžeme Vám!

Inzerát si prohlédlo 1 lidí

Prodejce

Martin Cimala

Martin Cimala

Hlídací pes

Chcete dostávat emailem podobné nabídky pronájmu bytů 2+1 v Liběchově?

Podobné nemovitosti


Nevyhovuje Vám typ bytu? Podívejte se na jiné kategorie bytů.


Vybrané články z našeho blogu