Prodej rodinného domu, Mladá Boleslav, 132 m2 (ID: 4104388)

Mladá Boleslav, Chrást

11 500 000 Kč /za nemovitost HYPOTÉKA od 51 398 Kč /za měsíc
Prémioví partneři v Mladé Boleslavi

Informace k domu

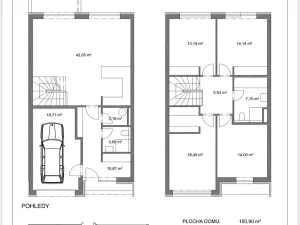
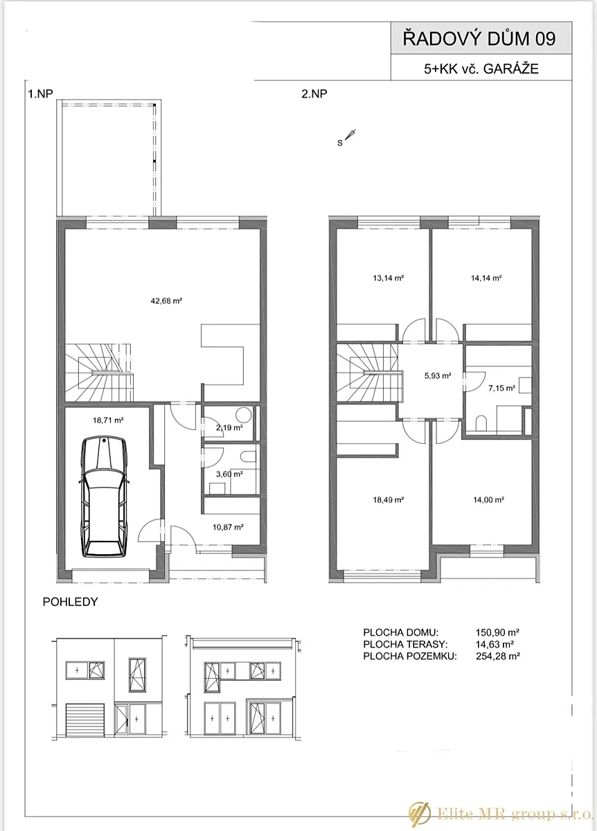
Prodej novostavby rodinného domu 5+kk s užitnou plochou 132 m², terasou 15 m² a garáží 19 m² na pozemku o výměře 254 m². Stav odpovídá fotografiím a půdorys s přesnými rozměry je k dispozici u posledního obrázku.

Dům se nachází na klidném místě se skvělou dostupností do města i na dálnici. Dispozice 5+kk nabízí komfortní zázemí pro rodinu, důraz na praktičnost a úložné prostory. Obývací pokoj s kuchyňským koutem navazuje na terasu do zahrady, v obývacím pokoji jsou instalována krbová kamna, která v zimě zajistí příjemnou atmosféru a doplní velmi nízké provozní náklady domu. Ložnice a dětské pokoje poskytují dostatek soukromí, samozřejmostí jsou dvě koupelny a technické zázemí.

Garáž o ploše 19 m² pohodlně pojme vůz i vybavení, před domem jsou navíc další dvě parkovací místa. Terasa orientovaná do zahrady nabízí příjemné posezení a prostor pro rodinný odpočinek. Dům je připraven k nastěhování bez nutnosti větších úprav.

S financování Vám rádi pomůžeme.

Parametry domu

Cena
11 500 000 Kč /za nemovitost Spočítat hypotéku
Aktualizováno
9. 11. 2025
Adresa
Mladá Boleslav, Chrást
ID
0083
Stavba
Smíšená
Stav objektu
Velmi dobrý
Druh objektu
Řadový
Užitná plocha
132 m2
Zastavěná plocha
95 m2
Podlahová plocha
153 m2
Plocha pozemku
254 m2
Třída energetické náročnosti
A - Mimořádně úsporná
Odpad
Veřejná kanalizace
Topné těleso
Krbová kamna
Zdroj teplé vody
Elektrokotel

Kontaktovat makléře

Realitní kancelář

RE/MAX Elite group

U Kasáren 1377, Mladá Boleslav

Chystáte se prodat nemovitost?
Pomůžeme Vám!

Máte zájem o tento dům?

Tímto, v souladu s nařízením Evropského parlamentu a Rady (EU) 2016/679, v platném znění, prohlašuji, že mi je alespoň 16 let a uděluji tak svůj souhlas se zpracováním zadaných údajů (jméno, telefon, e-mail, ip adresa) společnosti B3 Technology, s.r.o., IČ: 07330600, se sídlem Novostavby 126/23, 435 11 Lom (správce dat), za účelem předání dotazu z tohoto formuláře Vámi vybranému inzerentovi a zpětného kontaktování mé osoby. Osobní údaje bude správce zpracovávat manuálně i automaticky přímo prostřednictvím svých zaměstnanců. Informace předané tímto formulářem budou uloženy v databázi správce maximálně po dobu 10 let. Odvolání souhlasu s uložením a zpracováním poskytnutých dat lze e-mailem na info@videobydleni.cz. V případě podezření na neoprávněné použití Vámi poskytnutých údajů máte právo předat podnět k šetření Úřadu pro ochranu osobních údajů. Více informací
Chystáte se prodat nemovitost?
Pomůžeme Vám!

Inzerát si prohlédlo 1 lidí

Prodejce

Michal Kubelka

Michal Kubelka

Hlídací pes

Chcete dostávat emailem podobné nabídky prodeje rodinných domů v Mladé Boleslavi?

Podobné nemovitosti


Nevyhovuje Vám typ domu? Podívejte se na jiné kategorie domů.


Vybrané články z našeho blogu