Pronájem bytu 2+1, Rakovník, Na Sekyře, 67 m2

Na Sekyře, Rakovník

14 000 Kč /za měsíc Získejte výhodnou HYPOTÉKU
Prémioví partneři v Rakovníku

Informace k bytu

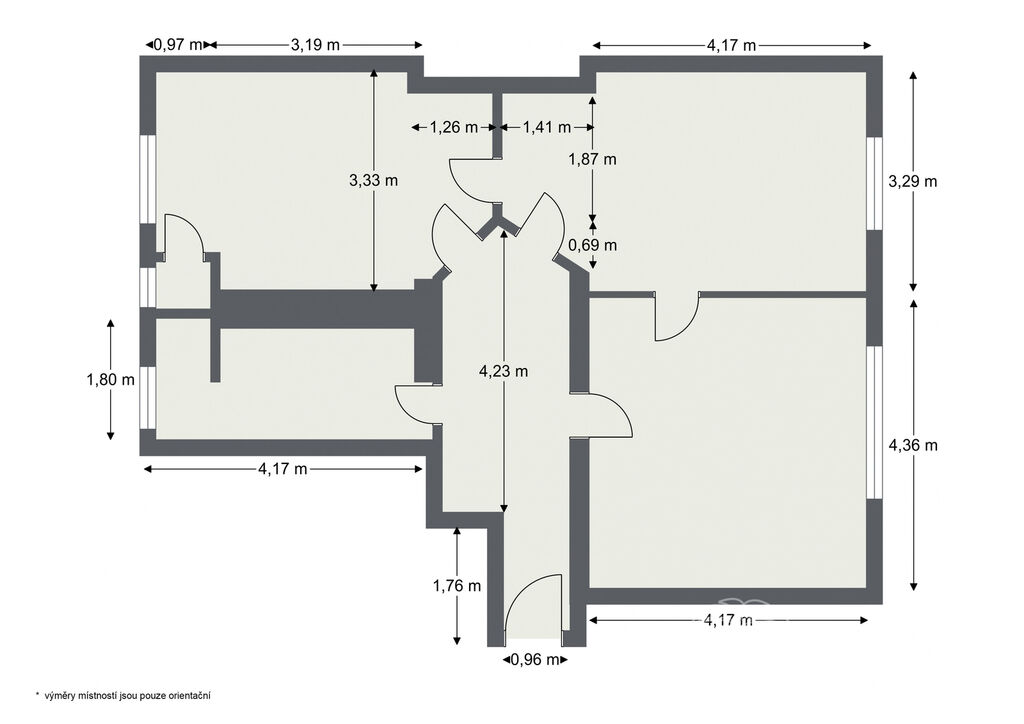
Doslova pár kroků od rakovnického náměstí nabízím k pronájmu velký byt 2+1. Podle evidenčního listu má byt užitnou plochu 67 m2.
Byt se nachází ve 3. patře zděného domu, bez výtahu.
Byt prošel zásadní rekonstrukcí. Nové jsou vchodové dveře, všechny rozvody (elektřina, plyn, voda, odpady), koupelna se sprchovým koutem, vlastní plynový kotel. Podlahové krytiny jsou buď nové, nebo (v případě parket v pokojích) zrenovované. Součástí vybavení bytu je nová kuchyňská linka s plynovým sporákem a elektrickou troubou, v chodbě pak vestavěná skříň. Jakým způsobem si byt zařídíte, je zcela na Vašem uvážení a možnostech.

Přestože má kuchyně okno směrované do rušné křižovatky, díky novým plastovým oknům máte v bytě zajištěné ticho a klid. Okna z obou klidových pokojů jsou otočena do zelené zóny směrem k potoku.

Byt má vlastní vodoměr, elektroměr i plynoměr, výši spotřeby si tedy určujete sami. Poplatky za energie si majitelé ponechají přepsané na sebe, platit budete zálohové platby a vyúčtování proběhne jednou ročně. K bytu patří také prostorná sklepní komora vhodná na uložení kola nebo lyží. Do bytu je zavedený kabelový internet. Jeho provoz si hradíte na vlastní náklady.

Majitelé preferují klidné nájemníky – jednoznačně nekuřáky. Zvířecí mazlíčci zde nejsou vítáni. Dům je velice klidný, proto pro majitele hledám nájemníky, kteří budou schopni dodržovat zásady klidného sousedského soužití. Stejně tak majitelé očekávají ohleduplnost vůči pronajímanému zařízení bytu.

Měsíční nájemné je ve výši 14 000 Kč + poplatky ve výši 850 Kč + zálohy za elektřinu a plyn. Poplatky mohou být zvýšeny podle skutečného počtu osob, které v bytě budou žít. Vzhledem k tomu, že byt nebyl v posledních letech obývaný, jsou zde zatím nastavené pouze minimální zálohy za energie. Nově zde bude nastavena záloha ve výši 1000 Kč (elektřina) a 2000 Kč (plyn). Byt je připravený k okamžitému nastěhování.

Počáteční platba se skládá z vratné kauce 25 000 Kč + nájemné 14 000 Kč + poplatky a zálohy na elektřinu a plyn ve výši 3 850 Kč + provize zprostředkovatele 14 000 Kč, celkem 56 850 Kč. Pro jakékoli další dotazy mě neváhejte kontaktovat.

Parametry bytu

Cena
14 000 Kč /za měsíc
Aktualizováno
11. 11. 2025
Adresa
Na Sekyře, Rakovník
ID
17923
Stavba
Cihlová
Stav objektu
Dobrý
Patro
4. z 4
Vybaveno
Ne
Lokalita objektu
Centrum obce
Vlastnictví
Osobní
Užitná plocha
67 m2
Podlahová plocha
79 m2
Třída energetické náročnosti
G - Mimořádně nehospodárná
Elektřina
230V
Plyn
Individuální
Odpad
Veřejná kanalizace
Komunikace
Asfaltová
Telekomunikace
Internet
Doprava
Vlak, Silnice, MHD, Autobus
Voda
Vodovod
Sklep

Kontaktovat makléře

Máte zájem o tento byt?

Tímto, v souladu s nařízením Evropského parlamentu a Rady (EU) 2016/679, v platném znění, prohlašuji, že mi je alespoň 16 let a uděluji tak svůj souhlas se zpracováním zadaných údajů (jméno, telefon, e-mail, ip adresa) společnosti B3 Technology, s.r.o., IČ: 07330600, se sídlem Novostavby 126/23, 435 11 Lom (správce dat), za účelem předání dotazu z tohoto formuláře Vámi vybranému inzerentovi a zpětného kontaktování mé osoby. Osobní údaje bude správce zpracovávat manuálně i automaticky přímo prostřednictvím svých zaměstnanců. Informace předané tímto formulářem budou uloženy v databázi správce maximálně po dobu 10 let. Odvolání souhlasu s uložením a zpracováním poskytnutých dat lze e-mailem na info@videobydleni.cz. V případě podezření na neoprávněné použití Vámi poskytnutých údajů máte právo předat podnět k šetření Úřadu pro ochranu osobních údajů. Více informací
Chystáte se prodat nemovitost?
Pomůžeme Vám!

Inzerát si prohlédlo 4 lidí

Prodejce

Mgr. Romana Trešlová

Mgr. Romana Trešlová

Hlídací pes

Chcete dostávat emailem podobné nabídky pronájmu bytů 2+1 v Rakovníku?

Podobné nemovitosti


Nevyhovuje Vám typ bytu? Podívejte se na jiné kategorie bytů.


Vybrané články z našeho blogu