Prodej rodinného domu, Kralupy nad Vltavou, 181 m2 (ID: 4106146)

Kralupy nad Vltavou, Minice

13 338 000 Kč /za nemovitost HYPOTÉKA od 59 613 Kč /za měsíc

(včetně DPH)

Prémioví partneři v Kralupech nad Vltavou

Informace k domu

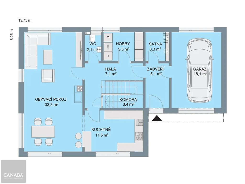
Prodám nízkoenergetický rodinný dům o velikosti 6+1+garáž s podlahovou plochou 181 m².

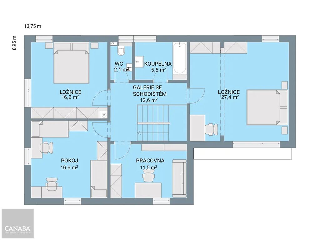
Jeho hlavní předností je půdorysné řešení do tvaru L s integrovanou garáží. Dům zaujme čistými liniemi a rovnou střechou, které podtrhují jeho současný vzhled a nadčasový charakter. Výrazným prvkem je studio nad garáží, které může sloužit jako ateliér, pracovna nebo samostatná bytová jednotka.

V 1.NP se nachází zádveří, ze kterého vstupujete do garáže, šatny a haly. Z haly pak do hobby místnosti, samostatné toalety, prostorného obývacího pokoje s jídelnou a do kuchyně. Po schodišti se dále dostanete do 2.NP na galerii se vstupem do prosvětlené ložnice, dvou pokojů, pracovny, koupelny a na samostatnou toaletu.

Za uvedenou cenu bude dům kompletně stavebně dokončen včetně vytápění, obkladů, sanitárního vybavení, podlahových krytin a vnitřních dveří.

K patě pozemku jsou přivedeny tyto inženýrské sítě: rozvody NN, kanalizace bez napojení (nyní dočasně jímka nebo ČOV), veřejný vodovod, plyn, Cetin.

Uvedená cena je včetně pozemku, typové základové desky a DPH. Doba výstavby 4 - 5 měsíců.

Minice se rozkládají asi dva kilometry jižně od středu Kralup. Vede tudy železniční trať Kralupy nad Vltavou – Kladno. Dominantou je kostel sv. Jakuba a v okolí najdete i zajímavosti jako přírodní památku Minická skála. Veškerou občanskou vybavenost najdete v Kralupech nad Vltavou.

Parametry domu

Cena
13 338 000 Kč /za nemovitost Spočítat hypotéku
Poznámka k ceně
včetně DPH
Aktualizováno
11. 11. 2025
Adresa
Kralupy nad Vltavou, Minice
ID
01498
Stavba
Cihlová
Stav objektu
Projekt
Druh objektu
Samostatný
Užitná plocha
181 m2
Plocha pozemku
1044 m2
Třída energetické náročnosti
B - Velmi úsporná
Ukazatel energetické náročnosti
117 kWh/m2 za rok

Kontaktovat makléře

Realitní kancelář

CANABA a.s.

Štětkova 1001/5, Praha, Nusle

Chystáte se prodat nemovitost?
Pomůžeme Vám!

Máte zájem o tento dům?

Tímto, v souladu s nařízením Evropského parlamentu a Rady (EU) 2016/679, v platném znění, prohlašuji, že mi je alespoň 16 let a uděluji tak svůj souhlas se zpracováním zadaných údajů (jméno, telefon, e-mail, ip adresa) společnosti B3 Technology, s.r.o., IČ: 07330600, se sídlem Novostavby 126/23, 435 11 Lom (správce dat), za účelem předání dotazu z tohoto formuláře Vámi vybranému inzerentovi a zpětného kontaktování mé osoby. Osobní údaje bude správce zpracovávat manuálně i automaticky přímo prostřednictvím svých zaměstnanců. Informace předané tímto formulářem budou uloženy v databázi správce maximálně po dobu 10 let. Odvolání souhlasu s uložením a zpracováním poskytnutých dat lze e-mailem na info@videobydleni.cz. V případě podezření na neoprávněné použití Vámi poskytnutých údajů máte právo předat podnět k šetření Úřadu pro ochranu osobních údajů. Více informací
Chystáte se prodat nemovitost?
Pomůžeme Vám!

Inzerát si prohlédlo 1 lidí

Prodejce

Mgr. Karel Křížek

Mgr. Karel Křížek

Hlídací pes

Chcete dostávat emailem podobné nabídky prodeje rodinných domů v Kralupech nad Vltavou?

Podobné nemovitosti


Nevyhovuje Vám typ domu? Podívejte se na jiné kategorie domů.


Vybrané články z našeho blogu