Prodej ubytování, Benešov nad Černou, 295 m2 (ID: 4106802)

Benešov nad Černou

Cena na vyžádání /za nemovitost Získejte výhodnou HYPOTÉKU

(cena u makléře)

Prémioví partneři v Benešově nad Černou

Informace k nemovitosti

Výjimečná investiční příležitost – luxusní usedlost v srdci Novohradských hor

Nabízíme unikátní usedlost přímo na břehu říčky Černé v Benešově nad Černou – nemovitost spojující kouzlo přírody s výbornou ekonomickou návratností. Objekt o užitné ploše téměř 300 m² se nachází na udržovaném pozemku o rozloze 3 066 m², jehož hranici tvoří samotná říčka. Lokalita v srdci Novohradských hor patří mezi vyhledávané destinace pro rekreaci i celoroční pobyt, což zajišťuje stabilní poptávku po ubytování a tedy dlouhodobě atraktivní investiční výnos.

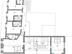
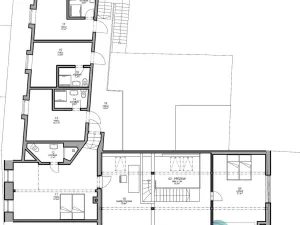
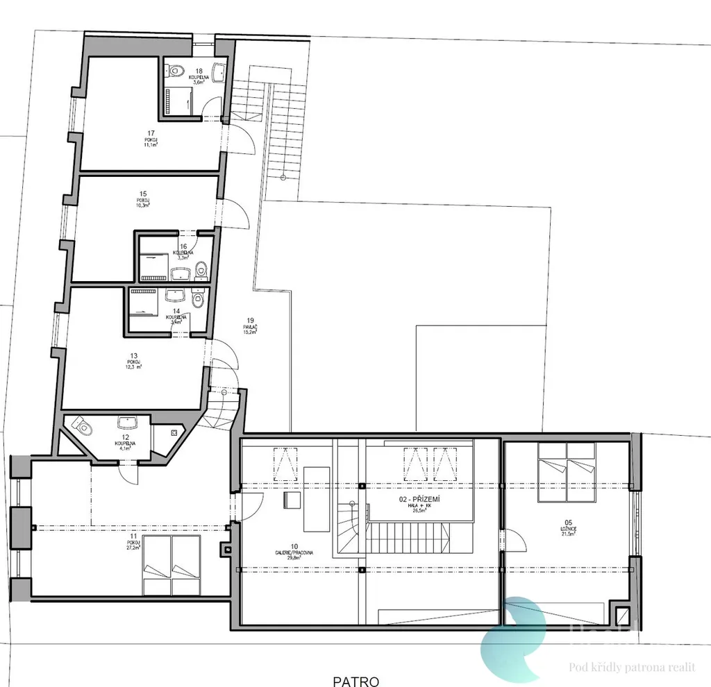
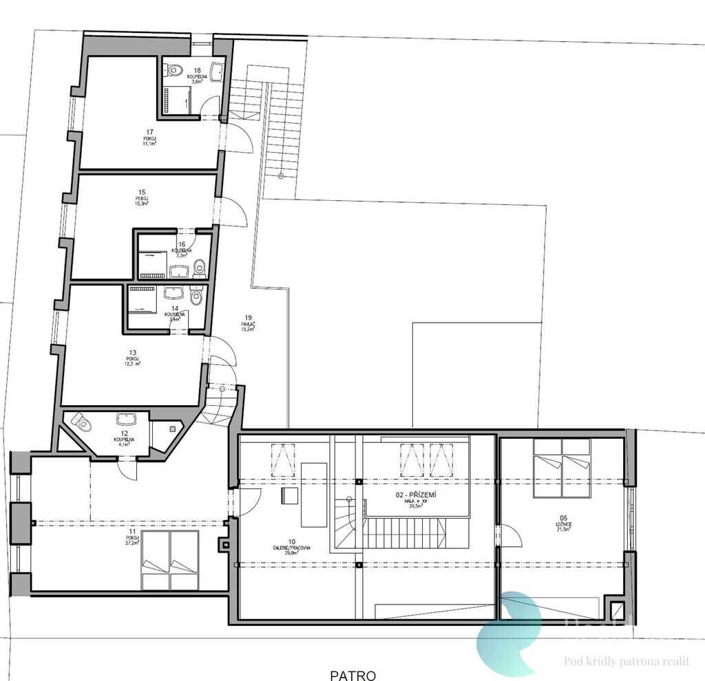
Součástí usedlosti je stylový penzion se zaběhlou klientelou a výbornými recenzemi, provozovaný pod názvem Ubytování u říčky. Nabízí 7 lůžek ve 3 pokojích, každý s vlastním sociálním zázemím, společenskou místnost s krbem, kuchyňku a venkovní posezení s grilem. Penzion má vlastní vstup i parkovací místa, a může fungovat nezávisle nebo být plně propojen s obytnou částí.

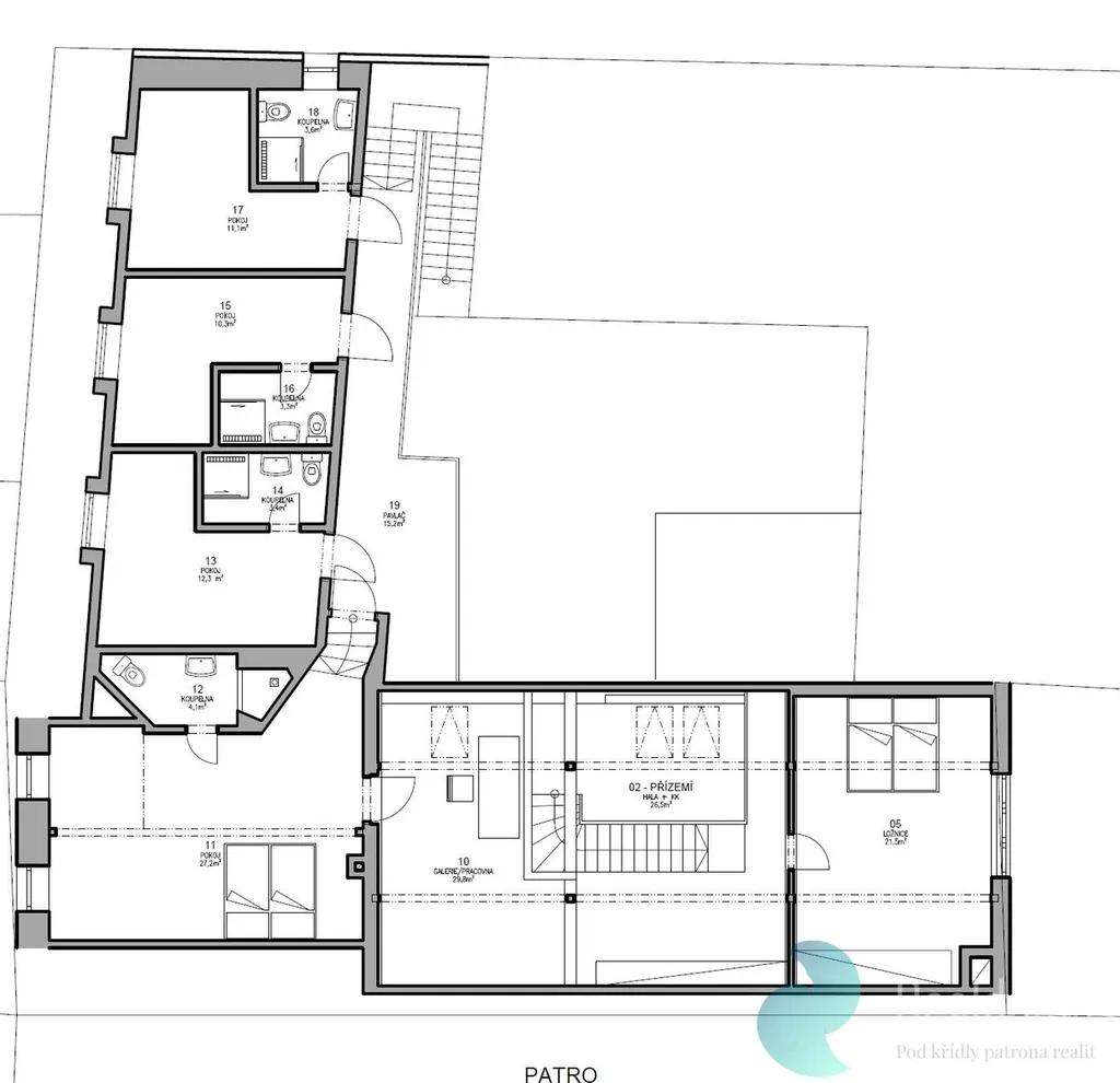
Rezidenční část usedlosti o ploše 197 m² poskytuje vysoký komfort pro rodinné bydlení, dlouhodobý či krátkodobý pronájem. Dispozice je řešena do dvou podlaží – v přízemí se nachází velkorysý obývací prostor s krbovými kamny, kuchyně s jídelnou a přímým vstupem na terasu, v patře pak galerie s pracovnou, dvě prostorné ložnice a koupelna. Každý detail domu ukazuje vysoký standard provedení i kvalitu materiálů.

Celý objekt prošel kompletní rekonstrukcí v letech 2004–2019, která zajistila nejen komfortní bydlení, ale také nízké provozní náklady a dlouhou životnost. Dům je napojen na obecní inženýrské sítě, vytápění je řešeno kotlem na tuhá paliva (s podavačem a zásobníkem) s regulací teploty a doplňkovými krby.

Na rozlehlé zahradě se nachází vyhřívaný bazén, pergola s venkovní kuchyní a grilem, a několik romantických zákoutí přímo u vody. To vše vytváří ideální podmínky pro rekreaci, ale i pro další rozvoj podnikatelského záměru v oblasti turismu či ubytování vyššího standardu.

Přestože usedlost leží přímo u říčky, nemovitost není ohrožena záplavami ani povodněmi – díky důkladně provedeným protipovodňovým úpravám a citlivému terénnímu řešení je objekt zcela bezpečný a bez problémů pojistitelný i proti těmto rizikům.

Tato nemovitost představuje mimořádnou kombinaci luxusního bydlení, stabilního výnosu a jedinečné lokality s potenciálem růstu hodnoty v čase. Těším se na Vás na prohlídce!

Údaje jsou pouze informativní. Při více zájemcích bude prodej dle nejlepší nabídky. Majitel si vyhrazuje volbu kupujícího.

Parametry nemovitosti

Cena
Cena na vyžádání Spočítat hypotéku
Poznámka k ceně
cena u makléře
Aktualizováno
12. 11. 2025
Adresa
Benešov nad Černou
ID
2493
Stavba
Smíšená
Stav objektu
Po rekonstrukci
Vybaveno
Částečně
Typ objektu
Patrový
Užitná plocha
295 m2
Zastavěná plocha
429 m2
Plocha pozemku
3066 m2
Třída energetické náročnosti
G - Mimořádně nehospodárná
Odpad
Veřejná kanalizace
Topení
Lokální tuhá paliva, Ústřední tuhá paliva, Podlahové
Komunikace
Asfaltová
Telekomunikace
Internet
Doprava
Silnice, Autobus
Voda
Vodovod
Převod do OV

Kontaktovat makléře

Realitní kancelář

Logo REALDOMUS s.r.o.

REALDOMUS s.r.o.

Radniční 133/1, České Budějovice

Chystáte se prodat nemovitost?
Pomůžeme Vám!

Máte zájem o tuto nemovistost?

Tímto, v souladu s nařízením Evropského parlamentu a Rady (EU) 2016/679, v platném znění, prohlašuji, že mi je alespoň 16 let a uděluji tak svůj souhlas se zpracováním zadaných údajů (jméno, telefon, e-mail, ip adresa) společnosti B3 Technology, s.r.o., IČ: 07330600, se sídlem Novostavby 126/23, 435 11 Lom (správce dat), za účelem předání dotazu z tohoto formuláře Vámi vybranému inzerentovi a zpětného kontaktování mé osoby. Osobní údaje bude správce zpracovávat manuálně i automaticky přímo prostřednictvím svých zaměstnanců. Informace předané tímto formulářem budou uloženy v databázi správce maximálně po dobu 10 let. Odvolání souhlasu s uložením a zpracováním poskytnutých dat lze e-mailem na info@videobydleni.cz. V případě podezření na neoprávněné použití Vámi poskytnutých údajů máte právo předat podnět k šetření Úřadu pro ochranu osobních údajů. Více informací
Chystáte se prodat nemovitost?
Pomůžeme Vám!

Inzerát si prohlédlo 1 lidí

Prodejce

Mgr. Lenka Muselová

Mgr. Lenka Muselová

Hlídací pes

Chcete dostávat emailem podobné nabídky prodeje ubytování v Benešově nad Černou?

Podobné nemovitosti


Nevyhovuje Vám typ nemovitosti? Podívejte se na jiné kategorie komerčních.


Vybrané články z našeho blogu