Prodej bytu 3+kk, Hradec Králové, třída Edvarda Beneše, 90 m2

třída Edvarda Beneše, Nový Hradec Králové

7 630 000 Kč /za nemovitost HYPOTÉKA od 34 101 Kč /za měsíc
Prémioví partneři v Hradci Králové

Informace k bytu

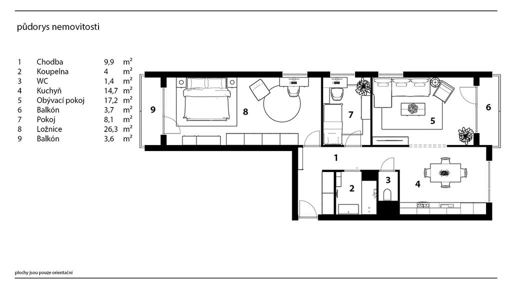
Rádi bychom vám tímto nabídli prostorný byt 3+kk, který bude v lednu 2026 převeden do osobního vlastnictví. Byt je po rekonstrukci v r. 2020: nové jádro, koupelna, WC, propojení kuchyně s obývacím pokojem, nové podlahy, kuchyň, elektrické rozvody. Na domě je plánována revitalizace a zateplení v r. 2026, které se propíše do nižších spotřeb energií. Součástí budou venkovní žaluzie na 3 oknech na JZ. Revitalizace se neprojeví nijak významně do příspěvků FO - max o 5 Kč/m2.
K příjemnému a komfortnímu bydlení přispívá lodžie 6 m2.
Tento byt je ve velmi dobrém stavu a je ideální volbou pro pár nebo rodinu, kteří hledají komfortní bydlení v blízkosti centra města.

Dispozice bytu nabízí příjemné a vzdušné prostory, kde si každý člen rodiny přijde na své soukromí. Ložnice je opravdu prostorná - viz. přiložené půdorysy a je možné ji rozdělit na dva menší pokoje. K bytu patří sklep.
Dům je vybaven dvěma výtahy.

Lokalita, ve které se byt nachází, je velmi vyhledávaná. V blízkém okolí najdete veškerou občanskou vybavenost, včetně obchodů, restaurací, polikliniky a nákupního centra. Díky skvělé dostupnosti MHD a silnice se snadno dostanete do centra města nebo na jiné důležité cíle.

Celkově se jedná o ideální nemovitost pro ty, kteří hledají pohodlné bydlení s veškerým komfortem na dosah ruky. V případě zájmu o prohlídku nás neváhejte kontaktovat.

Parametry bytu

Cena
7 630 000 Kč /za nemovitost Spočítat hypotéku
Aktualizováno
12. 11. 2025
Adresa
třída Edvarda Beneše, Nový Hradec Králové
ID
17944
Stavba
Panelová
Stav objektu
Velmi dobrý
Patro
5. z 10
Vybaveno
Ano
Lokalita objektu
Sídliště
Vlastnictví
Družstevní
Užitná plocha
90 m2
Třída energetické náročnosti
C - Úsporná
Plyn
Plynovod
Odpad
Veřejná kanalizace
Komunikace
Asfaltová
Doprava
Silnice, MHD, Autobus
Voda
Vodovod
Topné těleso
Radiátory
Zdroj topení
Ústřední dálkové
Sklep
Lodžie
Výtah
Převod do OV

Kontaktovat makléře

Máte zájem o tento byt?

Tímto, v souladu s nařízením Evropského parlamentu a Rady (EU) 2016/679, v platném znění, prohlašuji, že mi je alespoň 16 let a uděluji tak svůj souhlas se zpracováním zadaných údajů (jméno, telefon, e-mail, ip adresa) společnosti B3 Technology, s.r.o., IČ: 07330600, se sídlem Novostavby 126/23, 435 11 Lom (správce dat), za účelem předání dotazu z tohoto formuláře Vámi vybranému inzerentovi a zpětného kontaktování mé osoby. Osobní údaje bude správce zpracovávat manuálně i automaticky přímo prostřednictvím svých zaměstnanců. Informace předané tímto formulářem budou uloženy v databázi správce maximálně po dobu 10 let. Odvolání souhlasu s uložením a zpracováním poskytnutých dat lze e-mailem na info@videobydleni.cz. V případě podezření na neoprávněné použití Vámi poskytnutých údajů máte právo předat podnět k šetření Úřadu pro ochranu osobních údajů. Více informací
Chystáte se prodat nemovitost?
Pomůžeme Vám!

Inzerát si prohlédlo 1 lidí

Prodejce

Jana Štěpánová

Jana Štěpánová

Hlídací pes

Chcete dostávat emailem podobné nabídky prodeje bytů 3+kk v Hradci Králové?

Podobné nemovitosti


Nevyhovuje Vám typ bytu? Podívejte se na jiné kategorie bytů.


Vybrané články z našeho blogu