Pronájem kanceláře, Praha - Podolí, Podolská, 29 m2

Podolská, Praha, Podolí

18 500 Kč /za měsíc Získejte výhodnou HYPOTÉKU

(náklady na bydlení obsahují všechny náklady vč. elektřiny, internetu, 3x týdně úklid)

Prémioví partneři v Praze 4

Stěhovací služby

Výkup a prodej starého nábytku

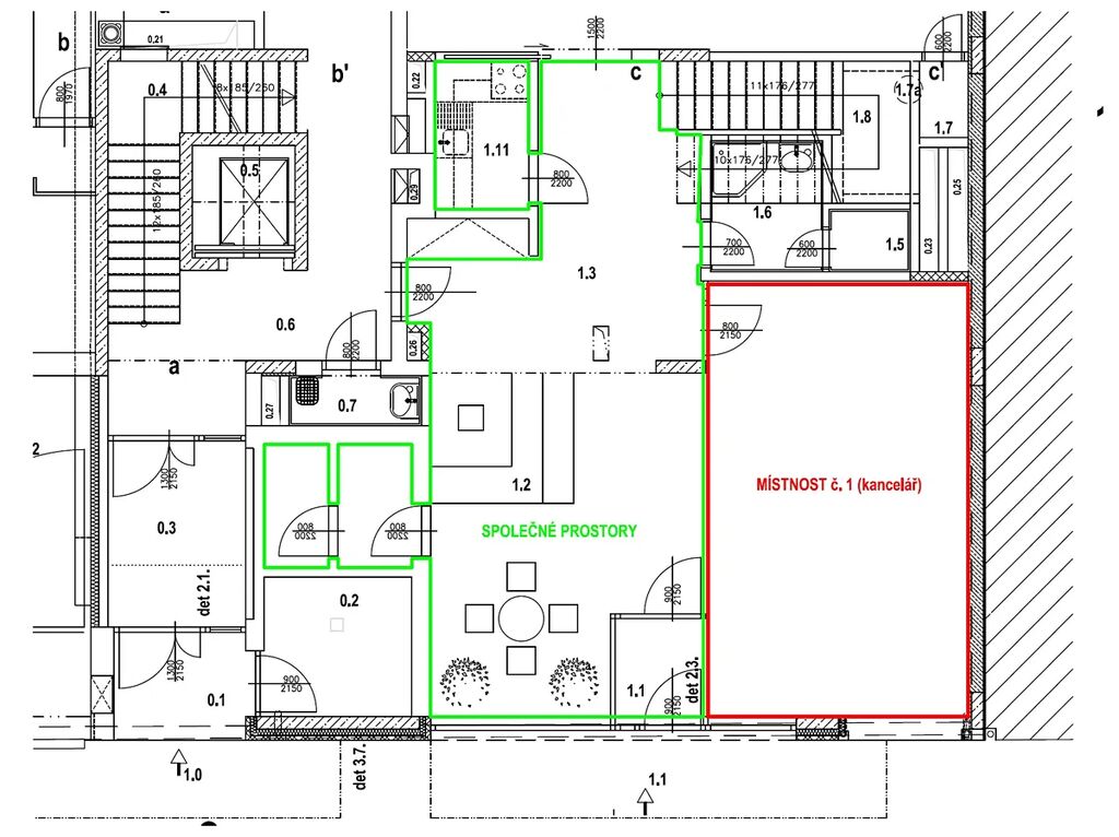
Informace k nemovitosti

Bez provize, nabídka přímo od majitele!

Nabízíme pronájem reprezentativní kanceláře v Praze 4 - Podolí.
Preferujeme dlouhodobý pronájem.

Samostatná kancelář v moderním designu vybavena nábytkem dělaným na míru dle návrhu interiérového designéra.
Naleznete zde velmi příjemné a klidné pracovní prostředí.
Prostory se nacházejí v přízemí budovy se vstupem přímo z ulice.
K dispozici od 1.12.2025.

Pro více informací nás kontaktujte.

Parametry nemovitosti

Cena
18 500 Kč /za měsíc
Poznámka k ceně
náklady na bydlení obsahují všechny náklady vč. elektřiny, internetu, 3x týdně úklid
Náklady na bydlení
7900
Aktualizováno
12. 11. 2025
Adresa
Podolská, Praha, Podolí
Stavba
Skeletová
Stav objektu
Velmi dobrý
Patro
1.
Užitná plocha
29 m2

Kontaktovat makléře

Máte zájem o tuto nemovistost?

Tímto, v souladu s nařízením Evropského parlamentu a Rady (EU) 2016/679, v platném znění, prohlašuji, že mi je alespoň 16 let a uděluji tak svůj souhlas se zpracováním zadaných údajů (jméno, telefon, e-mail, ip adresa) společnosti B3 Technology, s.r.o., IČ: 07330600, se sídlem Novostavby 126/23, 435 11 Lom (správce dat), za účelem předání dotazu z tohoto formuláře Vámi vybranému inzerentovi a zpětného kontaktování mé osoby. Osobní údaje bude správce zpracovávat manuálně i automaticky přímo prostřednictvím svých zaměstnanců. Informace předané tímto formulářem budou uloženy v databázi správce maximálně po dobu 10 let. Odvolání souhlasu s uložením a zpracováním poskytnutých dat lze e-mailem na info@videobydleni.cz. V případě podezření na neoprávněné použití Vámi poskytnutých údajů máte právo předat podnět k šetření Úřadu pro ochranu osobních údajů. Více informací
Chystáte se prodat nemovitost?
Pomůžeme Vám!

Inzerát si prohlédlo 1 lidí

Prodejce

Ing. Daniel Maxa

Ing. Daniel Maxa

Hlídací pes

Chcete dostávat emailem podobné nabídky pronájmu kanceláří v Praze 4?

Podobné nemovitosti


Nevyhovuje Vám typ nemovitosti? Podívejte se na jiné kategorie komerčních.


Vybrané články z našeho blogu