Pronájem kanceláře, Praha - Vinohrady, Kolínská, 100 m2 (ID: 4108510)

Kolínská, Praha, Vinohrady

32 000 Kč /za měsíc Získejte výhodnou HYPOTÉKU

(+ fixní služby 6.000, Kč/měs. včetně tepla a elektřiny)

Prémioví partneři v Praze 3

Stěhovací služby

Výkup a prodej starého nábytku

Informace k nemovitosti

Světlé a klidné kanceláře o celkové výměře 100 m2 v 6.patře secesního domu po rekonstrukci s výtahem u metra A vynikající dostupnost.
Ideální poloha mezi Nám. J. z Poděbrad a Flórou metro A nebo tram 11,10 a 16 do centra do 10 min.
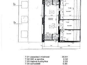
Kanceláře jsou orientovány do klidného dvora a aktuálně rozčleněny na jeden velký světlý prostor o výměře 47 m2 se dvěma vstupy (lze místnost rozdělit na dvě) + kancelář (17 m2)+ kancelář/recepce (30 m2) se střešními okny a zázemí (čajová kuchyňka, WC se sprch. koutem a umyvadlem). Klimatizace k dispozici. Internet UPC/Vodafone, ADSL. Bezpečnostní dveře, el. vrátný.
Parkování dle parkovacích zón, přímo v ulici na parkomat nebo možnost pronájmu park. stání Korunní dvůr.
Jistota/ kauce ve výši 2 měs. nájmů; provize ve výši 1 měs. nájmu + dph 21%

Parametry nemovitosti

Cena
32 000 Kč /za měsíc
Poznámka k ceně
+ fixní služby 6.000, Kč/měs. včetně tepla a elektřiny
Aktualizováno
26. 11. 2025
Adresa
Kolínská, Praha, Vinohrady
ID
001069
Stavba
Cihlová
Stav objektu
Velmi dobrý
Patro
7. z 7
Užitná plocha
100 m2
Třída energetické náročnosti
D - Méně úsporná
Elektřina
230V
Plyn
Plynovod
Telekomunikace
Telefon, Internet, Kabelová televize
Doprava
MHD
Voda
Vodovod
Topné těleso
Radiátory
Zdroj topení
WAW
Výtah

Kontaktovat makléře

Máte zájem o tuto nemovistost?

Tímto, v souladu s nařízením Evropského parlamentu a Rady (EU) 2016/679, v platném znění, prohlašuji, že mi je alespoň 16 let a uděluji tak svůj souhlas se zpracováním zadaných údajů (jméno, telefon, e-mail, ip adresa) společnosti B3 Technology, s.r.o., IČ: 07330600, se sídlem Novostavby 126/23, 435 11 Lom (správce dat), za účelem předání dotazu z tohoto formuláře Vámi vybranému inzerentovi a zpětného kontaktování mé osoby. Osobní údaje bude správce zpracovávat manuálně i automaticky přímo prostřednictvím svých zaměstnanců. Informace předané tímto formulářem budou uloženy v databázi správce maximálně po dobu 10 let. Odvolání souhlasu s uložením a zpracováním poskytnutých dat lze e-mailem na info@videobydleni.cz. V případě podezření na neoprávněné použití Vámi poskytnutých údajů máte právo předat podnět k šetření Úřadu pro ochranu osobních údajů. Více informací
Chystáte se prodat nemovitost?
Pomůžeme Vám!

Inzerát si prohlédlo 8 lidí

Prodejce

Ing. Andrea Hrubcová

Ing. Andrea Hrubcová

Hlídací pes

Chcete dostávat emailem podobné nabídky pronájmu kanceláří v Praze 3?

Podobné nemovitosti


Nevyhovuje Vám typ nemovitosti? Podívejte se na jiné kategorie komerčních.


Vybrané články z našeho blogu