Pronájem bytu 2+kk, Pardubice, Pod Vinicí, 62 m2

Pod Vinicí, Pardubice, Zelené Předměstí

19 000 Kč /za měsíc Získejte výhodnou HYPOTÉKU
Prémioví partneři v Pardubicích

Informace k bytu

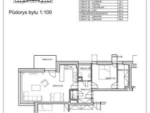
Nabízíme k pronájmu nové 2+kk v atraktivní a klidné lokalitě Pod Vinicí v Pardubicích. Moderní byt, vybavený kuchyňskou linkou se nachází ve 3.NP novostavby Bytového domu.
K bytu lze pronajmout i kryté parkovací stání s úložným prostorem (2.500,- Kč/měs). Byt je k nastěhování ihned.

Adresa Pod Vinicí je velice oblíbenou lokalitou s vynikající dostupností do centra Pardubic (cca 10 minut pěší chůze). V těsné blízkosti je park a řeka Chrudimka. Možnost sportovního vyžití je k dispozici v blízké posilovně, na tenisových kurtech či v nedalekém aquaparku. V těsné blízkosti se nachází i menší obchodní centrum a známé řetězce Kaufland či Lidl. Zastávka MHD je vzdálená cca 2 minuty pěší chůze.


Platební podmínky:
- nájemné: 19.000,- Kč / měsíčně,
- záloha na energie a služby: 3.000,- Kč /měsíčně
- vratná kauce: 44.000,- Kč,
- provize RK: 22.000,- Kč


Platby před podpisem nájemní smlouvy a předání klíčů:
- vratná kauce: 44.000 Kč,
- nájemné včetně záloh na en. a sl. na měsíc 22.000,- Kč,
- provize RK: 22.000,- Kč

Parametry bytu

Cena
19 000 Kč /za měsíc
Náklady na bydlení
3000
Aktualizováno
15. 11. 2025
Adresa
Pod Vinicí, Pardubice, Zelené Předměstí
Stavba
Cihlová
Stav objektu
Velmi dobrý
Patro
4. z 6
Vybaveno
Částečně
Lokalita objektu
Klidná část obce
Vlastnictví
Osobní
Užitná plocha
62 m2
Třída energetické náročnosti
B - Velmi úsporná
Odpad
Veřejná kanalizace
Komunikace
Asfaltová
Doprava
Silnice, MHD, Autobus
Voda
Vodovod
Topné těleso
Radiátory
Zdroj topení
Ústřední dálkové
Balkon
Výtah
Bezbarierový přístup

Kontaktovat makléře

Realitní kancelář

IP stav, s.r.o.

Pernštýnská 6, Pardubice-Staré Město

Chystáte se prodat nemovitost?
Pomůžeme Vám!

Máte zájem o tento byt?

Tímto, v souladu s nařízením Evropského parlamentu a Rady (EU) 2016/679, v platném znění, prohlašuji, že mi je alespoň 16 let a uděluji tak svůj souhlas se zpracováním zadaných údajů (jméno, telefon, e-mail, ip adresa) společnosti B3 Technology, s.r.o., IČ: 07330600, se sídlem Novostavby 126/23, 435 11 Lom (správce dat), za účelem předání dotazu z tohoto formuláře Vámi vybranému inzerentovi a zpětného kontaktování mé osoby. Osobní údaje bude správce zpracovávat manuálně i automaticky přímo prostřednictvím svých zaměstnanců. Informace předané tímto formulářem budou uloženy v databázi správce maximálně po dobu 10 let. Odvolání souhlasu s uložením a zpracováním poskytnutých dat lze e-mailem na info@videobydleni.cz. V případě podezření na neoprávněné použití Vámi poskytnutých údajů máte právo předat podnět k šetření Úřadu pro ochranu osobních údajů. Více informací
Chystáte se prodat nemovitost?
Pomůžeme Vám!

Inzerát si prohlédlo 7 lidí

Prodejce

Mrg. Dana Kučerová

Mrg. Dana Kučerová

Hlídací pes

Chcete dostávat emailem podobné nabídky pronájmu bytů 2+kk v Pardubicích?

Podobné nemovitosti


Nevyhovuje Vám typ bytu? Podívejte se na jiné kategorie bytů.


Vybrané články z našeho blogu