Pronájem bytu 1+kk, Praha, Myslíkova, 38 m2 (ID: 4109332)

Myslíkova, Praha 1

23 000 Kč /za měsíc Získejte výhodnou HYPOTÉKU
Prémioví partneři v Praze 1

Stěhovací služby

Výkup a prodej starého nábytku

Informace k bytu

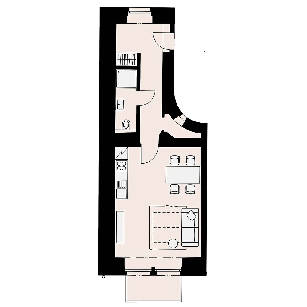
Představujeme Vám tento jednopokojový byt k pronájmu v žádané lokalitě Praha. Byt se nachází ve třetím patře cihlové stavby, která je ve velmi dobrém stavu, a je ideální volbou pro jednotlivce nebo páry hledající pohodlné a praktické bydlení.

Byt disponuje užitnou plochou 38 m2 a nabízí moderní a funkční uspořádání prostoru. Jednopodlažní dispozice zajišťuje snadnou dostupnost všech částí bytu. K bytu patří také balkón o ploše 3 m2, který poskytuje možnost relaxace na čerstvém vzduchu s výhledem do okolí.

Celý objekt vlastní firma zaměřená na dlouhodobé pronájmy. O vše se stará správcovská firma, která řeší technické záležitosti
Smlouva je vždy na 1 rok s možností dalšího prodloužení. Depozit: 1x nájem + 1x domovní poplatky. Domovní poplatky a energie se pohybují okolo 5500 Kč. Provize není, jsme přímo majitelé objektu. Z tohoto důvodu plánujeme prohlídky mezi 8:30-17:00 od pondělí do pátku.

Vždy se koukejte i na plánek bytu – fotky mohou/nemusí být z podobného bytu v domě.

Pokud Vás byt zaujal, neváhejte nám napsat nebo zavolat a rádi Vám vše ukážeme osobně.

Parametry bytu

Cena
23 000 Kč /za měsíc
Aktualizováno
14. 11. 2025
Adresa
Myslíkova, Praha 1
ID
K26
Stavba
Cihlová
Stav objektu
Velmi dobrý
Patro
3.
Vlastnictví
Osobní
Užitná plocha
38 m2
Balkon

Kontaktovat makléře

Máte zájem o tento byt?

Tímto, v souladu s nařízením Evropského parlamentu a Rady (EU) 2016/679, v platném znění, prohlašuji, že mi je alespoň 16 let a uděluji tak svůj souhlas se zpracováním zadaných údajů (jméno, telefon, e-mail, ip adresa) společnosti B3 Technology, s.r.o., IČ: 07330600, se sídlem Novostavby 126/23, 435 11 Lom (správce dat), za účelem předání dotazu z tohoto formuláře Vámi vybranému inzerentovi a zpětného kontaktování mé osoby. Osobní údaje bude správce zpracovávat manuálně i automaticky přímo prostřednictvím svých zaměstnanců. Informace předané tímto formulářem budou uloženy v databázi správce maximálně po dobu 10 let. Odvolání souhlasu s uložením a zpracováním poskytnutých dat lze e-mailem na info@videobydleni.cz. V případě podezření na neoprávněné použití Vámi poskytnutých údajů máte právo předat podnět k šetření Úřadu pro ochranu osobních údajů. Více informací
Chystáte se prodat nemovitost?
Pomůžeme Vám!

Inzerát si prohlédlo 2 lidí

Prodejce

Livie Francová

Livie Francová

Hlídací pes

Chcete dostávat emailem podobné nabídky pronájmu bytů 1+kk v Praze 1?

Podobné nemovitosti


Nevyhovuje Vám typ bytu? Podívejte se na jiné kategorie bytů.


Vybrané články z našeho blogu