Prodej rodinného domu, Zákupy, Mimoňská, 250 m2

Mimoňská, Zákupy

3 800 000 Kč /za nemovitost HYPOTÉKA od 16 984 Kč /za měsíc
Prémioví partneři v Zákupech

Rekonstrukce

Úklidové služby

Informace k domu

Ve výhradním zastoupení majitele nabízíme k prodeji zcela výjimečný dům v Zákupech.
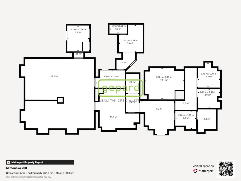
Jedná se o dvoupatrový dům kde užitná plocha v přízemí činí 154 m2 dle stavební dokumentace a v prvním patře je celkem 7 velkých místností a 3 malé, které sloužili jako koupena a toaleta. Užitná plocha v patře je přibližně 125 m2.
V přízemí domu jsou měněná dřevěná okna, funkční vodovod i kanalizace a několik samostatných toalet. K vytápění slouží kromě kotle na tuhá paliva i tepelné čerpadlo.
V přízemí se nachází technické prostory domu jako je kotelna a skladovací prostory. Přízemí domu sloužilo jako restaurace a nyní je pronajato neziskové organizaci, která se zabývá volnočasovou aktivitou dětí, kde nájemní smlouva je platná do konce roku 2025.
Horní patro je určeno k celkové rekonstrukci interiéru a svou velikostí nabízí nesčetné možnosti využití, od klasického penzionu, přes prostory k Airbnb pronájmu
až, po splnění zákonných povinností, k možnosti přestavby domu na rodinné bydlení s možností zbudování klidně tří bytových jednotek.
Dům je určen k rekonstrukci, ale celkově je v dobrém stavu, v nedávné době zde proběhla rekonstrukce 240 m2 střechy s použitím kvalitní plechové krytiny. Pouze na přístavku je střecha původní cca 70 m2.
Město Zákupy leží v srdci Libereckého kraje a jeho okolí je obklopeno překrásnou přírodou se spoustou turistických a cyklistických tras.
Je zde velkolepý zámek s bohatou královskou historií a i milovníci sportovních aktivit si zde přijdou na své především díky stadionu Emila Zátopka s nespočtem různých sportovišť.
Nenechte si ujít tuto jedinečnou příležitost, která se nebude opakovat každý den.
Nyní se pohodlně usaďte a užijte si virtuální prohlídku a v případě jakýchkoli dotazů se na mě neváhejte obrátit.
Díky letitým zkušenostem vám moc rádi pomůžeme s financováním koupě tohoto domu, případně i rekonstrukce.

Parametry domu

Cena
3 800 000 Kč /za nemovitost Spočítat hypotéku
Aktualizováno
14. 11. 2025
Adresa
Mimoňská, Zákupy
ID
11778
Stavba
Cihlová
Stav objektu
Před rekonstrukcí
Vybaveno
Ne
Typ objektu
Patrový
Druh objektu
Řadový
Užitná plocha
250 m2
Zastavěná plocha
159 m2
Plocha pozemku
747 m2
Třída energetické náročnosti
G - Mimořádně nehospodárná
Elektřina
230V, 400V
Odpad
Veřejná kanalizace
Komunikace
Asfaltová
Doprava
Vlak, Silnice, Autobus
Voda
Vodovod
Převod do OV

Kontaktovat makléře

Realitní kancelář

Motyčka Reality a Finance s.r.o.

Šrámkova 3210/6, Severní Terasa, Ústí nad Labem

Chystáte se prodat nemovitost?
Pomůžeme Vám!

Máte zájem o tento dům?

Tímto, v souladu s nařízením Evropského parlamentu a Rady (EU) 2016/679, v platném znění, prohlašuji, že mi je alespoň 16 let a uděluji tak svůj souhlas se zpracováním zadaných údajů (jméno, telefon, e-mail, ip adresa) společnosti B3 Technology, s.r.o., IČ: 07330600, se sídlem Novostavby 126/23, 435 11 Lom (správce dat), za účelem předání dotazu z tohoto formuláře Vámi vybranému inzerentovi a zpětného kontaktování mé osoby. Osobní údaje bude správce zpracovávat manuálně i automaticky přímo prostřednictvím svých zaměstnanců. Informace předané tímto formulářem budou uloženy v databázi správce maximálně po dobu 10 let. Odvolání souhlasu s uložením a zpracováním poskytnutých dat lze e-mailem na info@videobydleni.cz. V případě podezření na neoprávněné použití Vámi poskytnutých údajů máte právo předat podnět k šetření Úřadu pro ochranu osobních údajů. Více informací
Chystáte se prodat nemovitost?
Pomůžeme Vám!

Inzerát si prohlédlo 9 lidí

Prodejce

Pavel Šmat

Pavel Šmat

Hlídací pes

Chcete dostávat emailem podobné nabídky prodeje rodinných domů v Zákupech?

Podobné nemovitosti


Nevyhovuje Vám typ domu? Podívejte se na jiné kategorie domů.


Vybrané články z našeho blogu