Prodej pozemku pro bydlení, Olomouc - Svatý Kopeček, 1011 m2

Olomouc, Svatý Kopeček

5 740 000 Kč /za nemovitost HYPOTÉKA od 25 654 Kč /za měsíc
Prémioví partneři v Olomouci

Informace k pozemku

Nabízíme k prodeji exkluzivní stavební parcelu o rozloze 1011 m², nacházející se v prestižní lokalitě Svatého Kopečku, v těsné blízkosti jedinečné ZOO a s výbornou dostupností do historického centra města Olomouc. Tato výjimečná nabídka je určena pro ty, kteří si chtějí postavit moderní dvoupatrový dům, a to s již schváleným projektem.

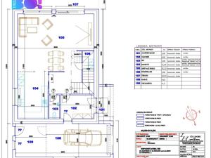
Pozemek je určen k bydlení a disponuje veškerými potřebnými inženýrskými sítěmi. K dispozici je stavební povolení, což urychluje realizaci vysněného bydlení. V rámci projektu je navržen dům s dispozicí 4+kk a garáží, který poskytuje užitnou plochu 180 m² a zastavěnou plochu 137 m², což zajišťuje komfortní a prostorné bydlení. Tento dům bude ideálním místem pro život, kde se elegance snoubí s praktickými funkcemi.

V přízemí najdeme - vstup o rozloze 4 m², zádveří o velikosti 9 m², WC 3 m², kuchyň 12,3 m², prostorný obývací pokoj o rozloze 55,2 m², komoru 3 m², terasu o velikosti 30 m², garáž 24 m² a technickou místnost 11 m².
V prvním patře je hala o dispozici 16,2 m², koupelna 8,25 m², WC 3 m², pokoj 1 o velikosti 21 m², pokoj 2 o velikosti 21 m², ložnice o rozloze 20 m² a šatna 5 m².
Vytápění je navrženo podlahovým systémem, vytápění - tepelné čerpadlo + navrženo alternativní topení krbem. Energetická náročnost budovy je dle projektu zařazena do třídy B.

Svatý Kopeček je vyhledávanou lokalitou, která nabízí klidné a příjemné prostředí na dosah městského ruchu. V okolí se nachází veškerá občanská vybavenost, školky, školy, obchody a další služby, nezbytné pro spokojené rodinné bydlení. Rychlé a efektivní spojení zajišťuje MHD, což usnadňuje dopravu do Olomouce.

Jde o jedinečnou příležitost, kde můžete zrealizovat své sny o moderním a komfortním bydlení ve vyhledávané lokalitě.

V případě zájmu o prohlídku nás neváhejte kontaktovat. S financováním Vám rádi pomůžeme.

Parametry pozemku

Cena
5 740 000 Kč /za nemovitost Spočítat hypotéku
Aktualizováno
14. 11. 2025
Adresa
Olomouc, Svatý Kopeček
ID
7615
Lokalita objektu
Centrum obce
Plocha pozemku
1011 m2
Odpad
Veřejná kanalizace
Doprava
MHD
Převod do OV

Kontaktovat makléře

Máte zájem o tento pozemek?

Tímto, v souladu s nařízením Evropského parlamentu a Rady (EU) 2016/679, v platném znění, prohlašuji, že mi je alespoň 16 let a uděluji tak svůj souhlas se zpracováním zadaných údajů (jméno, telefon, e-mail, ip adresa) společnosti B3 Technology, s.r.o., IČ: 07330600, se sídlem Novostavby 126/23, 435 11 Lom (správce dat), za účelem předání dotazu z tohoto formuláře Vámi vybranému inzerentovi a zpětného kontaktování mé osoby. Osobní údaje bude správce zpracovávat manuálně i automaticky přímo prostřednictvím svých zaměstnanců. Informace předané tímto formulářem budou uloženy v databázi správce maximálně po dobu 10 let. Odvolání souhlasu s uložením a zpracováním poskytnutých dat lze e-mailem na info@videobydleni.cz. V případě podezření na neoprávněné použití Vámi poskytnutých údajů máte právo předat podnět k šetření Úřadu pro ochranu osobních údajů. Více informací
Chystáte se prodat nemovitost?
Pomůžeme Vám!

Inzerát si prohlédlo 2 lidí

Prodejce

Bc. Tereza Krajíčková, MBA

Bc. Tereza Krajíčková, MBA

Hlídací pes

Chcete dostávat emailem podobné nabídky prodeje pozemků pro bydlení v Olomouci?

Podobné nemovitosti


Nevyhovuje Vám typ pozemku? Podívejte se na jiné kategorie pozemků.


Vybrané články z našeho blogu