Prodej bytu 2+kk, Pardubice - Zelené Předměstí, Arnošta z Pardubic, 44 m2 (ID: 4109878)

Arnošta z Pardubic, Pardubice, Zelené Předměstí

4 680 000 Kč /za nemovitost HYPOTÉKA od 20 917 Kč /za měsíc
Prémioví partneři v Pardubicích

Informace k bytu

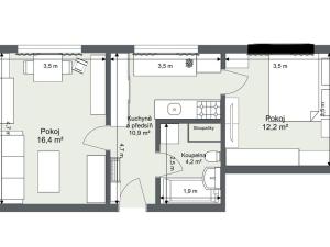
Na základě výhradního zastoupení nabízím k prodeji luxusní a do posledního detailu laděný byt po kompletní a velmi pečlivé rekonstrukci, který díky své promyšlené dispozici 2kk (2+1) poskytuje nadstandardní pohodlí i praktičnost. Oba pokoje jsou samostatné a neprůchozí díky čemuž byt působí prostorněji a variabilněji. Kuchyně je elegantně integrována mezi pokoji a jen podtrhuje celkové uspořádání bytu, kde je opravdu využitý každý centimetr.
Družstevní byt o celkové výměře 44 m² se nachází ve druhém patře panelového domu s výtahem na adrese Arnošta z Pardubic 2599, v bezprostřední blízkosti samotného centra Pardubic. Lokalita je výjimečná svou dostupností, veškerými službami v okolí a celkovou městskou atmosférou.
Další velkou výhodou je i investiční potenciál. Byt je v současné době pronajatý velmi solidními a spolehlivými nájemci za tržní měsíční nájemné což novému majiteli může poskytnout okamžitý a bezstarostný výnos.
Tato nemovitost představuje jedinečnou příležitost ke koupi krásného, precizně zrekonstruovaného bytu v oblíbené části Pardubic, který upoutá svým stylem, praktičností i výbornou návratností investice.

Parametry bytu

Cena
4 680 000 Kč /za nemovitost Spočítat hypotéku
Aktualizováno
26. 11. 2025
Adresa
Arnošta z Pardubic, Pardubice, Zelené Předměstí
ID
2025-11-14
Stavba
Panelová
Stav objektu
Velmi dobrý
Patro
2.
Typ objektu
Patrový
Lokalita objektu
Centrum obce
Vlastnictví
Družstevní
Užitná plocha
44 m2
Podlahová plocha
44 m2
Třída energetické náročnosti
D - Méně úsporná
Sklep
Výtah
Bezbarierový přístup
Převod do OV

Kontaktovat makléře

Realitní kancelář

Logo Vojtěch Vaníček

Vojtěch Vaníček

Štrossova 172, Pardubice, Bílé Předměstí

Chystáte se prodat nemovitost?
Pomůžeme Vám!

Máte zájem o tento byt?

Tímto, v souladu s nařízením Evropského parlamentu a Rady (EU) 2016/679, v platném znění, prohlašuji, že mi je alespoň 16 let a uděluji tak svůj souhlas se zpracováním zadaných údajů (jméno, telefon, e-mail, ip adresa) společnosti B3 Technology, s.r.o., IČ: 07330600, se sídlem Novostavby 126/23, 435 11 Lom (správce dat), za účelem předání dotazu z tohoto formuláře Vámi vybranému inzerentovi a zpětného kontaktování mé osoby. Osobní údaje bude správce zpracovávat manuálně i automaticky přímo prostřednictvím svých zaměstnanců. Informace předané tímto formulářem budou uloženy v databázi správce maximálně po dobu 10 let. Odvolání souhlasu s uložením a zpracováním poskytnutých dat lze e-mailem na info@videobydleni.cz. V případě podezření na neoprávněné použití Vámi poskytnutých údajů máte právo předat podnět k šetření Úřadu pro ochranu osobních údajů. Více informací
Chystáte se prodat nemovitost?
Pomůžeme Vám!

Inzerát si prohlédlo 44 lidí

Prodejce

Lucie Kopecká

Lucie Kopecká

Hlídací pes

Chcete dostávat emailem podobné nabídky prodeje bytů 2+kk v Pardubicích?

Podobné nemovitosti


Nevyhovuje Vám typ bytu? Podívejte se na jiné kategorie bytů.


Vybrané články z našeho blogu