Pronájem kanceláře, Příbram - Příbram VI-Březové Hory, K Podlesí, 30 m2

K Podlesí, Příbram VI-Březové Hory

210 Kč /za metr čtvereční / měsíc Získejte výhodnou HYPOTÉKU

(+ DPH plátci, + 300 Kč/ osoba spol. poplakty, + 2.000 Kč záloha topení, ele.)

Prémioví partneři v Příbrami

Revize elektrických zařízení

Informace k nemovitosti

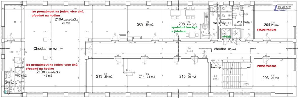
Nabízíme pronájem moderní a nově zrekonstruované kanceláře o výměře 30 m² v administrativní budově areálu P.P.P., firmy CVP Galvanika s.r.o., v průmyslové zóně na okraji Příbrami.

Budova po kompletní rekonstrukci nabízí:

• nový výtah
• společné kuchyně a jídelny na patrech
• oddělené moderní toalety
• možnost parkování před areálem pro uživatele kanceláří
• za příplatek využití zasedacích místností 45 m² a 72 m² (den/ hodiny)

Aktuálně volné kanceláře:
1. patro: 29 m², 30 m², průchozí 29 + 30 m²
3. patro: 14,5 m², 28 m², 2× 29 m², 31 m²
4. a 5. patro: před rekonstrukcí, úpravy možné dle přání nájemce (dlouhodobý nájem)

Další výhody:
• čisté, nové a moderní prostory na klidném a hezkém místě na okraji Příbrami
• internet v ceně nájmu (vyšší rychlost za příplatek)
• centrální vytápění a nízké provozní náklady
• snadná dostupnost po veřejné komunikaci, výborná dostupnost do Prahy
• hlídaný areál (vlastní vrátnice, non stop provoz)
• v budoucnu v přízemí recepce u vchodu

Podmínky nájmu:

• volné ihned / dle dohody
• hradí se: první nájem vč. záloh, vratná kauce (dle dohody) a provize RK ve výši jedno nájmu
• PENB se připravuje, prozatím třída G
• majitel si vyhrazuje právo výběru nájemce

Parametry nemovitosti

Cena
210 Kč /za metr čtvereční / měsíc
Poznámka k ceně
+ DPH plátci, + 300 Kč/ osoba spol. poplakty, + 2.000 Kč záloha topení, ele.
Aktualizováno
14. 11. 2025
Adresa
K Podlesí, Příbram VI-Březové Hory
ID
N04059
Stavba
Cihlová
Stav objektu
Po rekonstrukci
Vybaveno
Ano
Typ objektu
Patrový
Lokalita objektu
Okraj obce
Vlastnictví
Osobní
Užitná plocha
30 m2
Podlahová plocha
30 m2
Třída energetické náročnosti
G - Mimořádně nehospodárná
Elektřina
230V
Plyn
Plynovod
Odpad
Veřejná kanalizace
Topení
Ústřední plynové, Jiné
Komunikace
Asfaltová
Telekomunikace
Telefon, Internet, Ostatní
Doprava
Vlak, Dálnice, Silnice, MHD, Autobus
Voda
Vodovod

Kontaktovat makléře

Realitní kancelář

Logo Reality Lenner

Reality Lenner

Gen. R. Tesaříka 256, Příbram I

Chystáte se prodat nemovitost?
Pomůžeme Vám!

Máte zájem o tuto nemovistost?

Tímto, v souladu s nařízením Evropského parlamentu a Rady (EU) 2016/679, v platném znění, prohlašuji, že mi je alespoň 16 let a uděluji tak svůj souhlas se zpracováním zadaných údajů (jméno, telefon, e-mail, ip adresa) společnosti B3 Technology, s.r.o., IČ: 07330600, se sídlem Novostavby 126/23, 435 11 Lom (správce dat), za účelem předání dotazu z tohoto formuláře Vámi vybranému inzerentovi a zpětného kontaktování mé osoby. Osobní údaje bude správce zpracovávat manuálně i automaticky přímo prostřednictvím svých zaměstnanců. Informace předané tímto formulářem budou uloženy v databázi správce maximálně po dobu 10 let. Odvolání souhlasu s uložením a zpracováním poskytnutých dat lze e-mailem na info@videobydleni.cz. V případě podezření na neoprávněné použití Vámi poskytnutých údajů máte právo předat podnět k šetření Úřadu pro ochranu osobních údajů. Více informací
Chystáte se prodat nemovitost?
Pomůžeme Vám!

Inzerát si prohlédlo 1 lidí

Prodejce

Tomáš Lenner

Tomáš Lenner

Hlídací pes

Chcete dostávat emailem podobné nabídky pronájmu kanceláří v Příbrami?

Podobné nemovitosti


Nevyhovuje Vám typ nemovitosti? Podívejte se na jiné kategorie komerčních.


Vybrané články z našeho blogu