Prodej bytu 2+kk, Brno, Na pískové cestě, 60 m2 (ID: 4110904)

Na Pískové cestě, Brno, Bohunice

7 986 000 Kč /za nemovitost HYPOTÉKA od 35 693 Kč /za měsíc
Prémioví partneři v Brně

Informace k bytu

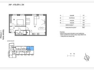
ATELIÉR 204

Hledáte klid, vzdušnost a moderní technologie v ceně?
Ateliér 204 má 59,7 m² dobře navržené dispozice 2+kk bez zbytečných chodeb, takže každý metr slouží k bydlení. Díky rovnoměrnému rozložení oken působí interiér přirozeně světle a otevřeně.

Součástí ceny je plnohodnotný Loxone Smart Home systém:

- neslyšná chytrá ventilace se stará o kvalitní vzduch i při
zavřených oknech
- chytré vytápění hlídá teplotu v každé části bytu
- automatické předokenní žaluzie reagují na počasí a chrání byt před přehříváním
- osvětlení pracuje podle denní doby a senzory kontrolují bezpečnost domácnosti
- ovládání je intuitivní – přes nástěnný iPad, mobilní aplikaci nebo chytré ovladače Loxone.
Edison House je novostavba v energetickém standardu PENB A – mimořádně úsporná budova s nízkými náklady a stabilní hodnotou.

Bohunice patří k nejvyhledávanějším lokalitám v Brně díky dostupnosti, občanské vybavenosti a silné poptávce po moderním bydlení.
Byla by škoda nechat si utéct příležitost, která má samé plusy - co říkáte?

Parametry bytu

Cena
7 986 000 Kč /za nemovitost Spočítat hypotéku
Aktualizováno
18. 2. 2026
Adresa
Na Pískové cestě, Brno, Bohunice
ID
11202502
Stavba
Cihlová
Stav objektu
Novostavba
Patro
2.
Vlastnictví
Osobní
Užitná plocha
60 m2

Kontaktovat makléře

Realitní kancelář

Estarea

Libušina třída 826/23, Brno

Chystáte se prodat nemovitost?
Pomůžeme Vám!

Máte zájem o tento byt?

Tímto, v souladu s nařízením Evropského parlamentu a Rady (EU) 2016/679, v platném znění, prohlašuji, že mi je alespoň 16 let a uděluji tak svůj souhlas se zpracováním zadaných údajů (jméno, telefon, e-mail, ip adresa) společnosti B3 Technology, s.r.o., IČ: 07330600, se sídlem Novostavby 126/23, 435 11 Lom (správce dat), za účelem předání dotazu z tohoto formuláře Vámi vybranému inzerentovi a zpětného kontaktování mé osoby. Osobní údaje bude správce zpracovávat manuálně i automaticky přímo prostřednictvím svých zaměstnanců. Informace předané tímto formulářem budou uloženy v databázi správce maximálně po dobu 10 let. Odvolání souhlasu s uložením a zpracováním poskytnutých dat lze e-mailem na info@videobydleni.cz. V případě podezření na neoprávněné použití Vámi poskytnutých údajů máte právo předat podnět k šetření Úřadu pro ochranu osobních údajů. Více informací
Chystáte se prodat nemovitost?
Pomůžeme Vám!

Inzerát si prohlédlo 14 lidí

Prodejce

Ing. Jan Veselý

Ing. Jan Veselý

Hlídací pes

Chcete dostávat emailem podobné nabídky prodeje bytů 2+kk v Brně?

Podobné nemovitosti


Nevyhovuje Vám typ bytu? Podívejte se na jiné kategorie bytů.


Vybrané články z našeho blogu