Pronájem restaurace, Praha - Stodůlky, Hábova, 142 m2

Hábova, Praha, Stodůlky

52 000 Kč /za měsíc Získejte výhodnou HYPOTÉKU

(+ DPH)

Prémioví partneři v Praze 5

Stěhovací služby

Výkup a prodej starého nábytku

Informace k nemovitosti

Nabízíme k pronájmu nebytový prostor v obchodním centru Paprsek, kde se nachází celkem 15 provozoven - MAGAKNIHY.CZ, kavárna Hábovka, CENTRUMAUTOSEDACEK.CZ, FAJNZOO.CZ, GENERALI ČESKÁ POJIŠŤOVNA, IMPERIAL SUSHI, Čínské restaurace Wan Fu Lou, REAL BARBERSHOP, samoobslužná prádelna QuickWash, atd.

Naproti pronajímaného nebytového prostoru je nový projekt od společnosti TRIGEMA s cca 250 byty a prodejnou Albert.

Obchodní centrum je 100 metrů od metra B - Stodůlky. Paprsek se nachází v těsné blízkosti Šostakovičova náměstí mezi bytovou zástavbou sídliště Stodůlky. Je velmi dobře dostupný MHD - stanice metra Stodůlky cca 3 minuty chůze (160 m). Výborná dostupnost s přímou návazností na Pražský okruh a silnice D1, D5, R4, R6 a R7. V docházkové vzdálenosti od objektu se nachází nejrychleji rostoucí administrativní centrum v Praze - CITY WEST se sídlem Komerční banky, Siemens, Hyundai a Vodafone nyní zde pracuje přibližně 6500 lidí, což zaručuje potenciální zákazníky. Současně je zde nová bytová zástavba.

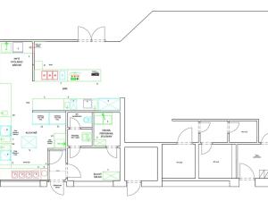
Nebytový prostor má plochu 142 m2, který je rozdělen na restauraci, WC pánské a dámské, umývárnou, restaurací, kuchyní a dalšími prostory.

Prostor se pronajímá bez zařízení restaurace a kuchyně. Na fotografiích je vybavení, které bude stávajícím nájemníkem vyklizeno.

Zásobování je možné zásobovacím dvorem, kde je možno i parkovat.

Možnost stálého parkovacího místa ve dvoře za 2.000 Kč měsíčně (k dispozici je více parkovacích stání).

K dispozici od 1.12.2025

Parametry nemovitosti

Cena
52 000 Kč /za měsíc
Poznámka k ceně
+ DPH
Náklady na bydlení
měsíční zálohy - společné prostory 1.000 Kč, teplo 8.400 Kč, voda 3.500 Kč, odpad 1.300 Kč
Aktualizováno
17. 11. 2025
Adresa
Hábova, Praha, Stodůlky
ID
Paprsek 141 m2
Stavba
Skeletová
Stav objektu
Dobrý
Užitná plocha
142 m2
Třída energetické náročnosti
F - Velmi nehospodárná
Parkování

Kontaktovat makléře

Realitní kancelář

PRAETOR FINANCE, s.r.o.

Opletalova 1417/25, Praha, Nové Město

Chystáte se prodat nemovitost?
Pomůžeme Vám!

Máte zájem o tuto nemovistost?

Tímto, v souladu s nařízením Evropského parlamentu a Rady (EU) 2016/679, v platném znění, prohlašuji, že mi je alespoň 16 let a uděluji tak svůj souhlas se zpracováním zadaných údajů (jméno, telefon, e-mail, ip adresa) společnosti B3 Technology, s.r.o., IČ: 07330600, se sídlem Novostavby 126/23, 435 11 Lom (správce dat), za účelem předání dotazu z tohoto formuláře Vámi vybranému inzerentovi a zpětného kontaktování mé osoby. Osobní údaje bude správce zpracovávat manuálně i automaticky přímo prostřednictvím svých zaměstnanců. Informace předané tímto formulářem budou uloženy v databázi správce maximálně po dobu 10 let. Odvolání souhlasu s uložením a zpracováním poskytnutých dat lze e-mailem na info@videobydleni.cz. V případě podezření na neoprávněné použití Vámi poskytnutých údajů máte právo předat podnět k šetření Úřadu pro ochranu osobních údajů. Více informací
Chystáte se prodat nemovitost?
Pomůžeme Vám!

Inzerát si prohlédlo 0 lidí

Prodejce

Tomáš Stehlík

Tomáš Stehlík

Hlídací pes

Chcete dostávat emailem podobné nabídky pronájmu restaurací v Praze 5?

Podobné nemovitosti


Nevyhovuje Vám typ nemovitosti? Podívejte se na jiné kategorie komerčních.


Vybrané články z našeho blogu