Prodej skladu, Brno, Kaštanová, 1806 m2

Kaštanová, Brno

75 000 000 Kč /za nemovitost HYPOTÉKA od 335 205 Kč /za měsíc
Prémioví partneři v Brně

Informace k nemovitosti

Na základě výhradního zastoupení majitelů nabízíme mimořádnou příležitost prodeje areálu, nacházejícího se na ulici Kaštanová v Brně, Brněnských Ivanovicích.
Areál se prodává po více jak 30 letech ve vlastnictví stejných vlastníků.

Areál je situován u hlavní, velmi frekventované cesty, s přímým přístupem a vjezdem z ulice. Nedaleko areálu je Makro, Lidl, Manag, Leis apod.
Areál je kompletně oplocen, vjezd do areálu je zajištěn dálkově ovládanou vstupní bránou. Přístup do areálu je z veřejné komunikace.

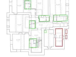
Areál tvoří uzavřený soubor komerčních budov a pozemků.
Jedná se o celek 5 budov, které slouží k výrobě, skladování, obchodní činnosti, administrativě a ubytování.
Pro lepší orientaci jsou označené jako budovy A, B, C, D, E.
Budovy A, B, C jsou samostatně stojící.
Budovy D a E tvoří jeden celek a jsou spojené.

Všechny budovy stojí na vlastních samostatných pozemcích.
Kromě budov tvoří areál vlastní volná zpevněná plocha, která umožňuje bezproblémový přístup pro nákladní dopravu, manipulaci a parkování.

Areál je kompletně zasíťovaný-elektřina, voda, plyn, kanalizace.
Kromě těchto sítí je na střeše budovy D umístěna FVE o výkonu 50MWh.
Na pozemku jsou dvě vlastní studny a požární nádrž na vodu.
Energetický štítek bude dodán.

Podle platného územního plánu spadá do plochy lehké výroby s výškovou úrovní zástavby 3-10m.

Pozemky včetně zastavených ploch v areálu jsou o celkové výměře 5084 m2.
Z toho zastavěná plocha budov je celkem 1725 m2.
Volná zpevněná plocha je o výměře 3359 m2.

Celková užitná plocha budov: 1806 m2.
Budova A-výroba: užitná plocha 66 m2 počet podlaží 1NP
Budova B-vila: užitná plocha 567 m2 počet podlaží 1PP,1NP,2NP+PŮDA
Budova C-obchod, sklad: užitná plocha 104 m2 počet podlaží 1NP
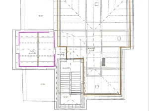
Budova D-sklad: užitná plocha 1003 m2 počet podlaží 1NP+ PŮDA
Budova E-obchod, sklad: užitná plocha 66 m2 počet podlaží 1NP

Budovy jednotlivě:
Budova A:
Zastavěná plocha objektu 86 m2
Užitná plocha objektu 66 m2
Hlavní plochy: výrobní prostor:26 m2, kancelář:11 m2, vytápěný sklad:12 m2
Světlá výška všech prostor je 2,6 m

Budova B vila:
Zastavěná plocha objektu 254 m2
Užitná plocha objektu 567 m2
1.PP---celkem 181 m2 světlá výška 2,5m,
kromě prostoru pro technologii tepelného čerpadla 3,4m
1.NP---celkem 195 m2 světlá výška 3,2m
2.NP---celkem 191 m2 světlá výška 3,3m
3.NP---celkem 158 m2----půda--nezapočítává se do užitné plochy
Světlá výška 2,5m v obytné místnosti, v nejvyšším bodě půdního prostoru 4,3m.

Budova C:
Zastavěná plocha objektu 132 m2
Užitná plocha objektu 104 m2
Hlavní plochy: obchod: 18 m2, kancelář: 12 m2, vytápěné sklady: 67 m2
Světlá výška všech prostor je 3 m

Budova D:
Zastavěná plocha objektu 1172 m2
Užitná plocha objektu 1003 m2
Hlavní plochy:
Vytápěné sklady: 390 m2, rozdělené na 7 částí
Nevytápěné sklady: 386 m2, rozdělené na 4 části
Kanceláře:73 m2
Světlá výška v převážné většině místností 2,9m

Budova E:
Zastavěná plocha objektu 81 m2
Užitná plocha objektu 66 m2
Hlavní plochy: kancelář:18 m2, obchod:19 m2.
Světlá výška je 2,9 m

Celý areál je v dobrém a průběžně udržovaném stavu.
Bude se prodávat s ukončenými nájemními smlouvami.
Novým majitelům to umožní vlastní využití nebo nastavení nových nájemních vztahů podle svého uvážení.

Cena za areál je 75.mil.Kč včetně FVE. Nebude účtována provize RK.
V případě zájmu o prohlídku nebo informace, volejte prosím na tel. číslo, uvedené v inzerátu. Volat můžete i o víkendu.

Parametry nemovitosti

Cena
75 000 000 Kč /za nemovitost Spočítat hypotéku
Aktualizováno
17. 11. 2025
Adresa
Kaštanová, Brno
ID
KN462
Stavba
Cihlová
Stav objektu
Velmi dobrý
Lokalita objektu
Rušná část obce
Užitná plocha
1806 m2
Zastavěná plocha
1725 m2
Plyn
Plynovod
Odpad
Veřejná kanalizace
Komunikace
Asfaltová
Doprava
Vlak, Dálnice, Silnice, MHD, Autobus
Voda
Vodovod, Studna, Retenční nádrž na dešt’ovou vodu
Topné těleso
Radiátory
Zdroj topení
Plynový kotel, Tepelné čerpadlo
Zdroj teplé vody
Plynový kotel, Tepelné čerpadlo, Bojler - elektro
Parkování

Kontaktovat makléře

Máte zájem o tuto nemovistost?

Tímto, v souladu s nařízením Evropského parlamentu a Rady (EU) 2016/679, v platném znění, prohlašuji, že mi je alespoň 16 let a uděluji tak svůj souhlas se zpracováním zadaných údajů (jméno, telefon, e-mail, ip adresa) společnosti B3 Technology, s.r.o., IČ: 07330600, se sídlem Novostavby 126/23, 435 11 Lom (správce dat), za účelem předání dotazu z tohoto formuláře Vámi vybranému inzerentovi a zpětného kontaktování mé osoby. Osobní údaje bude správce zpracovávat manuálně i automaticky přímo prostřednictvím svých zaměstnanců. Informace předané tímto formulářem budou uloženy v databázi správce maximálně po dobu 10 let. Odvolání souhlasu s uložením a zpracováním poskytnutých dat lze e-mailem na info@videobydleni.cz. V případě podezření na neoprávněné použití Vámi poskytnutých údajů máte právo předat podnět k šetření Úřadu pro ochranu osobních údajů. Více informací
Chystáte se prodat nemovitost?
Pomůžeme Vám!

Inzerát si prohlédlo 1 lidí

Prodejce

Ing.arch.Andrea Zouharová

Ing.arch.Andrea Zouharová

Hlídací pes

Chcete dostávat emailem podobné nabídky prodeje skladů v Brně?

Podobné nemovitosti


Nevyhovuje Vám typ nemovitosti? Podívejte se na jiné kategorie komerčních.


Vybrané články z našeho blogu