Pronájem kanceláře, Velká Bíteš, 937 m2 (ID: 4111480)

Velká Bíteš

Cena na vyžádání /za měsíc Získejte výhodnou HYPOTÉKU
Prémioví partneři v Velké Bíteši

Informace k nemovitosti

Společnost Protsenko & Svoboda v zastoupení majitele nabízí k pronájmu moderní areál o celkové podlahové ploše 937 m² se zahradou a parkovací plochou. Skvělá poloha v blízkosti dálnice D1, pouhých 30 km od Brna, zajišťuje snadnou dostupnost pro zaměstnance i klienty.

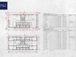
Areál tvoří dvě samostatné budovy, o ploše 539 m² a 398 m² , každá se skládá ze dvou podlaží. Prostory jsou navrženy s důrazem na variabilitu – najdete zde kancelářské místnosti různých velikostí, společné toalety, prostory pro kuchyň. Dispoziční řešení si můžete prohlédnout v přiložených půdorysech.

Celý areál je oplocený a obklopený zelení, což vytváří příjemné a reprezentativní prostředí. Najdete zde pečlivě udržovaný trávník, nově vysazené stromy a keře, které dodávají prostoru estetický a přívětivý ráz. Bezpečnost zajišťuje kamerový zabezpečovací systém, který nepřetržitě monitoruje celý objekt.

Nemovitost odpovídá nejvyšším a nejmodernějším stavebním standardům. Disponuje hliníkovými okny, podlahovým vytápěním a kvalitní izolací, což zaručuje výbornou energetickou efektivitu a komfortní pracovní prostředí. V každé místnosti jsou internetové zásuvky pro snadné připojení. Celkově se jedná o kvalitně provedený, moderní a nadčasový prostor, který vyhoví nárokům různých typů podnikání.

Cena pronájmu činí 300 Kč/m², přičemž je možné flexibilně kombinovat velikost a uspořádání prostor dle vašich potřeb. Areál je ideální pro zdravotnická zařízení, vzdělávací centra, dětské kroužky či komunitní spolky a snadno se přizpůsobí specifickým požadavkům vašeho podnikání.

V okolí se nachází především obytné a komerční objekty. Díky strategické poloze je tato lokalita atraktivní pro podnikatelské aktivity i bydlení. Přímo oproti objektu se nachází autobusová zastávka Velká Bíteš, Cihelna. Tato zastávka zajišťuje spojení do různých částí města i do okolních obcí a větších měst, včetně Brna. Celkově je lokalita dobře dostupná, ať už pro obyvatele města, podnikatele nebo zákazníky a klienty podniků v této oblasti.

Máte zájem o prohlídku nebo více informací? Kontaktujte nás, rádi vám pomůžeme najít ideální řešení.
V případě spolupráci s naši RK, kromě kouzelné nemovitosti, vždy dostanete zdarma:
-konzultační servis
-jazykovou vybavenost (mluvíme česky, anglicky, francouzsky)
-právnický servis od AK Hafner & Partneři
-servis daňové amortizace
-kupony na slevu v top obchodech s nábytkem
-stěhování
-technika pro drobné úpravy
-analýzy trhu
 
Těšíme se na běžných prohlídkách, ale nabízíme také videoprohlídky v reálném čase přes WhatsApp, FaceTime, Messenger, Skype ad

Parametry nemovitosti

Cena
Cena na vyžádání
Aktualizováno
18. 11. 2025
Adresa
Velká Bíteš
ID
B.VYS.VB.3
Stavba
Smíšená
Stav objektu
Novostavba
Užitná plocha
937 m2
Plocha zahrady
6189 m2
Garáž
Parkování

Kontaktovat makléře

Máte zájem o tuto nemovistost?

Tímto, v souladu s nařízením Evropského parlamentu a Rady (EU) 2016/679, v platném znění, prohlašuji, že mi je alespoň 16 let a uděluji tak svůj souhlas se zpracováním zadaných údajů (jméno, telefon, e-mail, ip adresa) společnosti B3 Technology, s.r.o., IČ: 07330600, se sídlem Novostavby 126/23, 435 11 Lom (správce dat), za účelem předání dotazu z tohoto formuláře Vámi vybranému inzerentovi a zpětného kontaktování mé osoby. Osobní údaje bude správce zpracovávat manuálně i automaticky přímo prostřednictvím svých zaměstnanců. Informace předané tímto formulářem budou uloženy v databázi správce maximálně po dobu 10 let. Odvolání souhlasu s uložením a zpracováním poskytnutých dat lze e-mailem na info@videobydleni.cz. V případě podezření na neoprávněné použití Vámi poskytnutých údajů máte právo předat podnět k šetření Úřadu pro ochranu osobních údajů. Více informací
Chystáte se prodat nemovitost?
Pomůžeme Vám!

Inzerát si prohlédlo 0 lidí

Prodejce

Anastázie Panfilová

Anastázie Panfilová

Hlídací pes

Chcete dostávat emailem podobné nabídky pronájmu kanceláří v Velké Bíteši?

Podobné nemovitosti


Nevyhovuje Vám typ nemovitosti? Podívejte se na jiné kategorie komerčních.


Vybrané články z našeho blogu