Prodej rodinného domu, Velká Jesenice, 178 m2

Velká Jesenice

4 950 000 Kč /za nemovitost HYPOTÉKA od 22 124 Kč /za měsíc
Prémioví partneři v Velké Jesenici

Informace k domu

Hledáte místo, kde budete mít klid, soukromí a zároveň krásnou přírodu na dosah ruky? Tento rodinný dům ve Velké Jesenici, jen pár minut od přehrady Rozkoš, nabízí ideální kombinaci pohodlného bydlení a venkovské pohody.

Dům stojí v srdci malebné obce, která si zachovává příjemnou atmosféru sousedského života, a přitom poskytuje základní občanskou vybavenost – obchod, školku, restauraci i dobré spojení do nedalekého Náchoda či České Skalice. Ať už hledáte trvalé bydlení nebo víkendové útočiště, tahle nemovitost má co nabídnout.

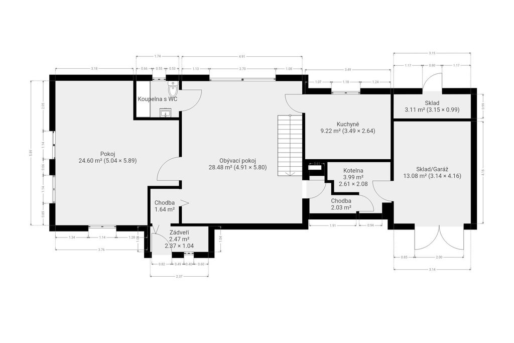
Přízemí domu vás přivítá útulným obývacím pokojem s krbem, který propojuje patro otevřeným prostorem a vytváří tak příjemnou vzdušnost. Dále zde najdete plně vybavenou kuchyni, pokoj vhodný například jako pracovna či ložnice pro hosty, koupelnu a technické zázemí – kotelnu a garáž, kterou majitelé využívají jako sklad paliva.

V podkroví se nacházejí čtyři samostatné pokoje, ideální pro rodinné bydlení nebo pohodlné ubytování více osob. Za domem vás potěší kryté venkovní posezení – ideální pro letní grilování nebo klidné večery s výhledem do zeleně. Součástí zahrady je i menší sklípek a prostor pro pěstování, odpočinek nebo dětské hry.

Dům je napojen na obecní vodovod i kanalizaci. Vytápění zajišťuje kotel na tuhá paliva napojený na ústřední topení, ohřev vody pak elektrický bojler.

Naproti přes cestu je navíc k dispozici řadová garáž s vlastním pozemkem za ní – ideální pro parkování, dílnu nebo jako další úložný prostor.

Zaujala vás tato nabídka? Přijďte se přesvědčit osobně o kouzlu tohoto místa. Kontaktujte nás a domluvte si prohlídku – možná právě tady na vás čeká váš nový domov nebo chalupa snů.

Parametry domu

Cena
4 950 000 Kč /za nemovitost Spočítat hypotéku
Aktualizováno
19. 11. 2025
Adresa
Velká Jesenice
ID
2025019
Stavba
Cihlová
Stav objektu
Dobrý
Vybaveno
Ne
Typ objektu
Patrový
Druh objektu
Samostatný
Lokalita objektu
Klidná část obce
Užitná plocha
178 m2
Plocha pozemku
778 m2
Třída energetické náročnosti
G - Mimořádně nehospodárná
Elektřina
230V, 400V
Odpad
Veřejná kanalizace
Topení
Lokální tuhá paliva, Ústřední tuhá paliva
Komunikace
Asfaltová
Doprava
Silnice
Voda
Vodovod
Garáž
Sklep

Kontaktovat makléře

Realitní kancelář

Logo FUCHS REALITY

FUCHS REALITY

Bohuslava Martinů 950, Lanškroun

Chystáte se prodat nemovitost?
Pomůžeme Vám!

Máte zájem o tento dům?

Tímto, v souladu s nařízením Evropského parlamentu a Rady (EU) 2016/679, v platném znění, prohlašuji, že mi je alespoň 16 let a uděluji tak svůj souhlas se zpracováním zadaných údajů (jméno, telefon, e-mail, ip adresa) společnosti B3 Technology, s.r.o., IČ: 07330600, se sídlem Novostavby 126/23, 435 11 Lom (správce dat), za účelem předání dotazu z tohoto formuláře Vámi vybranému inzerentovi a zpětného kontaktování mé osoby. Osobní údaje bude správce zpracovávat manuálně i automaticky přímo prostřednictvím svých zaměstnanců. Informace předané tímto formulářem budou uloženy v databázi správce maximálně po dobu 10 let. Odvolání souhlasu s uložením a zpracováním poskytnutých dat lze e-mailem na info@videobydleni.cz. V případě podezření na neoprávněné použití Vámi poskytnutých údajů máte právo předat podnět k šetření Úřadu pro ochranu osobních údajů. Více informací
Chystáte se prodat nemovitost?
Pomůžeme Vám!

Inzerát si prohlédlo 29 lidí

Prodejce

Ing. Josef Fuchs, MBA

Ing. Josef Fuchs, MBA

Hlídací pes

Chcete dostávat emailem podobné nabídky prodeje rodinných domů v Velké Jesenici?

Top nabídky

Podobné nemovitosti


Nevyhovuje Vám typ domu? Podívejte se na jiné kategorie domů.


Vybrané články z našeho blogu