Pronájem kanceláře, Hluboká nad Vltavou, Masarykova, 123 m2

Masarykova, Hluboká nad Vltavou

22 000 Kč /za měsíc Získejte výhodnou HYPOTÉKU
Prémioví partneři v Hluboké nad Vltavou

Výkup a prodej starého nábytku

Informace k nemovitosti

Exkluzivně vám nabízíme pronájem nebytového prostoru v centru města Hluboká nad Vltavou v citlivě zrekonstruované budově bývalé restaurace a ubytovacího zařízení Bakalář.
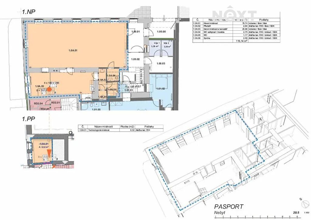
Vchod do nebytového prostoru je situován z ulice Masarykova. Užitná plocha činí 123,46 m2. Dle projektové dokumentace bude mít prostor následující podobu: 1.NP - předsíň (2,94 m2), hlavní místnost (79,74 m2), 2x WC (2,75 m2 a 1,17 m2), sprcha (2,58 m2), denní místnost a kancelář (25,96 m2). 1.PP - technologická místnost (8,32 m2). Vytápění a ohřev vody je zajištěn tepelným čerpadlem (vzduch, voda). Vstup do budovy bude bezbariérový.
Aktuálně na nemovitosti probíhají stavební práce. K nastěhování bude prostor připraven ke 15.4.2026.
Měsíční náklady spojené s užíváním prostoru činí: 22.000,- Kč nájem + energie dle potřeb nájemce, přičemž náklady na elektřinu budou sníženy díky vlastní fotovoltaické elektrárně. Internet bude přepsán na nového nájemce. Provize RK činí jeden měsíční nájem vč. DPH, vratná kauce je pronajímatelem stanovena na 22.000,- Kč. Zároveň zde nabízíme možnost pronájmu parkovacího stání / garáže. Více informací poskytne RK.
Prostor je díky své dispozici vhodný pro vybudování kanceláří či pro maloobchodní sektor. Doporučujeme prohlídku nemovitosti. Pro komunikaci uvádějte evidenční číslo zakázky N109811.

Parametry nemovitosti

Cena
22 000 Kč /za měsíc
Aktualizováno
21. 4. 2026
Adresa
Masarykova, Hluboká nad Vltavou
ID
N109811
Stavba
Cihlová
Stav objektu
Po rekonstrukci
Vybaveno
Ne
Lokalita objektu
Centrum obce
Užitná plocha
123 m2
Zastavěná plocha
123 m2
Třída energetické náročnosti
C - Úsporná
Elektřina
230V
Odpad
Veřejná kanalizace
Topení
Lokální elektrické
Komunikace
Asfaltová
Doprava
Vlak, Silnice, Autobus
Voda
Vodovod
Topné těleso
Radiátory
Zdroj topení
Tepelné čerpadlo
Zdroj teplé vody
Tepelné čerpadlo
Výtah
Bezbarierový přístup
Parkování

Kontaktovat makléře

Realitní kancelář

NEXT REALITY PROFI ČB

B. Němcové 1692/38, České Budějovice

Chystáte se prodat nemovitost?
Pomůžeme Vám!

Máte zájem o tuto nemovistost?

Tímto, v souladu s nařízením Evropského parlamentu a Rady (EU) 2016/679, v platném znění, prohlašuji, že mi je alespoň 16 let a uděluji tak svůj souhlas se zpracováním zadaných údajů (jméno, telefon, e-mail, ip adresa) společnosti B3 Technology, s.r.o., IČ: 07330600, se sídlem Novostavby 126/23, 435 11 Lom (správce dat), za účelem předání dotazu z tohoto formuláře Vámi vybranému inzerentovi a zpětného kontaktování mé osoby. Osobní údaje bude správce zpracovávat manuálně i automaticky přímo prostřednictvím svých zaměstnanců. Informace předané tímto formulářem budou uloženy v databázi správce maximálně po dobu 10 let. Odvolání souhlasu s uložením a zpracováním poskytnutých dat lze e-mailem na info@videobydleni.cz. V případě podezření na neoprávněné použití Vámi poskytnutých údajů máte právo předat podnět k šetření Úřadu pro ochranu osobních údajů. Více informací
Chystáte se prodat nemovitost?
Pomůžeme Vám!

Inzerát si prohlédlo 14 lidí

Prodejce

Bc. Andrea Frantíková

Bc. Andrea Frantíková

Hlídací pes

Chcete dostávat emailem podobné nabídky pronájmu kanceláří v Hluboké nad Vltavou?

Podobné nemovitosti


Nevyhovuje Vám typ nemovitosti? Podívejte se na jiné kategorie komerčních.


Vybrané články z našeho blogu