Pronájem výrobních prostor, Kostěnice, 3000 m2

Kostěnice

50 Kč /za metr čtvereční / měsíc Získejte výhodnou HYPOTÉKU
Prémioví partneři v Kostěnicích

Informace k nemovitosti

Pronájem skladu, výrobních prostor 3.000 m² Kostěnice, okres Pardubice.
V zastoupení majitele a bez provize nabízíme skladové nebo výrobní prostory o velikosti 650 m², umístěné v uzavřeném areálu. Nachází se nedaleko dálnice D35, EXIT č. 148.

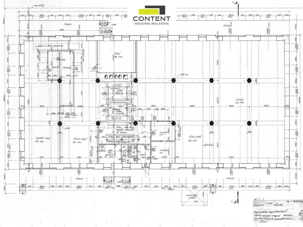
- k dispozici ihned industriální patrová budova s celkovou plochou 3000 m², hala č. 16
- skladové / výrobní prostory v přízemí a patrech budovy 400 - 3000 m² v 5 podlažích,

1. PP – 400 m² (světlá výška 2,75 m, nosnost 2 t/m²)
1. NP – 650 m² (světlá výška 3,3 m, nosnost 2 t/m²)
2. NP – 650 m² (světlá výška 2,75 m, nosnost 1,5 t/m²)
3. NP – 650 m² (světlá výška 2,75 m, nosnost 1 t/m²)
4. NP – 650 m² (světlá výška 3,3 m, nosnost 1 t/m²)

- nákladní výtah, nosnost 2 t
- příjezd pro TIR, parkovací a manipulační plocha,
- krytá rampa, 5x zásobovací vrata,
-aktuálně nevytápěno, vytápění lze zajistit plynovými saharami,
- EZS, kamerový systém,
- sociální zázemí, denní místnost (vytápění lze zajistit přímotopy),
- v těsné blízkosti dálnice D35, EXIT 148.

Cena nájmu Kč 50,-/m²/měsíc.
Pro více informací nás kontaktujte. V případě zájmu Vám rádi zajistíme prohlídku nemovitosti.

Parametry nemovitosti

Cena
50 Kč /za metr čtvereční / měsíc
Aktualizováno
20. 11. 2025
Adresa
Kostěnice
ID
N6139
Stavba
Skeletová
Stav objektu
Velmi dobrý
Typ objektu
Patrový
Lokalita objektu
Rušná část obce
Užitná plocha
3000 m2
Třída energetické náročnosti
E - Nehospodárná
Parkování

Kontaktovat makléře

Realitní kancelář

Logo CONTENT REALITY s.r.o.

CONTENT REALITY s.r.o.

Průmyslová 1472/11, Praha 10

Chystáte se prodat nemovitost?
Pomůžeme Vám!

Máte zájem o tuto nemovistost?

Tímto, v souladu s nařízením Evropského parlamentu a Rady (EU) 2016/679, v platném znění, prohlašuji, že mi je alespoň 16 let a uděluji tak svůj souhlas se zpracováním zadaných údajů (jméno, telefon, e-mail, ip adresa) společnosti B3 Technology, s.r.o., IČ: 07330600, se sídlem Novostavby 126/23, 435 11 Lom (správce dat), za účelem předání dotazu z tohoto formuláře Vámi vybranému inzerentovi a zpětného kontaktování mé osoby. Osobní údaje bude správce zpracovávat manuálně i automaticky přímo prostřednictvím svých zaměstnanců. Informace předané tímto formulářem budou uloženy v databázi správce maximálně po dobu 10 let. Odvolání souhlasu s uložením a zpracováním poskytnutých dat lze e-mailem na info@videobydleni.cz. V případě podezření na neoprávněné použití Vámi poskytnutých údajů máte právo předat podnět k šetření Úřadu pro ochranu osobních údajů. Více informací
Chystáte se prodat nemovitost?
Pomůžeme Vám!

Inzerát si prohlédlo 12 lidí

Prodejce

David Machač

David Machač

Hlídací pes

Chcete dostávat emailem podobné nabídky pronájmu výrobních prostor v Kostěnicích?

Podobné nemovitosti


Nevyhovuje Vám typ nemovitosti? Podívejte se na jiné kategorie komerčních.


Vybrané články z našeho blogu