Prodej komerčního pozemku, Štěchovice, 585 m2

Štěchovice u Prahy

7 000 000 Kč /za nemovitost HYPOTÉKA od 31 286 Kč /za měsíc
Prémioví partneři v Štěchovicích

Informace k pozemku

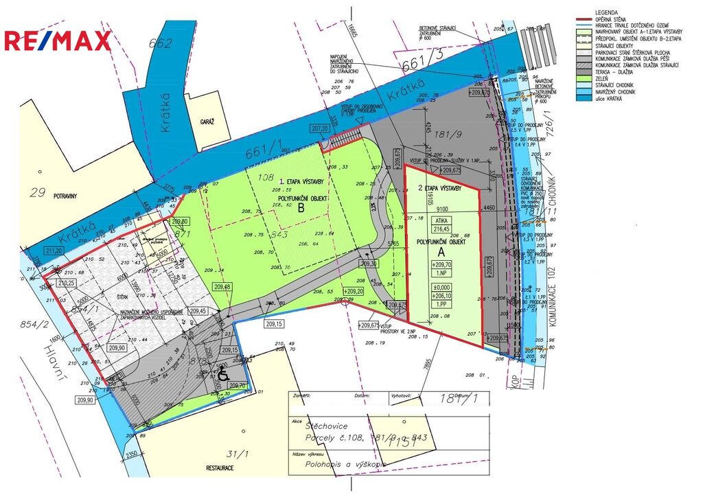
Nabízím k prodeji zajímavou investiční příležitost v atraktivní lokalitě obce Štěchovice u Prahy, která se nachází v okrese Praha-západ. Tento komerční pozemek o celkové ploše 585 m² představuje ideální základ pro rozvoj obchodních aktivit s bydlením. Součástí prodeje je projektová dokumentace se stavebním povolením.

Díky výhodné poloze v blízkosti hlavních dopravních tepen, včetně dobrého napojení na vlakovou dopravu, MHD a autobus, má tento pozemek vysoký potenciál přitáhnout zákazníky a zajistit výhodnou návratnost investice. Asfaltová vozovka zajišťuje bezproblémový přístup k pozemku a celkové okolí je dobře udržované, což přispívá k příjemnému vzhledu a atmosféře této lokality.

Investice do tohoto pozemku nabízí také možnosti pronájmu, což může představovat stabilní a pasivní příjem. Vzhledem k rostoucímu zájmu o tuto oblast a postupné urbanizaci regionu se zde otevírá prostor pro různé obchodní modely, což činí tuto příležitost ještě atraktivnější.

V oblasti jsou k dispozici veškeré potřebné inženýrské sítě, což usnadňuje plánování a realizaci případných projektů. Výhodné místo pro umístění obchodních prostor, služeb nebo menších skladovacích jednotek zaručuje široké spektrum využití.

Přijďte se podívat na tuto jedinečnou možnost investice do budoucnosti. V případě zájmu o prohlídku nás neváhejte kontaktovat.

Parametry pozemku

Cena
7 000 000 Kč /za nemovitost Spočítat hypotéku
Aktualizováno
25. 11. 2025
Adresa
Štěchovice u Prahy
ID
248-NP00849
Lokalita objektu
Centrum obce
Plocha pozemku
585 m2
Komunikace
Asfaltová
Doprava
Vlak, MHD, Autobus
Převod do OV

Kontaktovat makléře

Realitní kancelář

Logo RE/MAX Power2

RE/MAX Power2

Zahradnická 550, Příbram

Chystáte se prodat nemovitost?
Pomůžeme Vám!

Máte zájem o tento pozemek?

Tímto, v souladu s nařízením Evropského parlamentu a Rady (EU) 2016/679, v platném znění, prohlašuji, že mi je alespoň 16 let a uděluji tak svůj souhlas se zpracováním zadaných údajů (jméno, telefon, e-mail, ip adresa) společnosti B3 Technology, s.r.o., IČ: 07330600, se sídlem Novostavby 126/23, 435 11 Lom (správce dat), za účelem předání dotazu z tohoto formuláře Vámi vybranému inzerentovi a zpětného kontaktování mé osoby. Osobní údaje bude správce zpracovávat manuálně i automaticky přímo prostřednictvím svých zaměstnanců. Informace předané tímto formulářem budou uloženy v databázi správce maximálně po dobu 10 let. Odvolání souhlasu s uložením a zpracováním poskytnutých dat lze e-mailem na info@videobydleni.cz. V případě podezření na neoprávněné použití Vámi poskytnutých údajů máte právo předat podnět k šetření Úřadu pro ochranu osobních údajů. Více informací
Chystáte se prodat nemovitost?
Pomůžeme Vám!

Inzerát si prohlédlo 16 lidí

Prodejce

Ivana Moravcová

Ivana Moravcová

Hlídací pes

Chcete dostávat emailem podobné nabídky prodeje komerčních pozemků v Štěchovicích (okr. Praha-západ)?

Podobné nemovitosti


Nevyhovuje Vám typ pozemku? Podívejte se na jiné kategorie pozemků.


Vybrané články z našeho blogu