Prodej rodinného domu, Plzeň, Hrdličková, 108 m2 (ID: 4114322)

Hrdličková, Plzeň, Valcha

Cena na vyžádání /za nemovitost Získejte výhodnou HYPOTÉKU
Prémioví partneři v Plzni

Podlahy

Stěhovací služby

Informace k domu

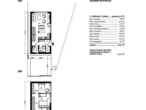
Dovolujeme si vám nabídnout rodinný dům 4+kk o celkové výměře 108 m², zahradou o výměře 381 m² a předzahrádkou 33 m², který je součástí nově vznikající již 7. etapy projektu Nová Valcha.

Plánované dokončení 7. etapy projektu je zkraje roku 2026.

V docházkové vzdálenosti projektu se nachází menší prodejna potravin. Za většími nákupy vyrazíte do nákupního centra Borská pole. Autobusová zastávka MHD je vzdálena pár minut pěší chůzí, odkud vás autobus dopraví přímo do centra. Vlakové nádraží je vzdálené necelé 2 km. V sousední Lhotě a Liticích pak najdete veškerou další občanskou vybavenost včetně mateřské a základní školy, knihovny nebo pošty.


Lokalita:
Území Nové Valchy se nachází v jihozápadní části Plzně, čtvrtém největším městě České republiky. Ze severu je vymezeno lesy spojující Valchu a Borská pole, z jihu stávající vilovou zástavbou.

Přilehlé lesy vybízejí k výpravám do přírody, ale i k aktivnímu vyžití po celý rok. Za indoorovými aktivitami lze zajít do blízké tělocvičny TJ Sokol Valcha, kde se můžete po sportovních výkonech občerstvit v hospůdce Na Zelené Louce.

Více informací o tomto řadovém domě a kompletní nabídce najdete na našem webu creditasre. Prodej přímo od majitele.

Parametry domu

Cena
Cena na vyžádání Spočítat hypotéku
Aktualizováno
20. 11. 2025
Adresa
Hrdličková, Plzeň, Valcha
ID
VALC 7.125
Stavba
Cihlová
Stav objektu
Ve výstavbě
Vybaveno
Ne
Druh objektu
Samostatný
Užitná plocha
108 m2
Zastavěná plocha
73 m2
Podlahová plocha
108 m2
Plocha pozemku
487 m2
Plocha zahrady
381 m2
Třída energetické náročnosti
B - Velmi úsporná
Garáž

Kontaktovat makléře

Máte zájem o tento dům?

Tímto, v souladu s nařízením Evropského parlamentu a Rady (EU) 2016/679, v platném znění, prohlašuji, že mi je alespoň 16 let a uděluji tak svůj souhlas se zpracováním zadaných údajů (jméno, telefon, e-mail, ip adresa) společnosti B3 Technology, s.r.o., IČ: 07330600, se sídlem Novostavby 126/23, 435 11 Lom (správce dat), za účelem předání dotazu z tohoto formuláře Vámi vybranému inzerentovi a zpětného kontaktování mé osoby. Osobní údaje bude správce zpracovávat manuálně i automaticky přímo prostřednictvím svých zaměstnanců. Informace předané tímto formulářem budou uloženy v databázi správce maximálně po dobu 10 let. Odvolání souhlasu s uložením a zpracováním poskytnutých dat lze e-mailem na info@videobydleni.cz. V případě podezření na neoprávněné použití Vámi poskytnutých údajů máte právo předat podnět k šetření Úřadu pro ochranu osobních údajů. Více informací
Chystáte se prodat nemovitost?
Pomůžeme Vám!

Inzerát si prohlédlo 0 lidí

Prodejce

CREDITAS Real Estate

CREDITAS Real Estate

Hlídací pes

Chcete dostávat emailem podobné nabídky prodeje rodinných domů v Plzni?

Podobné nemovitosti


Nevyhovuje Vám typ domu? Podívejte se na jiné kategorie domů.


Vybrané články z našeho blogu