Pronájem bytu 3+kk, Praha - Vinohrady, náměstí Jiřího z Poděbrad, 93 m2 (ID: 4114353)

náměstí Jiřího z Poděbrad, Praha, Vinohrady

2 849 € /za měsíc Získejte výhodnou HYPOTÉKU

(+ poplatky/měsíc: 125 EUR + převod na nájemce: elektřina + plyn)

Prémioví partneři v Praze 3

Stěhovací služby

Výkup a prodej starého nábytku

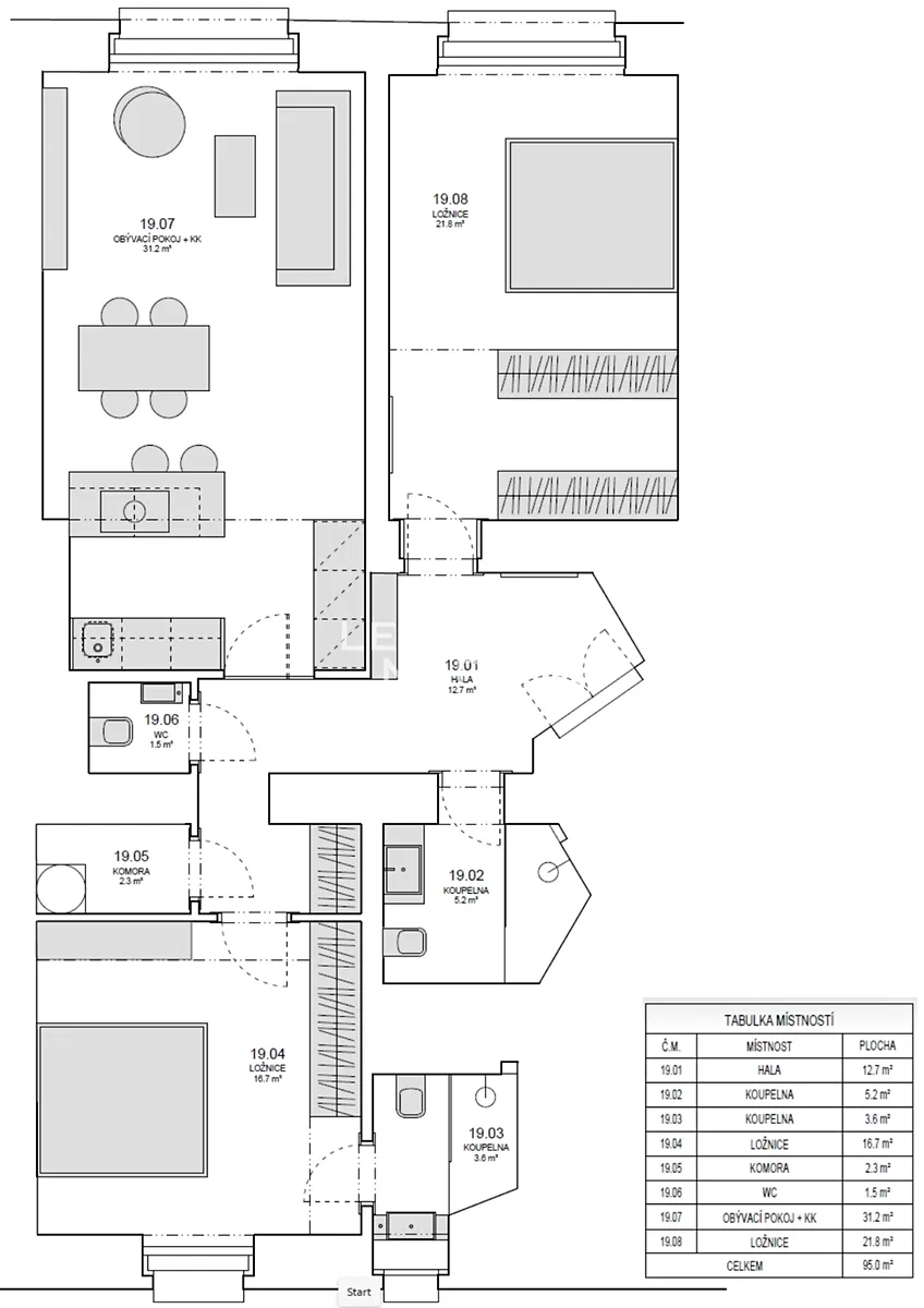
Informace k bytu

Nabízíme k pronájmu moderní nezařízený byt 3+kk o výměře 93 m2, situovaný v 5. nadzemním podlaží secesního činžovního domu s parkovacím stáním. Byt se nachází v žádané lokalitě pražských Vinohrad, přímo u náměstí Jiřího z Poděbrad.


Dispozici tvoří dvě prostorné ložnice, 2 koupelny, vstupní hala, obývací pokoj a plně vybavená kuchyň. K bytu náleží rovněž parkovací stání.


Byt je vybaven kvalitními dubovými podlahami a nabízí vestavěné skříně, klimatizaci, vinotéku, pračku i sušičku. 2 koupelny disponující sprchovým koutem.


Vysoce žádaná a lukrativní lokalita pražských Vinohrad – náměstí Jiřího z Poděbrad – zaručuje svým rezidentům bezstarostný život na vysoké úrovni, především díky kompletní občanské vybavenosti v místě stejně tak, jako díky výborné dopravní infrastruktuře (v těsné blízkosti bydlení se nachází tramvajová stanice a stanice metra Náměstí Jiřího z Poděbrad). Pokud volné chvíle rádi trávíte obklopeni zelení, pak Vás dozajista uspokojí pestrý výběr z několika přilehlých parků – sady Svatopluka Čecha, Mahlerovy sady, Bezručovy sady, sady Bratří Synků, Rajská zahrada nebo Riegrovy sady. Pokud dáváte přednost návštěvám nákupních center, není nic jednoduššího, než navštívit nedaleké OC Atrium Flora s Cinema City a IMAX. V blízkosti lze rovněž naleznout několik mateřských a základních škol, dětská hřiště, lékárny, pošty aj.



Výše vyúčtovatelných měsíčních záloh činí EUR 125/osoba/měsíc + elektřina a plyn (převod na nájemce).


Poptávající klient je srozuměn s úhradou provize ve výši 1 měsíčního nájmu plus DPH.


Pokud si nemovitost nemůžete prohlédnout osobně, nabízíme Vám také videoprohlídku z pohodlí Vašeho domova v reálném čase přes Messenger, WhatsApp a další komunikační platformy.

Parametry bytu

Cena
2 849 € /za měsíc
Poznámka k ceně
+ poplatky/měsíc: 125 EUR + převod na nájemce: elektřina + plyn
Aktualizováno
16. 1. 2026
Adresa
náměstí Jiřího z Poděbrad, Praha, Vinohrady
ID
412170
Stavba
Smíšená
Stav objektu
Po rekonstrukci
Patro
5. z 7
Vybaveno
Ne
Vlastnictví
Osobní
Užitná plocha
93 m2
Třída energetické náročnosti
G - Mimořádně nehospodárná
Garáž
Výtah
Parkování

Kontaktovat makléře

Realitní kancelář

LEXXUS, a.s.

Na Poříčí 2090/2, Praha, Nové Město

Chystáte se prodat nemovitost?
Pomůžeme Vám!

Máte zájem o tento byt?

Tímto, v souladu s nařízením Evropského parlamentu a Rady (EU) 2016/679, v platném znění, prohlašuji, že mi je alespoň 16 let a uděluji tak svůj souhlas se zpracováním zadaných údajů (jméno, telefon, e-mail, ip adresa) společnosti B3 Technology, s.r.o., IČ: 07330600, se sídlem Novostavby 126/23, 435 11 Lom (správce dat), za účelem předání dotazu z tohoto formuláře Vámi vybranému inzerentovi a zpětného kontaktování mé osoby. Osobní údaje bude správce zpracovávat manuálně i automaticky přímo prostřednictvím svých zaměstnanců. Informace předané tímto formulářem budou uloženy v databázi správce maximálně po dobu 10 let. Odvolání souhlasu s uložením a zpracováním poskytnutých dat lze e-mailem na info@videobydleni.cz. V případě podezření na neoprávněné použití Vámi poskytnutých údajů máte právo předat podnět k šetření Úřadu pro ochranu osobních údajů. Více informací
Chystáte se prodat nemovitost?
Pomůžeme Vám!

Inzerát si prohlédlo 10 lidí

Prodejce

Adéla Bukovská - recepce

Adéla Bukovská - recepce

Hlídací pes

Chcete dostávat emailem podobné nabídky pronájmu bytů 3+kk v Praze 3?

Podobné nemovitosti


Nevyhovuje Vám typ bytu? Podívejte se na jiné kategorie bytů.


Vybrané články z našeho blogu