Prodej vily, Vrsi, Chorvatsko, 210 m2 (ID: 4114769)

Vrsi

650 000 € /za nemovitost
Prémioví partneři

Informace k domu

Na prodej je nádherná, nově postavená moderní vila s bazénem v oblíbené přímořské lokalitě Vrsi v severní Dalmácii.
Tato vila kombinuje komfortní a stylové bydlení s blízkostí krásného pobřeží Jadranu, a je tak ideálním místem pro odpočinek a rekreační pobyt.

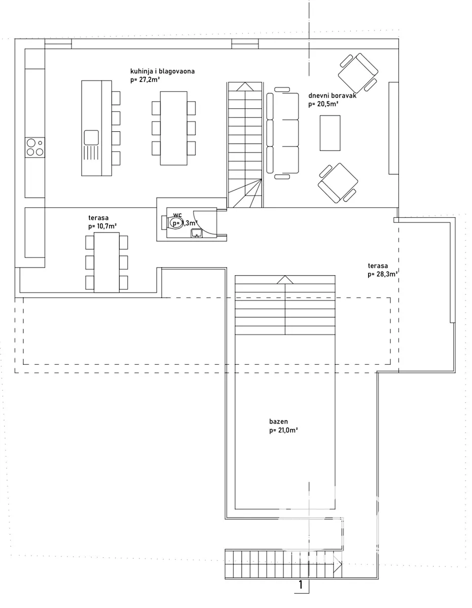
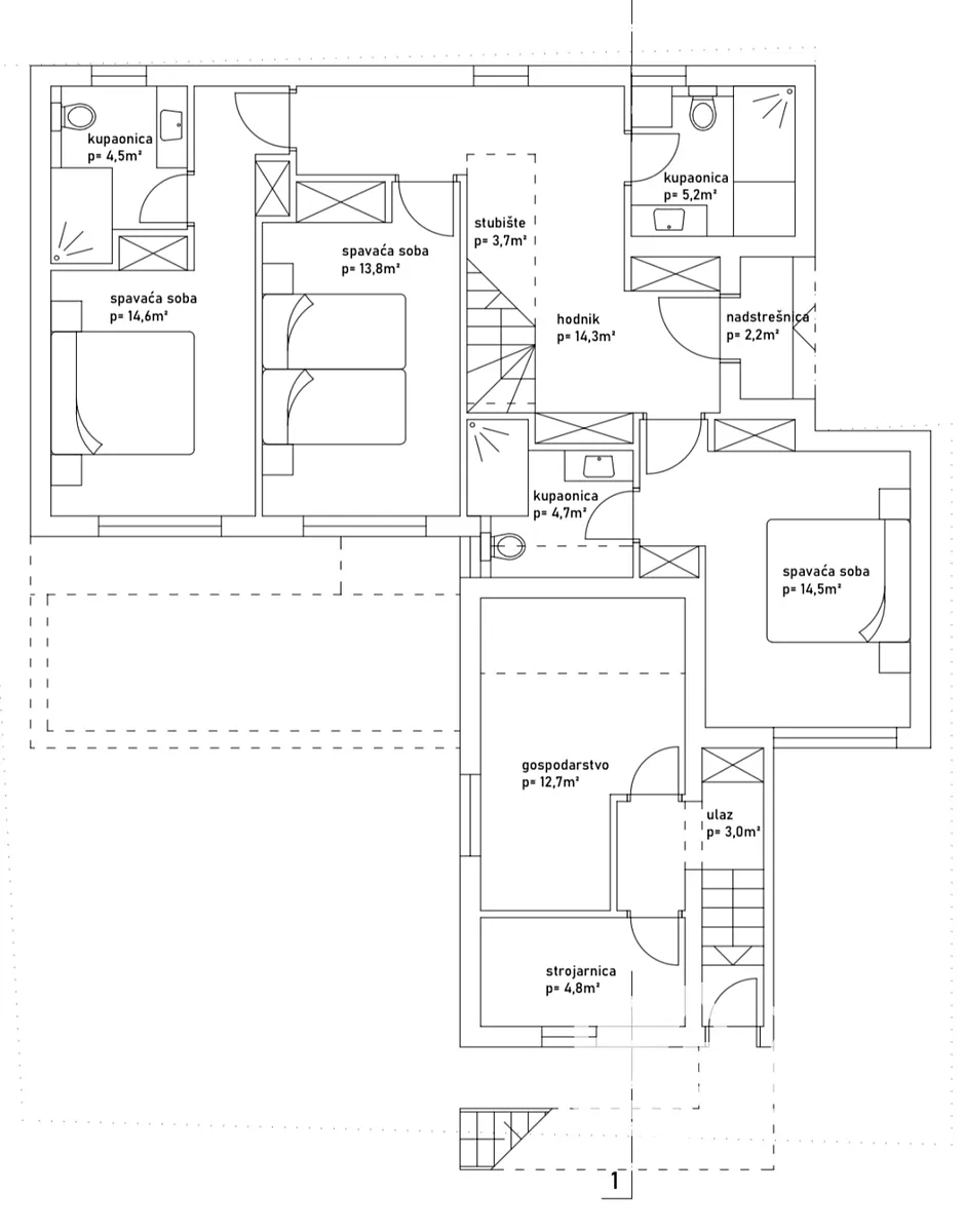
Dispozice vily a vybavení:
Celková plocha: 219 m², pozemek o velikosti 433 m²
Přízemí: Vstupní chodba, sklad, koupelna a tři ložnice, z nichž dvě mají vlastní koupelnu
První patro: Obývací pokoj s přístupem na terasu, kuchyň s jídelnou, terasa s bazénem a venkovní gril
Vila je kompletně zařízená a vybavená pro okamžité nastěhování. Vybavení zahrnuje podlahové vytápění a klimatizaci v každé místnosti, trojskla s elektrickými roletami a sítěmi proti hmyzu, izolaci fasády a kvalitní termo cihlové bloky.
Terasa u bazénu je ideálním místem pro relaxaci s krásným výhledem na moře.

Vrsi je krásné přímořské město v severní Dalmácii, jen 20 km od historického města Zadar a pouhých 5 km od starobylého královského města Nin. Vrsi nabízí 30 km dlouhé pobřeží s přírodními plážemi a zátokami, ideálními pro koupání a relaxaci daleko od ruchu měst. Místní atmosféru oživují kulturní akce, jako jsou Rybářské večery a Večery folklóru, které nabízejí nezapomenutelné zážitky a přiblížení místních tradic.

Vrsi poskytují vše, co je potřeba pro pohodlný život: poštu, lékárnu, bankomat, směnárnu, obchody, kavárny, sportovní centrum i kotviště pro lodě. Milovníci vodních sportů si zde přijdou na své díky skvělým podmínkám pro jachting a windsurfing, a to především díky příjemnému větru Maestral. Pro sportovní nadšence je v okolí mnoho možností – od basketbalu po jízdu na horských kolech.

Tato vila poskytuje nejen klidné a komfortní bydlení, ale také skvělou příležitost k investici do nemovitosti u moře v Chorvatsku. Vrsi jsou ideálním místem pro rodinnou dovolenou, díky středomořskému klimatu a klidné atmosféře. Blízkost Zadaru a Nin zároveň umožňuje rychlý přístup k dalším atrakcím a historickým památkám.

S naším týmem získáte kompletní podporu při nákupu nemovitosti – od právního poradenství až po správu a pronájem. Nabízíme znalosti místního trhu, což zajišťuje bezproblémový nákup a vysoký výnos z investice.

Kontaktujte nás pro více informací a sjednejte si prohlídku této výjimečné vily! Tato nemovitost ve Vrsích představuje skvělou kombinaci luxusu, klidu a dostupnosti ke všemu, co krásná Dalmácie nabízí.

Parametry domu

Cena
650 000 € /za nemovitost
Aktualizováno
21. 11. 2025
Adresa
Vrsi
ID
F19554
Stavba
Cihlová
Stav objektu
Novostavba
Vybaveno
Ano
Druh objektu
Samostatný
Lokalita objektu
Klidná část obce
Užitná plocha
210 m2
Zastavěná plocha
120 m2
Podlahová plocha
210 m2
Plocha pozemku
433 m2
Plocha zahrady
100 m2
Elektřina
230V
Odpad
ČOV pro celý objekt
Topení
Lokální elektrické
Telekomunikace
Internet
Doprava
Dálnice, Silnice, Autobus
Voda
Vodovod
Sklep
Parkování
Bazén

Kontaktovat makléře

Realitní kancelář

Moje nemovitost u moře

Bubenská 122/20, Praha, Holešovice

Chystáte se prodat nemovitost?
Pomůžeme Vám!

Máte zájem o tento dům?

Tímto, v souladu s nařízením Evropského parlamentu a Rady (EU) 2016/679, v platném znění, prohlašuji, že mi je alespoň 16 let a uděluji tak svůj souhlas se zpracováním zadaných údajů (jméno, telefon, e-mail, ip adresa) společnosti B3 Technology, s.r.o., IČ: 07330600, se sídlem Novostavby 126/23, 435 11 Lom (správce dat), za účelem předání dotazu z tohoto formuláře Vámi vybranému inzerentovi a zpětného kontaktování mé osoby. Osobní údaje bude správce zpracovávat manuálně i automaticky přímo prostřednictvím svých zaměstnanců. Informace předané tímto formulářem budou uloženy v databázi správce maximálně po dobu 10 let. Odvolání souhlasu s uložením a zpracováním poskytnutých dat lze e-mailem na info@videobydleni.cz. V případě podezření na neoprávněné použití Vámi poskytnutých údajů máte právo předat podnět k šetření Úřadu pro ochranu osobních údajů. Více informací
Chystáte se prodat nemovitost?
Pomůžeme Vám!

Inzerát si prohlédlo 2 lidí

Prodejce

Nikša Marinkovič

Nikša Marinkovič

Hlídací pes

Chcete dostávat emailem podobné nabídky prodeje vil?

Podobné nemovitosti


Nevyhovuje Vám typ domu? Podívejte se na jiné kategorie domů.


Vybrané články z našeho blogu