Pronájem rodinného domu, Buštěhrad, Ořešín, 106 m2 (ID: 4114933)

Ořešín, Buštěhrad

35 000 Kč /za měsíc Získejte výhodnou HYPOTÉKU
Prémioví partneři v Buštěhradu

Informace k domu

Pokud hledáte k pronájmu klidný a moderní dům se zahradou v dosahu veškerého komfortu velkoměsta, pak jste tu správně.
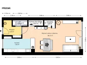
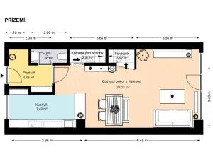
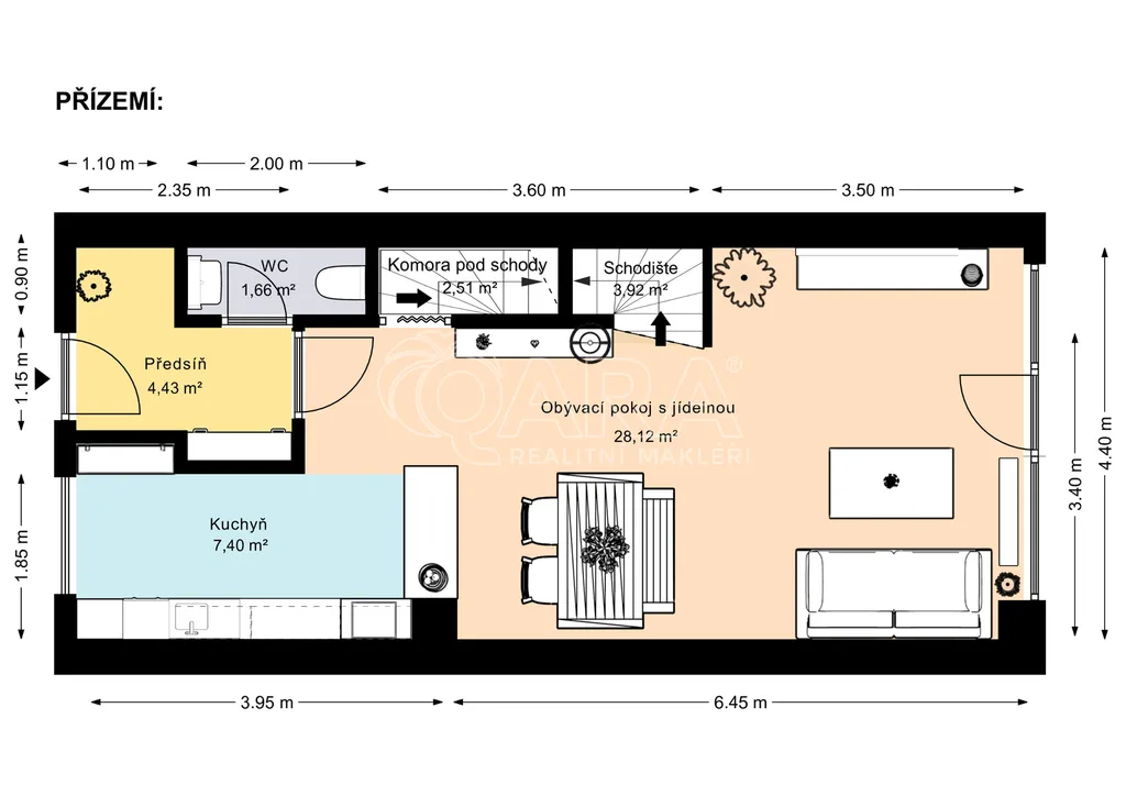
Jedná se o řadový dům 3 + kk postavený v klidné nové čtvrti Buštěhrad – Ořešín. K domu patří dvě bezplatná parkovací stání.

Přes zádveří se vstupuje do obývacího pokoje s výhledem do zahrady. Tento prostor je neskutečným bonusem celého domu, zahrada poskytuje Vašemu životu velký komfort. Pokračováním obývacího pokoje a neoficiální čtvrtou místností domu je vyhřívaná terasa, kde můžete trávit spoustu krásných večerů i v chladnějších měsících. Výhodou celého pozemku je i jeho propojení s okolím. Ze zahrady máte totiž přístup zadní brankou ven přímo do parku s nedalekým dětským hřištěm.

Součástí přízemí je plně vybavený kuchyňský kout, samostatná toaleta a úložný prostor. Z obývacího pokoje v přízemí se po schodišti dostanete do podkroví, kde se nachází dva samostatné pokoje, koupelna se sprchovým koutem, vanou i WC a šikovně vyřešený pracovní kout na galerii nad schodištěm.
Dům je vytápěný kondenzačním kotlem Protherm, v domě je klimatizace, voda je upravována změkčovačem vody a internetové spojení je zajišťováno místní firmou.

Dům se pronajímá částečně zařízený – kuchyňská linka s vybavením, jídelní stůl se židlemi, gauč, postel, komody, vestavěné skříně, televizní stěna včetně velké TV. Vše moderní a funkční. Celý dům je nesmírně kompaktní s chytrým využitím úložných prostor a splňuje veškeré požadavky na moderní bydlení. Pro majitele hledám spolehlivého dlouhodobého nájemce.

Odběr elektřiny a plynu přihlásím přímo na vás, abyste měli kontrolu nad vlastní spotřebou, vodné a stočné zůstává převedeno na majitele.
Poplatky za vodné a stočné jsou 1.830 Kč měsíčně, za odvoz odpadu 1.100 Kč ročně. Poplatky za elektřinu 4 300 Kč a za plyn 1 500 Kč při provozu rodiny s dětmi a při práci z domova.
Celková vstupní platba se skládá z nájemného na první měsíc ve výši 35 000 Kč + 2 vratné měsíční kauce ve výši 70 000 Kč + provize makléře ve výši 20 000 Kč.
Pokud potřebujete více informací o lokalitě, nebo chcete dům navštívit, abyste zjistili, jak se vám v něm bude žít, ráda se s vámi setkám na prohlídce.

Parametry domu

Cena
35 000 Kč /za měsíc
Aktualizováno
21. 1. 2026
Adresa
Ořešín, Buštěhrad
ID
18031
Stavba
Cihlová
Stav objektu
Velmi dobrý
Vybaveno
Ano
Typ objektu
Přízemní
Druh objektu
Řadový
Lokalita objektu
Klidná část obce
Užitná plocha
106 m2
Zastavěná plocha
56 m2
Podlahová plocha
106 m2
Plocha pozemku
146 m2
Plocha zahrady
71 m2
Třída energetické náročnosti
G - Mimořádně nehospodárná
Elektřina
230V
Plyn
Plynovod
Odpad
Veřejná kanalizace
Komunikace
Asfaltová
Telekomunikace
Internet
Doprava
Vlak, Dálnice, Silnice, Autobus
Voda
Vodovod
Převod do OV
Parkování

Kontaktovat makléře

Máte zájem o tento dům?

Tímto, v souladu s nařízením Evropského parlamentu a Rady (EU) 2016/679, v platném znění, prohlašuji, že mi je alespoň 16 let a uděluji tak svůj souhlas se zpracováním zadaných údajů (jméno, telefon, e-mail, ip adresa) společnosti B3 Technology, s.r.o., IČ: 07330600, se sídlem Novostavby 126/23, 435 11 Lom (správce dat), za účelem předání dotazu z tohoto formuláře Vámi vybranému inzerentovi a zpětného kontaktování mé osoby. Osobní údaje bude správce zpracovávat manuálně i automaticky přímo prostřednictvím svých zaměstnanců. Informace předané tímto formulářem budou uloženy v databázi správce maximálně po dobu 10 let. Odvolání souhlasu s uložením a zpracováním poskytnutých dat lze e-mailem na info@videobydleni.cz. V případě podezření na neoprávněné použití Vámi poskytnutých údajů máte právo předat podnět k šetření Úřadu pro ochranu osobních údajů. Více informací
Chystáte se prodat nemovitost?
Pomůžeme Vám!

Inzerát si prohlédlo 20 lidí

Prodejce

Mgr. Romana Trešlová

Mgr. Romana Trešlová

Hlídací pes

Chcete dostávat emailem podobné nabídky pronájmu rodinných domů v Buštěhradu?

Podobné nemovitosti


Nevyhovuje Vám typ domu? Podívejte se na jiné kategorie domů.


Vybrané články z našeho blogu