Pronájem bytu 2+kk, Břidličná, Komenského, 49 m2

Komenského, Břidličná

9 900 Kč /za měsíc Získejte výhodnou HYPOTÉKU
Prémioví partneři v Břidličné

Informace k bytu

Do pěkného a příjemného bytu 2+kk hledáme nájemníky nejlépe na dlouhodobý pronájem. Sháníte pronájem na místě, odkud se rychle dostanete do města, ale zároveň u sebe potřebujete kousek přírody? Potom je Břidličná skvělou volbou.

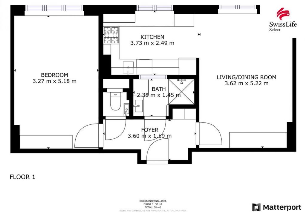
Byt s užitnou plochou 49 m se nachází ve 3. patře cihlového zatepleného domu.

Celý byt prošel rekonstrukcí a působí velmi čistě a útulně. Kuchyně v provance stylu je plně vybavena a bude radost v ní vařit. Obývací pokoj i ložnice mají vestavnou skříň a šetří tak místo. Stylová koupelna nabízí sprchový kout a WC je samostatně, v koupelně je prostor na pračku se sušičkou. V bytě jsou plastová okna a plovoucí podlaha.

Z domu se dostanete za pouhých 15 minut autem do Bruntálu, za 50 minut do Olomouce a za 20 minut do Karlové Studánky. Ideální střed.

V okolí domu je spoustu parkovacího místa.

Plavete? Nabízí se krytý bazén. Jezdíte na kole? Můžete využít místní bike pumptrack nebo okolní stezky. Čtete? Navštivte městskou knihovnu. Město Břidličná nabízí mnohé.

Cena nájmu je 9.900 Kč + 3.885 Kč služby (vodné a stočné, topení, energie společných prostor). Elektřinu + plyn na vaření a ohřev vody si na sebe nájemce převádí.

Vratná kauce činí 20.000 Kč a odměna pro RK je 12.000 Kč vč. DPH.

V případě zájmu najdeme společně termín prohlídky.

Byt je volný k nastěhování od 1. 1. 2026.

Parametry bytu

Cena
9 900 Kč /za měsíc
Aktualizováno
21. 11. 2025
Adresa
Komenského, Břidličná
ID
24820
Stavba
Cihlová
Stav objektu
Velmi dobrý
Patro
3. z 3
Vybaveno
Ne
Typ objektu
Patrový
Vlastnictví
Osobní
Užitná plocha
49 m2
Podlahová plocha
49 m2
Třída energetické náročnosti
E - Nehospodárná
Bezbarierový přístup
Parkování

Kontaktovat makléře

Máte zájem o tento byt?

Tímto, v souladu s nařízením Evropského parlamentu a Rady (EU) 2016/679, v platném znění, prohlašuji, že mi je alespoň 16 let a uděluji tak svůj souhlas se zpracováním zadaných údajů (jméno, telefon, e-mail, ip adresa) společnosti B3 Technology, s.r.o., IČ: 07330600, se sídlem Novostavby 126/23, 435 11 Lom (správce dat), za účelem předání dotazu z tohoto formuláře Vámi vybranému inzerentovi a zpětného kontaktování mé osoby. Osobní údaje bude správce zpracovávat manuálně i automaticky přímo prostřednictvím svých zaměstnanců. Informace předané tímto formulářem budou uloženy v databázi správce maximálně po dobu 10 let. Odvolání souhlasu s uložením a zpracováním poskytnutých dat lze e-mailem na info@videobydleni.cz. V případě podezření na neoprávněné použití Vámi poskytnutých údajů máte právo předat podnět k šetření Úřadu pro ochranu osobních údajů. Více informací
Chystáte se prodat nemovitost?
Pomůžeme Vám!

Inzerát si prohlédlo 2 lidí

Prodejce

Lucie Klečková

Lucie Klečková

Hlídací pes

Chcete dostávat emailem podobné nabídky pronájmu bytů 2+kk v Břidličné?

Podobné nemovitosti


Nevyhovuje Vám typ bytu? Podívejte se na jiné kategorie bytů.


Vybrané články z našeho blogu