Prodej bytu 3+1, Brno, Oblá, 74 m2

Oblá, Nový Lískovec

Rezervováno
8 290 000 Kč /za nemovitost HYPOTÉKA od 37 051 Kč /za měsíc
Prémioví partneři v Brně

Informace k bytu

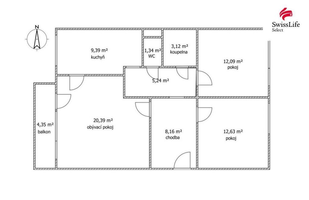
Nabízím Vám slunný a prostorný byt 3+1 v Novém Lískovci o velikosti 74 m. Je ideální pro pohodlné bydlení i jako investiční příležitost. Je připraven k okamžitému nastěhování nebo pronájmu. Obrovskou výhodou jsou tři neprůchozí pokoje a blízkost Lékařské fakulty Masarykovy univerzity.

Byt se nachází v pátém z celkových osmi podlaží panelového domu. Jeho okna jsou orientována na východ i západ, takže si můžete užívat denního světla po celý den. Kromě toho nabízí balkon s odpoledním sluncem, kde si pohodlně odpočinete po náročném dni.

Průběžná rekonstrukce a celková péče dodávají bytu punc moderního bydlení. Součástí bytu je nadčasová kuchyňská linka včetně spotřebičů a pračky, nově instalované vestavěné skříně se spoustou úložného prostoru a praktické vybavení jednotlivých pokojů. Koupelna s vanou a samostatné WC zajišťují pohodlí pro všechny obyvatele, ať už se jedná o klasickou rodinu, či studenty.

Centrální dálkové vytápění pak poskytuje komfort po celý rok. Parkování je možné přímo u domu a lokalita nabízí veškerou občanskou vybavenost včetně obchodů, supermarketů, restaurací, kaváren, škol, školek, zdravotního střediska a výborné dostupnosti MHD.

Pokud Vás moje nabídka zaujala, neváhejte a domluvte si termín své prohlídky, kde se na Vás bude těšit realitní makléřka Kateřina Sádovská.

Parametry bytu

Stav
Rezervováno
Cena
8 290 000 Kč /za nemovitost Spočítat hypotéku
Aktualizováno
17. 12. 2025
Adresa
Oblá, Nový Lískovec
ID
24821
Stavba
Panelová
Stav objektu
Velmi dobrý
Patro
5. z 8
Typ objektu
Patrový
Vlastnictví
Osobní
Užitná plocha
74 m2
Podlahová plocha
74 m2
Třída energetické náročnosti
G - Mimořádně nehospodárná
Balkon
Sklep
Bezbarierový přístup

Kontaktovat makléře

Máte zájem o tento byt?

Tímto, v souladu s nařízením Evropského parlamentu a Rady (EU) 2016/679, v platném znění, prohlašuji, že mi je alespoň 16 let a uděluji tak svůj souhlas se zpracováním zadaných údajů (jméno, telefon, e-mail, ip adresa) společnosti B3 Technology, s.r.o., IČ: 07330600, se sídlem Novostavby 126/23, 435 11 Lom (správce dat), za účelem předání dotazu z tohoto formuláře Vámi vybranému inzerentovi a zpětného kontaktování mé osoby. Osobní údaje bude správce zpracovávat manuálně i automaticky přímo prostřednictvím svých zaměstnanců. Informace předané tímto formulářem budou uloženy v databázi správce maximálně po dobu 10 let. Odvolání souhlasu s uložením a zpracováním poskytnutých dat lze e-mailem na info@videobydleni.cz. V případě podezření na neoprávněné použití Vámi poskytnutých údajů máte právo předat podnět k šetření Úřadu pro ochranu osobních údajů. Více informací
Chystáte se prodat nemovitost?
Pomůžeme Vám!

Inzerát si prohlédlo 9 lidí

Prodejce

Kateřina Sádovská

Kateřina Sádovská

Hlídací pes

Chcete dostávat emailem podobné nabídky prodeje bytů 3+1 v Brně?

Podobné nemovitosti


Nevyhovuje Vám typ bytu? Podívejte se na jiné kategorie bytů.


Vybrané články z našeho blogu