Prodej rodinného domu, Písková Lhota, 138 m2 (ID: 4116095)

Písková Lhota

10 649 000 Kč /za nemovitost HYPOTÉKA od 47 595 Kč /za měsíc

(včetně DPH)

Prémioví partneři v Pískové Lhotě

Informace k domu

Využijte časově omezenou slevu 250.000 Kč, která platí pouze do 28.02.2026.

Hledáte ideální dům pro Váš vysněný domov a chcete se ihned přestěhovat? Nabízíme nízkoenergetický patrový rodinný dům s dispozicí 5+kk, 138 m2, s venkovní terasou, dvěma parkovacími stáními a velkou zahradou, který je připraven k okamžitému nastěhování a nachází se jen 20 minut od Prahy, v bezprostřední blízkosti lázeňského města Poděbrady, v obci Písková Lhota.

Dům je zkolaudovaný a byl koncipován v nízkoenergetickém standardu, který Vám zaručuje nízké náklady na vytápění.

Můžete si jej prohlédnout po předchozí domluvě na níže uvedeném telefonním čísle.

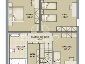
Přízemí tvoří otevřený prostor obývacího pokoje s kuchyní a jídelnou s přímým vstupem na zahradu. Disponuje dalším pokojem, koupelnou se sprchovým koutem a toaletou, hobby místností a také komorou. Ve druhém podlaží se nachází hlavní ložnice, pokoj a pracovna. Nesmí chybět ani prostorná šatna, koupelna s vanou a toaletou. Součástí příslušenství je parkovací stání ze zámkové dlažby pro osobní automobily, stejně tak přístupový chodník a terasa.

Dům je za uvedenou cenu kompletně dokončen. V koupelnách nabízíme luxusní a moderní velkoformátové obklady a dlažby, nadstandardní zařizovací předměty značky Villeroy&Boch a GROHE, vinylové plovoucí podlahy, koberce ve vysokém standardu a elegantní bílé dveře značky Sapeli. Vytápění je řešeno úsporným otopným systémem včetně lokální rekuperační jednotky, v obývacím pokoji je umístěn krbový komín.

Cena je konečná včetně pozemku, provize a DPH.

Obec Písková Lhota u Poděbrad se nachází v těsné blízkosti lázeňského města Poděbrady s kompletní občanskou vybaveností (školy, školky, banky, pošta, obchody, zdravotnické služby, divadlo, kino a sportovní haly, zimní stadion a jiná sportovní zařízení, MHD). Domy se nachází v blízkosti nájezdu na dálnici D11, v Praze jste tak do 20minut. Pro milovníky přírody je tu řeka Labe, množství cyklostezek a písečné jezero jak na koupání, tak si zde přijdou na své i milovníci rybolovu.

Rádi a zdarma Vám zajistíme výhodný hypoteční úvěr s nejnižší úrokovou sazbou na trhu.
V případě zájmu nás neváhejte kontaktovat a my dáme vašemu životu místo.

Sleva je již započítaná v uvedené ceně.

*fotografie jsou pouze informativní a může na nich být zobrazeno vybavení, které není předmětem prodeje

Parametry domu

Cena
10 649 000 Kč /za nemovitost Spočítat hypotéku
Poznámka k ceně
včetně DPH
Aktualizováno
28. 2. 2026
Adresa
Písková Lhota
ID
01391
Stavba
Cihlová
Stav objektu
Novostavba
Druh objektu
Řadový
Užitná plocha
138 m2
Plocha pozemku
465 m2
Třída energetické náročnosti
B - Velmi úsporná
Ukazatel energetické náročnosti
102 kWh/m2 za rok

Kontaktovat makléře

Realitní kancelář

CANABA a.s.

Štětkova 1001/5, Praha, Nusle

Chystáte se prodat nemovitost?
Pomůžeme Vám!

Máte zájem o tento dům?

Tímto, v souladu s nařízením Evropského parlamentu a Rady (EU) 2016/679, v platném znění, prohlašuji, že mi je alespoň 16 let a uděluji tak svůj souhlas se zpracováním zadaných údajů (jméno, telefon, e-mail, ip adresa) společnosti B3 Technology, s.r.o., IČ: 07330600, se sídlem Novostavby 126/23, 435 11 Lom (správce dat), za účelem předání dotazu z tohoto formuláře Vámi vybranému inzerentovi a zpětného kontaktování mé osoby. Osobní údaje bude správce zpracovávat manuálně i automaticky přímo prostřednictvím svých zaměstnanců. Informace předané tímto formulářem budou uloženy v databázi správce maximálně po dobu 10 let. Odvolání souhlasu s uložením a zpracováním poskytnutých dat lze e-mailem na info@videobydleni.cz. V případě podezření na neoprávněné použití Vámi poskytnutých údajů máte právo předat podnět k šetření Úřadu pro ochranu osobních údajů. Více informací
Chystáte se prodat nemovitost?
Pomůžeme Vám!

Inzerát si prohlédlo 10 lidí

Prodejce

Ing. Adriana Čarnecká

Ing. Adriana Čarnecká

Hlídací pes

Chcete dostávat emailem podobné nabídky prodeje rodinných domů v Pískové Lhotě (okr. Nymburk)?

Podobné nemovitosti


Nevyhovuje Vám typ domu? Podívejte se na jiné kategorie domů.


Vybrané články z našeho blogu